LUXUSNÝ REKREAČNÝ DOM S VÝHĽADOM NA ZEMPLÍNSKU ŠÍRAVU
- TOP - [11.11. 2025]Zmazať/ Upraviť/ Topovať






























T2 REAL vám EXKLUZÍVNE ponúka na predaj nadštandardný, kompletne zariadený 3-izbový rekreačný dom v radovej zástavbe, nachádzajúci sa v obľúbenej rekreačnej oblasti Zemplínskej šíravy, v malebnej obci Klokočov.
Tento moderný dvojpodlažný dom s úchvatným výhľadom na vodnú hladinu priehrady je ideálny nielen na víkendový relax, ale aj na celoročné bývanie.
TOP BENEFITY TEJTO NEHNUTEĽNOSTI:
• Novostavba – kolaudovaná v roku 2023, pripravená na okamžité užívanie
• Úžitková plocha 102 m² + 2x priestranná loggia (2 x 12 m²) s výhľadom na priehradu
• Terasa s altánkom (25 m²) – ideálna na letné posedenia či grilovanie
• Garáž (30 m²) + 2 vonkajšie parkovacie miesta (30 m²)
• Kompletne zariadený interiér v štýlovom dizajne, vrátane spotrebičov a nábytku
• Krb a podlahové kúrenie pre maximálny komfort počas chladných mesiacov
• Klimatizácia vo všetkých miestnostiach, kvalitné materiály, kamerový systém
• Orientácia na juh – svetlé priestory, nádherné výhľady
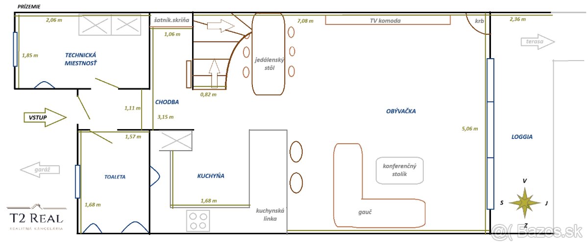
DISPOZÍCIA:
Prízemie: obývacia izba prepojená s kuchyňou a jedálenskou časťou s výstupom na slnečnú loggiu a terasu s altánkom, toaleta, technická miestnosť, chodba a schodisko
1. poschodie: spálňa s výstupom na loggiu s nádherným výhľadom na priehradu, 2. spálňa, kúpeľňa so sprchovacím kútom a toaletou
Veľkosť pozemku: 173 m²
POPIS DOMU:
• obvodové murivo – pórobetón, tepelná izolácia – polystyrén
• sedlová strecha s krytinou z pozinkovaného plechu
• okná – plastové s izolačným trojsklom, sieťky na oknách
• ohrev vody – elektrický kotol, podlahy - keramická dlažba
• kuchynská linka so spotrebičmi (indukčná varná doska, elektrická rúra, umývačka riadu, chladnička s mrazničkou, digestor, mikrovlnná rúra)
• zariadená obývacia časť – sedacia súprava, konferenčný stolík z masívneho dreva, TV skrinka, TV, reprosústava, masívny drevený jedálensky stôl so stoličkami
• spálňa s posteľou, nočnými stolíkmi a lampami, komodou
• 2.spálňa so vstavanou skriňou, posteľou a nočnými stolíkmi
• v technickej miestnosti práčka a sušička
• altánok so záhradným nábytkom a grilom
• kompletné IS: elektrina, obecný vodovod a kanalizácia
• optický internet
• prístupová cesta – obecná, asfaltová
LOKALITA:
Zemplínska šírava je jednou z najobľúbenejších rekreačných oblastí východného Slovenska – právom nazývaná aj „slovenské more“. Obec Klokočov sa nachádza v jej východnej časti a je vyhľadávaná pre svoju pokojnú atmosféru, krásne výhľady a priame napojenie na vodnú nádrž a turistické trasy.
V okolí sa nachádzajú:
• reštaurácie, potraviny, pláže, bazény, Thermalpark ŠÍRAVA, vodné športy
• príroda Vihorlatských vrchov – ideálne na turistiku a cykloturistiku
• dostupnosť z Michaloviec cca 10 minút autom
DOM je vhodný ako:
• rekreačné bývanie
• celoročné komfortné bývanie
• investičná nehnuteľnosť – ideálna na prenajímanie
Rada Vám odpoviem na ďalšie otázky a teším sa na spoločnú obhliadku.
Tento moderný dvojpodlažný dom s úchvatným výhľadom na vodnú hladinu priehrady je ideálny nielen na víkendový relax, ale aj na celoročné bývanie.
TOP BENEFITY TEJTO NEHNUTEĽNOSTI:
• Novostavba – kolaudovaná v roku 2023, pripravená na okamžité užívanie
• Úžitková plocha 102 m² + 2x priestranná loggia (2 x 12 m²) s výhľadom na priehradu
• Terasa s altánkom (25 m²) – ideálna na letné posedenia či grilovanie
• Garáž (30 m²) + 2 vonkajšie parkovacie miesta (30 m²)
• Kompletne zariadený interiér v štýlovom dizajne, vrátane spotrebičov a nábytku
• Krb a podlahové kúrenie pre maximálny komfort počas chladných mesiacov
• Klimatizácia vo všetkých miestnostiach, kvalitné materiály, kamerový systém
• Orientácia na juh – svetlé priestory, nádherné výhľady
DISPOZÍCIA:
Prízemie: obývacia izba prepojená s kuchyňou a jedálenskou časťou s výstupom na slnečnú loggiu a terasu s altánkom, toaleta, technická miestnosť, chodba a schodisko
1. poschodie: spálňa s výstupom na loggiu s nádherným výhľadom na priehradu, 2. spálňa, kúpeľňa so sprchovacím kútom a toaletou
Veľkosť pozemku: 173 m²
POPIS DOMU:
• obvodové murivo – pórobetón, tepelná izolácia – polystyrén
• sedlová strecha s krytinou z pozinkovaného plechu
• okná – plastové s izolačným trojsklom, sieťky na oknách
• ohrev vody – elektrický kotol, podlahy - keramická dlažba
• kuchynská linka so spotrebičmi (indukčná varná doska, elektrická rúra, umývačka riadu, chladnička s mrazničkou, digestor, mikrovlnná rúra)
• zariadená obývacia časť – sedacia súprava, konferenčný stolík z masívneho dreva, TV skrinka, TV, reprosústava, masívny drevený jedálensky stôl so stoličkami
• spálňa s posteľou, nočnými stolíkmi a lampami, komodou
• 2.spálňa so vstavanou skriňou, posteľou a nočnými stolíkmi
• v technickej miestnosti práčka a sušička
• altánok so záhradným nábytkom a grilom
• kompletné IS: elektrina, obecný vodovod a kanalizácia
• optický internet
• prístupová cesta – obecná, asfaltová
LOKALITA:
Zemplínska šírava je jednou z najobľúbenejších rekreačných oblastí východného Slovenska – právom nazývaná aj „slovenské more“. Obec Klokočov sa nachádza v jej východnej časti a je vyhľadávaná pre svoju pokojnú atmosféru, krásne výhľady a priame napojenie na vodnú nádrž a turistické trasy.
V okolí sa nachádzajú:
• reštaurácie, potraviny, pláže, bazény, Thermalpark ŠÍRAVA, vodné športy
• príroda Vihorlatských vrchov – ideálne na turistiku a cykloturistiku
• dostupnosť z Michaloviec cca 10 minút autom
DOM je vhodný ako:
• rekreačné bývanie
• celoročné komfortné bývanie
• investičná nehnuteľnosť – ideálna na prenajímanie
Rada Vám odpoviem na ďalšie otázky a teším sa na spoločnú obhliadku.
|
| |||||||||||||||||||||||||||||||
Kontaktovať inzerenta e-mailom
Kontaktovať e-mailom môže iba overený užívateľ.
Overenie je zadarmo.
Vaše telefónne číslo *
Kontaktovať e-mailom môže iba overený užívateľ.
Overenie je zadarmo.
Vaše telefónne číslo *
Podobné inzeráty
Na predaj rozľahlý rod. dom v Palíne - [10.11. 2025]Ponúkame na predaj priestranný DVOJGENERAČNÝ rodinný dom po kompletnej rekonštrukcii v Palíne, okr. Michalovce.
Kompletná rekonštrukcia: nové plastové okná, nová elektroinštalácia, nové rozvody vody a plynu. Nová strecha, zateplenie a celý dom je zariadený novým nábytkom, novou sanitou, takisto n ...
240 000 €
Michalovce
071 01
071 01
43 x
Označiť zlý inzerát Chybnú kategóriu Ohodnotiť užívateľa Zmazať/Upraviť/Topovať
MODERNÝ RODINNÝ DOM v mestskej časti TOPOĽANY - [10.11. 2025]ID:2999
Ponúkame moderný rodinný dom nachádzajúci sa v tichej mestskej časti Michaloviec – Topoľany:
- ide o novo postavený rodinný dom, skolaudovaný v roku 2016, ktorý ponúka pohodlné a praktické bývanie,
- dom disponuje tromi priestrannými spálňami, kúpeľňou so záchodom a samostatným hosťov ...
289 000 €
Michalovce
071 01
071 01
46 x
Označiť zlý inzerát Chybnú kategóriu Ohodnotiť užívateľa Zmazať/Upraviť/Topovať
Priestranný rodinný dom – MICHALOVCE, HRÁDOK - [10.11. 2025]ID:2970
Ponúkame na predaj priestranný, samostatne stojaci 5-izbový rodinný dom v obľúbenej časti mesta Michalovce, na ulici Cyrila a Metoda:
- nehnuteľnosť sa nachádza na rovinatom a slnečnom pozemku s celkovou výmerou 676 m² a predstavuje ideálnu voľbu pre väčšiu rodinu alebo pre tých, ktorí ...
275 000 €
Michalovce
071 01
071 01
28 x
Označiť zlý inzerát Chybnú kategóriu Ohodnotiť užívateľa Zmazať/Upraviť/Topovať
NOVOSTAVBA rodinného domu pri meste MICHALOVCE - [10.11. 2025]ID:2929
Ponúkame na predaj novostavbu rodinného domu, ktorá sa nachádza len na skok od Michaloviec:
- nachádza sa v príjemnej a pokojnej obci s výbornou dostupnosťou do mesta,
- dom je ponúkaný v štádiu holodomu, čo dáva novému majiteľovi možnosť zariadiť si interiér podľa vlastných predstáv ...
150 000 €
Michalovce
071 01
071 01
43 x
Označiť zlý inzerát Chybnú kategóriu Ohodnotiť užívateľa Zmazať/Upraviť/Topovať
Moderná novostavba v meste MICHALOVCE – NA PREDAJ - [10.11. 2025]ID:2849
Ponúkame na predaj modernú novostavbu samostatne stojaceho rodinného domu v Michalovciach, situovanú vo vynikajúcej a tichej lokalite:
- lokalita poskytuje maximálne súkromie a komfort pre pokojné bývanie,
- nehnuteľnosť je postavená z prémiových materiálov, čo zaručuje vysokú kvalitu ...
350 000 €
Michalovce
071 01
071 01
31 x
Označiť zlý inzerát Chybnú kategóriu Ohodnotiť užívateľa Zmazať/Upraviť/Topovať
Dom v centre mesta s bazénom | Michalovce | Znížená cena - [10.11. 2025]Almond Reality & Erik Bednár Vám exkluzívne ponúkajú na predaj rodinný dom v úplnom centre mesta Michalovce.
Tento 5 izbový rodinný dom je situovaný v pokojnej a tichej časti priamo v centre mesta Michalovce.
VIDEOOBHLIADKA: skopírujte link do prehliadača: https://www.youtube.com/watch?v=zd ...
449 000 €
Michalovce
071 01
071 01
42 x
Označiť zlý inzerát Chybnú kategóriu Ohodnotiť užívateľa Zmazať/Upraviť/Topovať
VEĽKÝ RODINNÝ DOM / DVOJDOM – NA HRÁDKU - [6.11. 2025]ID:180
GE-MAX Reality Vám exkluzívne ponúka na predaj priestranný rodinný dom typu dvojdom, ktorý sa nachádza v lukratívnej a pokojnej štvrti Na Hrádku – ideálna lokalita pre rodinné bývanie.
Dom je v pôvodnom, ale veľmi zachovalom stave – ideálny na okamžité bývanie alebo rekonštrukciu podľa vlas ...
275 000 €
Michalovce
071 01
071 01
107 x
Označiť zlý inzerát Chybnú kategóriu Ohodnotiť užívateľa Zmazať/Upraviť/Topovať
Predaj HOLOdomu Biela Hora - [6.11. 2025]Ponúkame Vám na predaj – modernú novostavbu v rekreačnej oblasti Biela Hora, okres Michalovce
Pre náročných klientov ponúkame moderný rodinný dom – novostavbu typu HOLODOM, určenú na celoročné bývanie.
Dom je postavený z kvalitných materiálov s dôrazom na komfort, úsporu energie a moderný diza ...
250 000 €
Michalovce
071 01
071 01
579 x
Označiť zlý inzerát Chybnú kategóriu Ohodnotiť užívateľa Zmazať/Upraviť/Topovať
Dvojpodlažný rodinný dom v pokojnej lokalite Michaloviec - TOP - [11.11. 2025]Typ: Rodinný dom
Obec: Michalovce
Ponúkame Vám na predaj krásny dvojpodlažný rodinný dom v pokojnej lokalite mesta Michalovce, pri rieke Laborec. Tento dom je ideálnym miestom pre tých, ktorí hľadajú kombináciu pohodlia, moderného bývania a prírody v okolí.
pokojná lokal ...
305 000 €
Michalovce
071 01
071 01
414 x
Označiť zlý inzerát Chybnú kategóriu Ohodnotiť užívateľa Zmazať/Upraviť/Topovať
Predaj rodinného domu, Michalovce - [5.11. 2025]Na predaj samostatne stojaci dom na ul. Fr. Kráľa v Michalovciach. Rodinný dom je po kompletnej rekonštrukcii: plastové okná, zateplenie, fasáda, znížené stropy, stierky, podlahy, dlažby, inter. a exter. dvere...
Pozostáva zo 7 izieb, kuchyne prepojenej s halou, 2 kúpeľní, 2 balkónov a chodby. Po ...
308 000 €
Michalovce
071 01
071 01
84 x
Označiť zlý inzerát Chybnú kategóriu Ohodnotiť užívateľa Zmazať/Upraviť/Topovať









