3 izb byt novostavba
- [10.11. 2025]Zmazať/ Upraviť/ Topovať

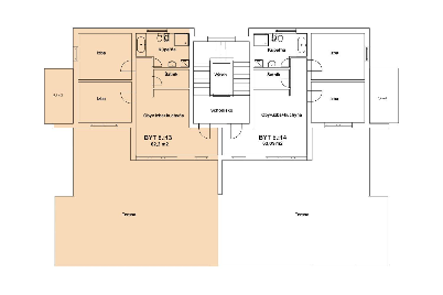
3izb byt na predaj.Byt sa nachádza na 4 poschodi ktore je ustúpené . Krasny priestranny slnečný byt v novostavbe. Rozloha bytu 84.64m2 + terasa 72.64m2. Cena bytu s DPH 270.679€
Bytový dom má 3 podlažia + štvrté podlažie je ustúpené. Na každom poschodí bytového domu sa nachádzajú dvoj a trojizbové byty
Dispozícia: vstupná chodba, samostatné WC,obývačka spojená s kuchyňou a výstupom na terasu,spálňa s vystupom na terasu,detská izba s francúzkym oknom,šatník,kúpelna+WC.V byte sa nachádza bojler na ohrev vody,v byte je elektricke podlahove kúrenie v každnej miestnosti termostat.
Stavba sa odovzdáva v stave na kľúč v štandarde, okrem kuchynských liniek.
Byt je v stave holobytu -klient si môže vybrať materialy ,interierove dvere ,podlahy,obklady a podľa jeho požiadaviek bude byt dokončený.V byte je predpriprava na elektricke žaluzie,a klimatizáciu.
Bytový dom sa nachádza na periférii Nových Zámkov v lokalite za Troma Mostami v uzavretej súkromnej ulici. Je to pokojná štvrť s rýchlou dostupnosťou k hlavnému ťahu na Bratislavu, Nitru, Šurany či Dvory nad Žitavou.
NIE SOM RK! RK Nevolať!!!
Bytový dom má 3 podlažia + štvrté podlažie je ustúpené. Na každom poschodí bytového domu sa nachádzajú dvoj a trojizbové byty
Dispozícia: vstupná chodba, samostatné WC,obývačka spojená s kuchyňou a výstupom na terasu,spálňa s vystupom na terasu,detská izba s francúzkym oknom,šatník,kúpelna+WC.V byte sa nachádza bojler na ohrev vody,v byte je elektricke podlahove kúrenie v každnej miestnosti termostat.
Stavba sa odovzdáva v stave na kľúč v štandarde, okrem kuchynských liniek.
Byt je v stave holobytu -klient si môže vybrať materialy ,interierove dvere ,podlahy,obklady a podľa jeho požiadaviek bude byt dokončený.V byte je predpriprava na elektricke žaluzie,a klimatizáciu.
Bytový dom sa nachádza na periférii Nových Zámkov v lokalite za Troma Mostami v uzavretej súkromnej ulici. Je to pokojná štvrť s rýchlou dostupnosťou k hlavnému ťahu na Bratislavu, Nitru, Šurany či Dvory nad Žitavou.
NIE SOM RK! RK Nevolať!!!
|
| |||||||||||||||||||||||||||||||
Kontaktovať inzerenta e-mailom
Kontaktovať e-mailom môže iba overený užívateľ.
Overenie je zadarmo.
Vaše telefónne číslo *
Kontaktovať e-mailom môže iba overený užívateľ.
Overenie je zadarmo.
Vaše telefónne číslo *