Prenájom 200m2 obchodných priestorov, prízemie Living centra
- TOP - [13.11. 2025]Zmazať/ Upraviť/ Topovať



























Prenajmeme obchodné priestory na prízemí v polyfunkčnej budove Living centra v Žiline na Solinkách
Je tu zjazd z D1, veľmi dobré dopravné napojenie, v budove sú rôzne prevádzky ako Slovenská pošta, optika, pekáreň / cukráreň, diskont, 2 reštaurácie, vybavenie pre bývanie, TPD a ďalšie, v okolí predajňa METRO, benzínová stanica, autoumyváreň, ďalšia reštaurácia a predajne.
Priestory na prenájom sú na prízemí v strede polyfunkčného objektu, prístup k nemu je vstupom z prednej časti budovy, zadnej časti budovy (zásobovanie).
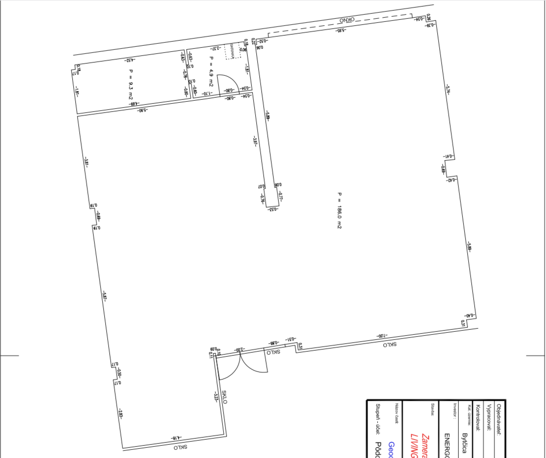
Priesor má spolu 200 m2, viď pôdorys (na mapke je to priestor označený "SCHEIDT&BACHMANN). Rozdelený na niekoľko častí.
Na chodbe sa nachádza sociálne zariadenie WC dámske / pánske.
Priestory sú voľné ihneď!
Cena za m2 je 11€ bez dph / mes.
K cene prenájmu sa extra prefaktúrujú správcovské poplatky mesačne (teplo, voda, odpad, klimatizácia počas letných mesiacov podľa reálnej spotreby) a elektrická energia podľa podružného merača. Merač el. energie je v každom priestore už nainštalovaný.
V cene nájmu je 1 parkovacie miesto.
Podľa záujmu vieme riešiť aj ďalšie parkovacie miesta pri budove. Cena ďalších parkovacích státí je 60 eur bez dph / mes 1 auto.
Video prehliadka tu https://youtu.be/8oFs3XFXA3g?feature=shared
Pre viac info ma kontaktuje správou / e-mailom alebo na tel. čísle
Je tu zjazd z D1, veľmi dobré dopravné napojenie, v budove sú rôzne prevádzky ako Slovenská pošta, optika, pekáreň / cukráreň, diskont, 2 reštaurácie, vybavenie pre bývanie, TPD a ďalšie, v okolí predajňa METRO, benzínová stanica, autoumyváreň, ďalšia reštaurácia a predajne.
Priestory na prenájom sú na prízemí v strede polyfunkčného objektu, prístup k nemu je vstupom z prednej časti budovy, zadnej časti budovy (zásobovanie).
Priesor má spolu 200 m2, viď pôdorys (na mapke je to priestor označený "SCHEIDT&BACHMANN). Rozdelený na niekoľko častí.
Na chodbe sa nachádza sociálne zariadenie WC dámske / pánske.
Priestory sú voľné ihneď!
Cena za m2 je 11€ bez dph / mes.
K cene prenájmu sa extra prefaktúrujú správcovské poplatky mesačne (teplo, voda, odpad, klimatizácia počas letných mesiacov podľa reálnej spotreby) a elektrická energia podľa podružného merača. Merač el. energie je v každom priestore už nainštalovaný.
V cene nájmu je 1 parkovacie miesto.
Podľa záujmu vieme riešiť aj ďalšie parkovacie miesta pri budove. Cena ďalších parkovacích státí je 60 eur bez dph / mes 1 auto.
Video prehliadka tu https://youtu.be/8oFs3XFXA3g?feature=shared
Pre viac info ma kontaktuje správou / e-mailom alebo na tel. čísle
|
| |||||||||||||||||||||||||||||||
Kontaktovať inzerenta e-mailom
Kontaktovať e-mailom môže iba overený užívateľ.
Overenie je zadarmo.
Vaše telefónne číslo *
Kontaktovať e-mailom môže iba overený užívateľ.
Overenie je zadarmo.
Vaše telefónne číslo *






