DREVENICA V HORSKOM PROSTREDÍ JAVORNÍKOV
- [10.11. 2025]Zmazať/ Upraviť/ Topovať



























Realitná kancelária REG4U Vám vo výhradnom zastúpení ponúka na predaj rekreačný celoročne obývateľný dom - 2 poschodovú drevenicu s autentickými prvkami v okrese Púchov, v obci Lazy pod Makytou, ktorá sa rozprestiera na úpätí a svahoch Javorníkov. Veľkorysé bývanie na pozemku s výmerou cca 1100 m2 je situované v rekreačnej lokalite využívanej návštevníkmi celoročne.
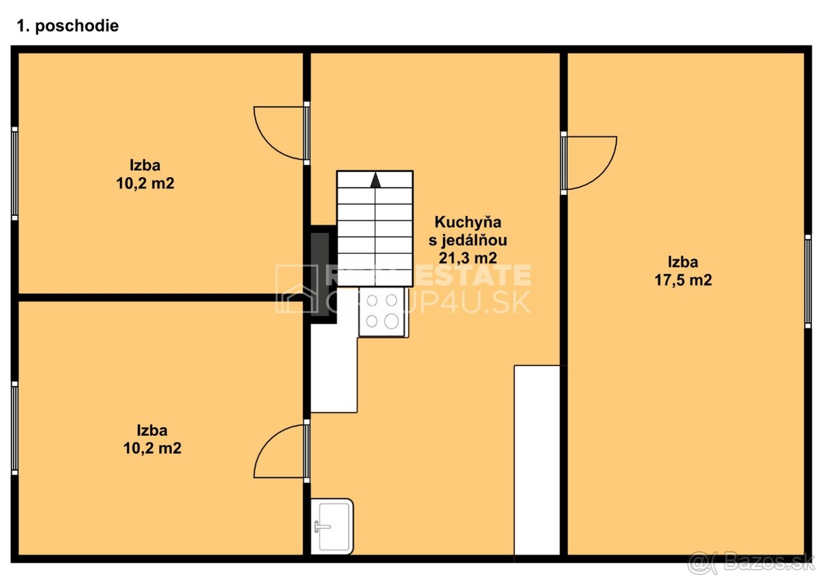
O DOME:
6 izbový poschodový dom s úžitkovou plochou 134,5 m2
priestranné izby (viď pôdorysy)
na prízemí 1 bytová jednotka (75,5 m2) - 2 izby, kuchyňa, technické zázemie, kúpeľňa s vaňou a samostatné wc
na poschodí 2 bytová jednotka (59 m2) - 3 izby a kuchyňa
rodinný dom so súpisným číslom bol využívaný na celoročné bývanie
dom je napojený na elektrinu, septik, zdroj vody - kopaná studňa, možnosť pripojenia na obecný vodovod a internet
vykurovanie radiátormi, kúrenie na tuhé palivo, ohrev vody - bojlerom alebo kotlom
v kuchyni sa nachádza vstavaná pec na pevné palivo.
VÝHODY PONUKY:
dom spolu so slnečnou záhradou poskytuje možnosti na víkendové bývanie - chalupárčenie aj záhradkárčenie
môžete tu prežiť krásne momenty s rodinou, s priateľmi a známymi
pri rodinnom dome sa nachádza garáž, pivnica, kotolňa s drevárňou
po pravej strane lemuje hranicu pozemku potok
vstup na pozemok z miestnej komunikácie
vo dvore je je možné zaparkovať aj 3-4 osobné autá
dom je situovaný v centre obce s dobrou občianskou vybavenosťou.
Energetický certifikát ku nehnuteľnosti nebol vypracovaný.
Vzdialenosť od mesta Púchov 17 km, pripojenie na D1 do 22km.
CENA DOMU S POZEMKOM: 104 900.-€
V REG4U vybavíme za Vás:
hypotéku a právne služby
kataster
inžinierske siete
koordináciu projektu a výstavby
stavebné povolenie , kolaudáciu
služby interiérového dizajnéra
Oplatí sa vidieť, neváhajte nás kontaktovať.
Call centrum: 0911 755 510
O DOME:
6 izbový poschodový dom s úžitkovou plochou 134,5 m2
priestranné izby (viď pôdorysy)
na prízemí 1 bytová jednotka (75,5 m2) - 2 izby, kuchyňa, technické zázemie, kúpeľňa s vaňou a samostatné wc
na poschodí 2 bytová jednotka (59 m2) - 3 izby a kuchyňa
rodinný dom so súpisným číslom bol využívaný na celoročné bývanie
dom je napojený na elektrinu, septik, zdroj vody - kopaná studňa, možnosť pripojenia na obecný vodovod a internet
vykurovanie radiátormi, kúrenie na tuhé palivo, ohrev vody - bojlerom alebo kotlom
v kuchyni sa nachádza vstavaná pec na pevné palivo.
VÝHODY PONUKY:
dom spolu so slnečnou záhradou poskytuje možnosti na víkendové bývanie - chalupárčenie aj záhradkárčenie
môžete tu prežiť krásne momenty s rodinou, s priateľmi a známymi
pri rodinnom dome sa nachádza garáž, pivnica, kotolňa s drevárňou
po pravej strane lemuje hranicu pozemku potok
vstup na pozemok z miestnej komunikácie
vo dvore je je možné zaparkovať aj 3-4 osobné autá
dom je situovaný v centre obce s dobrou občianskou vybavenosťou.
Energetický certifikát ku nehnuteľnosti nebol vypracovaný.
Vzdialenosť od mesta Púchov 17 km, pripojenie na D1 do 22km.
CENA DOMU S POZEMKOM: 104 900.-€
V REG4U vybavíme za Vás:
hypotéku a právne služby
kataster
inžinierske siete
koordináciu projektu a výstavby
stavebné povolenie , kolaudáciu
služby interiérového dizajnéra
Oplatí sa vidieť, neváhajte nás kontaktovať.
Call centrum: 0911 755 510
|
| |||||||||||||||||||||||||||||||
Kontaktovať inzerenta e-mailom
Kontaktovať e-mailom môže iba overený užívateľ.
Overenie je zadarmo.
Vaše telefónne číslo *
Kontaktovať e-mailom môže iba overený užívateľ.
Overenie je zadarmo.
Vaše telefónne číslo *
Podobné inzeráty
RODINNÝ DOM V OBCI LAZY POD MAKYTOU VO VÝHRADNOM... - [8.11. 2025]TUreality ponúka na predaj vo výhradnom zastúpení udržiavanú chalupu s celoročným prístupom autom v prekrásnom prostredí lesov a lúk nad obcou Lazy pod Makytou v Púchovskom okrese. Slnečný pozemok o celkovej výmere 1409 m2 v zastavanom území obce zaručuje dostatok súkromia a miesta na parkovanie i ...
108 000 €
Púchov
020 55
020 55
119 x
Označiť zlý inzerát Chybnú kategóriu Ohodnotiť užívateľa Zmazať/Upraviť/Topovať
CHALUPA - V BLÍZKOSTI LYŽIARSKEHO STREDISKA - 65 000.-€ - [7.11. 2025]Realitná kancelária REG4U Vám ponúka vo výhradnom zastúpení NA PREDAJ RODINNÝ DOM v obci Lazy pod Makytou, okres Púchov, časť Olšová so zastavanou plochou 72 m2.
VÝHODY PONUKY:
murovaný 2 podlažný rodinný dom
celopodpivničený
čiastočne zariadený
vrchné podlažie domu je obývateľné, spodné vyža ...
65 000 €
Púchov
020 55
020 55
127 x
Označiť zlý inzerát Chybnú kategóriu Ohodnotiť užívateľa Zmazať/Upraviť/Topovať
ZNÍŽENÁ CENA Na predaj - rekreačný dom - chata v prírode , - [27.10. 2025]Typ: Chata
Obec: Lazy pod Makytou
N007-13-DASEa
Ponúkame na predaj kompletne zariadenú rekreačnú chatu v tichej lokalite s výbornou dostupnosťou, neďaleko lyžiarskych stredísk. Ideálna na súkromné účely alebo ako investícia na prenájom.
Základné informácie:
Typ: Rekreačný dom (chata)
Poz ...
86 000 €
Púchov
020 55
020 55
249 x
Označiť zlý inzerát Chybnú kategóriu Ohodnotiť užívateľa Zmazať/Upraviť/Topovať
Predaj, Rekreačný objekt/Chata (RE01021486) - [20.10. 2025]Ponúkame na predaj rovinatý pozemok v obci Lazy pod Makytou. Celková výmera pozemku je 3.230 m2, v zmysle územného plánu obce je určený na výstavbu rodinných domov ale aj rekreačných chát. Na pozemku stojí rozostavaná, murovaná stavba rodinného domu v štádiu hrubej stavby. Povolená miera zastavanost ...
V texte
Púchov
020 55
020 55
188 x
Označiť zlý inzerát Chybnú kategóriu Ohodnotiť užívateľa Zmazať/Upraviť/Topovať






