4-izbový dom na predaj, Trávnica, pozemok 568 m2
- [10.11. 2025]Zmazať/ Upraviť/ Topovať



























Kedy konečne budeme vo vlastnom? Byt, či dom? Stavať, či prerábať? Zoženiem kvalitných majstrov? Zase zdražel stavebný materiál? Ak momentálne hľadáte odpovede na tieto otázky a rozhodli ste sa kúpiť už hotový, nový a moderný bungalov, možno vás osloví práve táto ponuka a nájdete svoje vysnívané bývanie. Bývajte vo svojom vysnívanom dome na krásnom pozemku.
V exkluzívnom zastúpení majiteľa predáme rodinný dom v obci Trávnica, okres Nové Zámky.
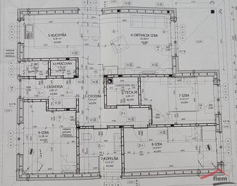
Moderný drevodom postavený podľa individuálneho projektu má výborné dispozičné riešenie – vstupná chodba, samostatné WC, technická miestnosť, práčovňa, chodba, 3x neprechodná izba, kúpeľňa, obývačka spojená s kuchyňou. Priestranná kúpeľňa s oknom je riešená naozaj veľkoryso, WC, 2x umývadlo, sprchový kút. Srdcom domu je otvorený veľkopriestor obývacej izby spojenej s kuchyňou. Z obývacej izby je výstup na terasu /3,5m x 2,2 m/ orientovanú na juhovýchod.
Okná sú plastové so sieťkami a žalúziami, podlahy sú z keramickej dlažby a laminátové podlahy. V dome je rekuperácia. Vykurovanie je podlahové elektrické, krbové kachle poskytujú príjemnú atmosféru a alternatívne vykurovanie.
Inžinierske siete zavedené v dome sú elektrika 220/400V, obecná voda. Odkanalizovanie je do žumpy 10 m3, výhodou je vŕtaná studňa na pozemku.
K domu vedie slepá prístupová cesta. Pozemok má ideálnu veľkosť – 16x37 m. Celková rozloha rovinatého pozemku je 568 m2. Pozemok je celooplotený – plechová brána + pozinkované pletivo, chodníky a parkovacie plochy sú vydláždené zámkovou dlažbou.
Parkovanie pri tomto dome nie je žiadny problém. Vo dvore je vydláždené nekryté státie pre 2 autá + na ulici. Na pozemku sa nachádza drevený záhradný domček so zavedenou elektrinou + voliéra pre psa. Dokonca aj výsadbu okrasných drevín už máte hotovú. S oplotením si tiež nemusíte robiť starosti. Pozemok je celooplotený – plechová brána + pozinkované pletivo.
Obec Trávnica má kompletnú občiansku vybavenosť. Blízke Šurany a Vráble poskytujú dostatok študijných aj pracovných možností. Dobré dopravné spojenie do okolitých miest. Termálne kúpalisko Podhájska sa nachádza iba 3,5 km od domu.
Ak Vás naša ponuka zaujala, neváhajte ma kontaktovať na tel. čísle 0907 579 033 alebo píšte na golhova.jana@flem.sk, rada Vám zodpoviem na všetky otázky ohľadom tejto ponuky.
Všetky naše ponuky nájdete na flem.sk alebo na FB: FLEM, sro - predaj, kúpa, prenájom nehnuteľností.
Zastavaná plocha: 121m²
Obytná plocha: 86m²
Rozloha pozemku: 568m²
Úžitková plocha: 86m²
Vlastníctvo: osobné
Stav: pôvodný
El. napätie: 230/400V
Plyn: nie
Kanalizácia: žumpa
Kúpeľňa: sprchovací kút
Vykurovanie: vlastné - elektrické
Terasa: áno
Parkovanie: vlastné vyhradené
Postavené z: drevostavba
Zariadenie: zariadený
Zateplený objekt: áno
Energetický certifikát: nie
Predzáhradka: neuvedené
Okná: plastové
Terén: rovina
V exkluzívnom zastúpení majiteľa predáme rodinný dom v obci Trávnica, okres Nové Zámky.
Moderný drevodom postavený podľa individuálneho projektu má výborné dispozičné riešenie – vstupná chodba, samostatné WC, technická miestnosť, práčovňa, chodba, 3x neprechodná izba, kúpeľňa, obývačka spojená s kuchyňou. Priestranná kúpeľňa s oknom je riešená naozaj veľkoryso, WC, 2x umývadlo, sprchový kút. Srdcom domu je otvorený veľkopriestor obývacej izby spojenej s kuchyňou. Z obývacej izby je výstup na terasu /3,5m x 2,2 m/ orientovanú na juhovýchod.
Okná sú plastové so sieťkami a žalúziami, podlahy sú z keramickej dlažby a laminátové podlahy. V dome je rekuperácia. Vykurovanie je podlahové elektrické, krbové kachle poskytujú príjemnú atmosféru a alternatívne vykurovanie.
Inžinierske siete zavedené v dome sú elektrika 220/400V, obecná voda. Odkanalizovanie je do žumpy 10 m3, výhodou je vŕtaná studňa na pozemku.
K domu vedie slepá prístupová cesta. Pozemok má ideálnu veľkosť – 16x37 m. Celková rozloha rovinatého pozemku je 568 m2. Pozemok je celooplotený – plechová brána + pozinkované pletivo, chodníky a parkovacie plochy sú vydláždené zámkovou dlažbou.
Parkovanie pri tomto dome nie je žiadny problém. Vo dvore je vydláždené nekryté státie pre 2 autá + na ulici. Na pozemku sa nachádza drevený záhradný domček so zavedenou elektrinou + voliéra pre psa. Dokonca aj výsadbu okrasných drevín už máte hotovú. S oplotením si tiež nemusíte robiť starosti. Pozemok je celooplotený – plechová brána + pozinkované pletivo.
Obec Trávnica má kompletnú občiansku vybavenosť. Blízke Šurany a Vráble poskytujú dostatok študijných aj pracovných možností. Dobré dopravné spojenie do okolitých miest. Termálne kúpalisko Podhájska sa nachádza iba 3,5 km od domu.
Ak Vás naša ponuka zaujala, neváhajte ma kontaktovať na tel. čísle 0907 579 033 alebo píšte na golhova.jana@flem.sk, rada Vám zodpoviem na všetky otázky ohľadom tejto ponuky.
Všetky naše ponuky nájdete na flem.sk alebo na FB: FLEM, sro - predaj, kúpa, prenájom nehnuteľností.
Zastavaná plocha: 121m²
Obytná plocha: 86m²
Rozloha pozemku: 568m²
Úžitková plocha: 86m²
Vlastníctvo: osobné
Stav: pôvodný
El. napätie: 230/400V
Plyn: nie
Kanalizácia: žumpa
Kúpeľňa: sprchovací kút
Vykurovanie: vlastné - elektrické
Terasa: áno
Parkovanie: vlastné vyhradené
Postavené z: drevostavba
Zariadenie: zariadený
Zateplený objekt: áno
Energetický certifikát: nie
Predzáhradka: neuvedené
Okná: plastové
Terén: rovina
|
| |||||||||||||||||||||||||||||||
Kontaktovať inzerenta e-mailom
Kontaktovať e-mailom môže iba overený užívateľ.
Overenie je zadarmo.
Vaše telefónne číslo *
Kontaktovať e-mailom môže iba overený užívateľ.
Overenie je zadarmo.
Vaše telefónne číslo *






