Rodinný dom NOVOSTAVBA - Bardejov časť Piesky
- [10.11. 2025]Zmazať/ Upraviť/ Topovať














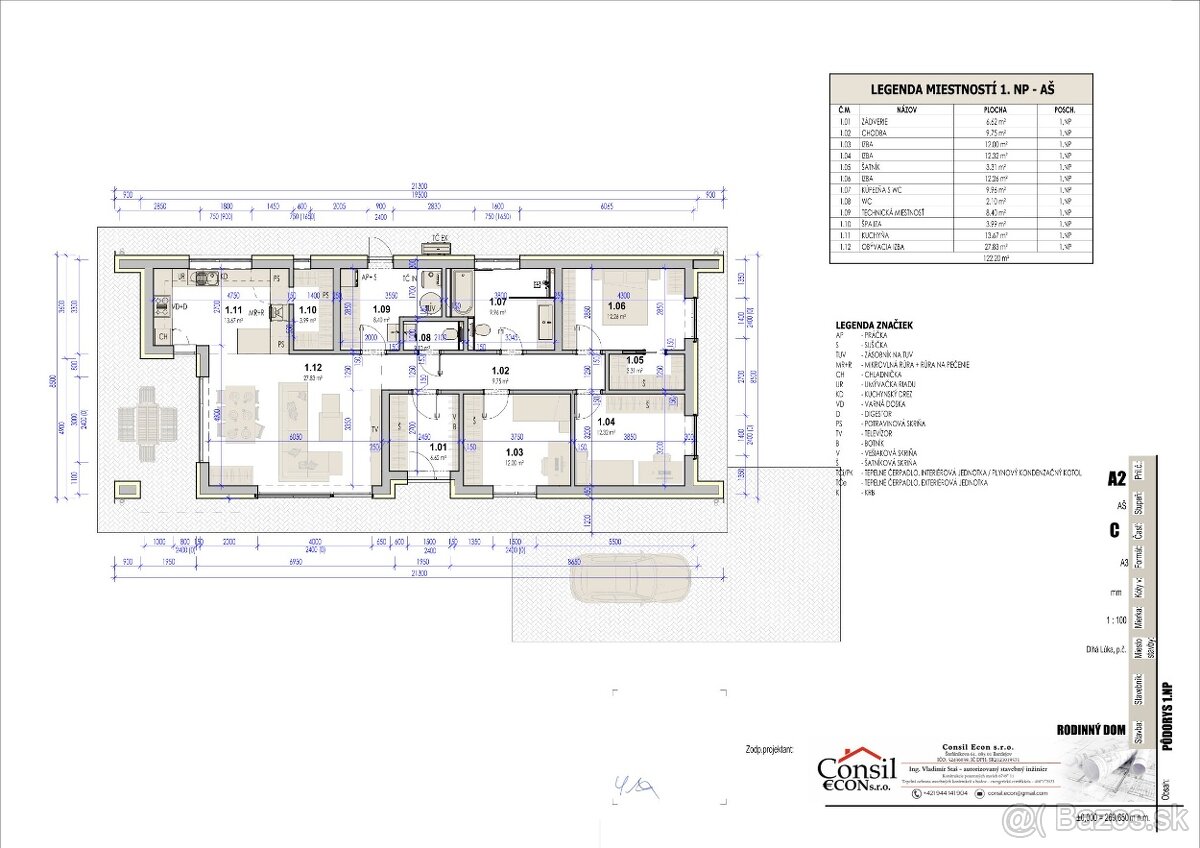
Ponúkame na predaj, Rodinný dom tipu - BUNGALOV, krásnej stavby, v Bardejove časť Piesky
✅výmera pozemku 470 m2
✅ terén rovinatý
✅možnosť úpravy projektu podľa priania klienta
✅ možnosť výberu resp. zámeny materiálov
✅ predaj v stave holo dom - v prípade záujmu možnosť
dokončenia na kľúč
✅šikovná stavba s rozlohou podlahovej plochy 125 m2
✅voda, elektrina, odpad do žumpy + možnosť napojenia na kanalizáciu
✅výmera pozemku 470 m2
✅ terén rovinatý
✅možnosť úpravy projektu podľa priania klienta
✅ možnosť výberu resp. zámeny materiálov
✅ predaj v stave holo dom - v prípade záujmu možnosť
dokončenia na kľúč
✅šikovná stavba s rozlohou podlahovej plochy 125 m2
✅voda, elektrina, odpad do žumpy + možnosť napojenia na kanalizáciu
|
| |||||||||||||||||||||||||||||||
Kontaktovať inzerenta e-mailom
Kontaktovať e-mailom môže iba overený užívateľ.
Overenie je zadarmo.
Vaše telefónne číslo *
Kontaktovať e-mailom môže iba overený užívateľ.
Overenie je zadarmo.
Vaše telefónne číslo *