NOVOSTAVBA DVOJDOMU S POZEMKOM V ŠTANDARDE, LEHNICE-KOLÓNIA
- [10.11. 2025]Zmazať/ Upraviť/ Topovať






























Realitná kancelária Archeus Bratislava Premium ponúka na predaj dva priestranné rodinné domy v rámci dvojdomu v obci Lehnice časť Kolónia, len 20 minút od Bratislavy.
Táto novostavba je postavená z kvalitných materiálov na oplotenom rovinatom pozemku, s celkovou rozlohou 500 m2.
Novostavba sa nachádza v obci Lehnice - časť Kolónia s výbornou dostupnosťou do Bratislavy, do Senca, Dunajskej Stredy, aj Šamorína, len na skok od rýchlostnej cesty R7D4.
Dvojdom je situovaný v novovybudovanej štvrti moderných rodinných domov, v tichej lokalite s krásnym výhľadom z horného poschodia.
Ku každému domu prislúcha parkovacia plocha so zámkovou dlažbou pre dve autá v prednej časti dvora, v zadnej časti dvora sa nachádza záhrada a priestor na terasu.
DOMY:
K dispozícii na predaj sú dva priestranné domy, ktoré sú dispozične rovnaké a sú zrkadlovo orientované.
Dom 1 disponuje pozemkom s rozlohou 288 m2, má zastavanú plochu 76,5 m2 a úžitkovú podlahovú plochu 123 m2.
Dom 2 disponuje pozemkom s rozlohou 212 m2, má zastavanú plochu 76,5 m2 a úžitkovú podlahovú plochu 123 m2.
Domy majú dve nadzemné podlažia, prízemie a prvé poschodie a dispozične pozostávajú z:
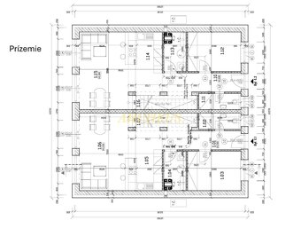
Prízemie:
predsieň + chodba (8,26 m2)
WC + sprcha (3,45 m2)
obývacia izba (19,2 m2) s kuchyňou (10,6 m2)
izba (10,6 m2)
technická miestnosť (4,6 m2)
schodisko (4,76 m2)
Z obývacej izby a kuchyne je vstup na terasu a do záhrady.
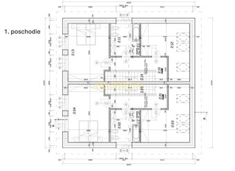
Prvé poschodie:
chodba (8,18 m2)
kúpeľňa s WC (8,68 m2)
izba 1 (19,09 m2)
izba 2 (20,85 m2)
schodisko (4,76 m2)
Základný stavebno – technický popis:
Dom sa predáva v štandarde bez kuchynskej linky
Murovaná stavba s realizáciou vonkajších povrchových úprav - zateplenie a fasáda so sedlovou strechou a realizáciou vnútorných úprav - podlahy - drevené parkety, keramická dlažba, zárubne, dvere, okná (trojsklo), sanita, batérie
Napojenie na inžinierske siete: elektrická prípojka, vodovodná prípojka, odvod odpadových vôd - žumpa
Rozvody elektro so zásuvkami a vypínačmi
Steny omietnuté a vymaľované bielou farbou
Inštalácie vykurovacích rozvodov na podlahové kúrenie
Zdroj tepla - tepelné čerpadlo
Príprava na klimatizáciu
Optika
Dom je postavený z kvalitných materiálov, je zateplený.
Kolaudácia domov prebieha.
Prečo si vybrať tento projekt? Obec Lehnice je ideálne miesto pre Váš nový dom, s jeho výhodami oproti životu v rušných mestách. Obec sa s veľkou starostlivosťou stará o svojich obyvateľov, čo z nej robí priateľskú komunitu, aktívne investuje do infraštruktúry.
Vďaka čerpaniu eurofondov sa neustále rozvíja, aby svojiím obyvateľom poskytla čo najviac pohodlné bývanie a nažívanie.
Cena domu 1 s pozemkom o výmere 288 m2 je 204.900 EUR a domu 2 s pozemkom o výmere 212 m2 je 194.900 EUR. K cene sa pripočíta provízia RK vo výške 3% z ceny dom
Táto novostavba je postavená z kvalitných materiálov na oplotenom rovinatom pozemku, s celkovou rozlohou 500 m2.
Novostavba sa nachádza v obci Lehnice - časť Kolónia s výbornou dostupnosťou do Bratislavy, do Senca, Dunajskej Stredy, aj Šamorína, len na skok od rýchlostnej cesty R7D4.
Dvojdom je situovaný v novovybudovanej štvrti moderných rodinných domov, v tichej lokalite s krásnym výhľadom z horného poschodia.
Ku každému domu prislúcha parkovacia plocha so zámkovou dlažbou pre dve autá v prednej časti dvora, v zadnej časti dvora sa nachádza záhrada a priestor na terasu.
DOMY:
K dispozícii na predaj sú dva priestranné domy, ktoré sú dispozične rovnaké a sú zrkadlovo orientované.
Dom 1 disponuje pozemkom s rozlohou 288 m2, má zastavanú plochu 76,5 m2 a úžitkovú podlahovú plochu 123 m2.
Dom 2 disponuje pozemkom s rozlohou 212 m2, má zastavanú plochu 76,5 m2 a úžitkovú podlahovú plochu 123 m2.
Domy majú dve nadzemné podlažia, prízemie a prvé poschodie a dispozične pozostávajú z:
Prízemie:
predsieň + chodba (8,26 m2)
WC + sprcha (3,45 m2)
obývacia izba (19,2 m2) s kuchyňou (10,6 m2)
izba (10,6 m2)
technická miestnosť (4,6 m2)
schodisko (4,76 m2)
Z obývacej izby a kuchyne je vstup na terasu a do záhrady.
Prvé poschodie:
chodba (8,18 m2)
kúpeľňa s WC (8,68 m2)
izba 1 (19,09 m2)
izba 2 (20,85 m2)
schodisko (4,76 m2)
Základný stavebno – technický popis:
Dom sa predáva v štandarde bez kuchynskej linky
Murovaná stavba s realizáciou vonkajších povrchových úprav - zateplenie a fasáda so sedlovou strechou a realizáciou vnútorných úprav - podlahy - drevené parkety, keramická dlažba, zárubne, dvere, okná (trojsklo), sanita, batérie
Napojenie na inžinierske siete: elektrická prípojka, vodovodná prípojka, odvod odpadových vôd - žumpa
Rozvody elektro so zásuvkami a vypínačmi
Steny omietnuté a vymaľované bielou farbou
Inštalácie vykurovacích rozvodov na podlahové kúrenie
Zdroj tepla - tepelné čerpadlo
Príprava na klimatizáciu
Optika
Dom je postavený z kvalitných materiálov, je zateplený.
Kolaudácia domov prebieha.
Prečo si vybrať tento projekt? Obec Lehnice je ideálne miesto pre Váš nový dom, s jeho výhodami oproti životu v rušných mestách. Obec sa s veľkou starostlivosťou stará o svojich obyvateľov, čo z nej robí priateľskú komunitu, aktívne investuje do infraštruktúry.
Vďaka čerpaniu eurofondov sa neustále rozvíja, aby svojiím obyvateľom poskytla čo najviac pohodlné bývanie a nažívanie.
Cena domu 1 s pozemkom o výmere 288 m2 je 204.900 EUR a domu 2 s pozemkom o výmere 212 m2 je 194.900 EUR. K cene sa pripočíta provízia RK vo výške 3% z ceny dom
|
| |||||||||||||||||||||||||||||||
Kontaktovať inzerenta e-mailom
Kontaktovať e-mailom môže iba overený užívateľ.
Overenie je zadarmo.
Vaše telefónne číslo *
Kontaktovať e-mailom môže iba overený užívateľ.
Overenie je zadarmo.
Vaše telefónne číslo *









