Dom v malebnom Zliechove, v srdci Strážovských vrchov, na
- [9.11. 2025]Zmazať/ Upraviť/ Topovať





























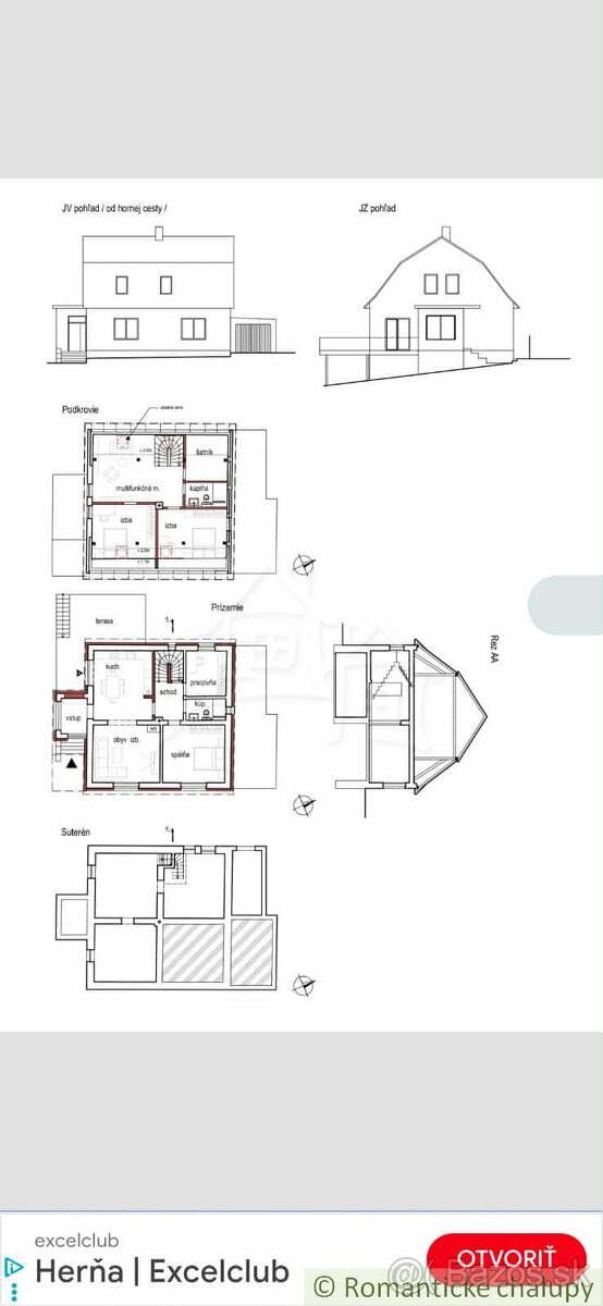
Starší rodinný dom v malebnej obci Zliechov, v srdci Strážovských vrchov, ktorý je kompletne vyprataný a pripravený na rekonštrukciu, je na predaj. Vrátane plánu rekonštrukcie, ktorý dal vypracovať majiteľ. (Pre nového vlastníka je nezáväzný, možné je vlastné dispozičné riešenie).
Objekt je pripojený na vodu, elektrinu (220/380 V) a má vlastnú žumpu.
Má dve nadzemné podlažia a z veľkej časti je podpivničený (90 m2). Na prvom nadzemnom podlaží je kuchyňa, tri izby, kúpeľňa s WC. Podkrovie je priestranné, pripravené na vlastné dispozičné riešenie. Krov je drevený, strecha plechová, oboje v dobrom stave. Dvor je oplotený, pri predaji bude kompletne vyprataný. V zadnej časti, za plotom, tečie potok.
Dom je po rekonštrukcii vhodný na trvalé bývanie, ale aj ako chata.
Obec Zliechov leží v chránenej krajinnej oblasti Strážovské vrchy, na okraji štátnej prírodnej rezervácie a úpätí vrchu Strážov (1 213 m n. m.). Na jeho vrchole sa nachádza rozhranie okresov Ilava, Žilina, Prievidza, Považská Bystrica a Púchov. Vďaka odľahlej polohe v centrálnej časti pohoria je vyhľadávaným východiskovým miestom turistov. Prírodné danosti a atraktívne možnosti vyžitia zvyšujú turistické chodníky, cyklotrasy, vhodné podmienky na agroturistiku a lyžiarsky vlek.
Okresné mesto Ilava je vzdialené 20 km, Považská Bystrica 40 km, Trenčín do 50 km a Bratislava 160 km.
Obytná plocha: 105 m2
Plocha parcely: 338 m2
Elektrina: 220/380 V
Plyn: nie je zavedený
Odpady: žumpa bez prepadu
Voda: vodovod
Kúrenie: ústredné-tuhé palivá
Konštrukcia objektu: tehlová
Prístupová cesta: asfaltová
Druh stavby: dom
Umiestnenie: -
Rok poslednej rekonštrukcie: 2025
Objekt je pripojený na vodu, elektrinu (220/380 V) a má vlastnú žumpu.
Má dve nadzemné podlažia a z veľkej časti je podpivničený (90 m2). Na prvom nadzemnom podlaží je kuchyňa, tri izby, kúpeľňa s WC. Podkrovie je priestranné, pripravené na vlastné dispozičné riešenie. Krov je drevený, strecha plechová, oboje v dobrom stave. Dvor je oplotený, pri predaji bude kompletne vyprataný. V zadnej časti, za plotom, tečie potok.
Dom je po rekonštrukcii vhodný na trvalé bývanie, ale aj ako chata.
Obec Zliechov leží v chránenej krajinnej oblasti Strážovské vrchy, na okraji štátnej prírodnej rezervácie a úpätí vrchu Strážov (1 213 m n. m.). Na jeho vrchole sa nachádza rozhranie okresov Ilava, Žilina, Prievidza, Považská Bystrica a Púchov. Vďaka odľahlej polohe v centrálnej časti pohoria je vyhľadávaným východiskovým miestom turistov. Prírodné danosti a atraktívne možnosti vyžitia zvyšujú turistické chodníky, cyklotrasy, vhodné podmienky na agroturistiku a lyžiarsky vlek.
Okresné mesto Ilava je vzdialené 20 km, Považská Bystrica 40 km, Trenčín do 50 km a Bratislava 160 km.
Obytná plocha: 105 m2
Plocha parcely: 338 m2
Elektrina: 220/380 V
Plyn: nie je zavedený
Odpady: žumpa bez prepadu
Voda: vodovod
Kúrenie: ústredné-tuhé palivá
Konštrukcia objektu: tehlová
Prístupová cesta: asfaltová
Druh stavby: dom
Umiestnenie: -
Rok poslednej rekonštrukcie: 2025
|
| |||||||||||||||||||||||||||||||
Kontaktovať inzerenta e-mailom
Kontaktovať e-mailom môže iba overený užívateľ.
Overenie je zadarmo.
Vaše telefónne číslo *
Kontaktovať e-mailom môže iba overený užívateľ.
Overenie je zadarmo.
Vaše telefónne číslo *








