026h 3 izb. byt v apartmánovom komplexe Košice - Sever
- [8.11. 2025]Zmazať/ Upraviť/ Topovať

























Do dlhodobého nájmu ponúkame atypický bezbariérový byt s dvoma balkónmi v uzavretom obytnom komplexe a to vrátane parkovacieho miesta.
Lokalita: okrajová vilová štvrť mesta v susedstve obľúbenej rekreačnej zóny.
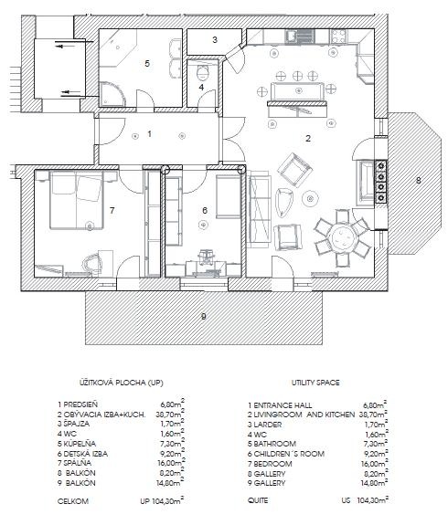
Popis bytu: Dispozícia bytu o rozlohe 104 m2 + balkóny je zrejmá z priloženého pôdorysu.
Byt umiestnený na 3.poschodí bytového domu je v nadštandardnom prevedení, drevené a keramické podlahy, kvalitné zariadenie, sanita, svietidlá, moderná kuchynská linka so spotrebičmi značky Bosch, samostatná priestranná kúpeľňa s práčkou a sušičkou, rohovou vaňou, sprchovým kútom s masážnym boxom a parnou saunou. Cez domový telefón je možné komunikovať s návštevou pri bráne. V kuchyni, WC a kúpeľni je aj podlahové kúrenie. V obývacej miestnosti je krb na drevo, zabudovaný systém domáceho kina, nezávislý TV, počítačový a telefónny rozvod. Televízny signál je možné prijímať cez satelitný rozvod telefónu T-com sieť (Magio), alebo UPS kábelový rozvod.
Popis areálu: Obytný komplex tvorí 11 apartmanových bytov a 4 rodinné domy so samostatnou infraštruktúrou a parkovaním pri dome, priamo v oplotenom a bezpečnom areály. Súčasťou dvorovej časti je aj oddychová zeleň s lavičkami a nočným záhradným osvetlením. Samozrejmosťou je aj detské ihrisko.
Kúrenie: plynový kotol, radiátory, + funkčný krb + podlahové kúrenie.
Dostupnosť: MHD.
Okolie a občianska vybavenosť: kompletná v blízkom okolí.
Mesačné nájomné za byt a jedno parkovacie miesto v areáli je 1 100,- € bez DPH. Platby nájmu sú kvartálne. K nájmu sa pripočítava platba za skutočnú spotrebu médií a služieb. Možnosť 2.parkovacieho miesta za poplatok 60,-€/mes.
Depozit:1 500,- €.
Uvedená cena je vrátane provízie realitnej kancelárie, v ktorej je zahrnuté vypracovanie nájomnej zmluvy a preberacieho protokolu.
Lokalita: okrajová vilová štvrť mesta v susedstve obľúbenej rekreačnej zóny.
Popis bytu: Dispozícia bytu o rozlohe 104 m2 + balkóny je zrejmá z priloženého pôdorysu.
Byt umiestnený na 3.poschodí bytového domu je v nadštandardnom prevedení, drevené a keramické podlahy, kvalitné zariadenie, sanita, svietidlá, moderná kuchynská linka so spotrebičmi značky Bosch, samostatná priestranná kúpeľňa s práčkou a sušičkou, rohovou vaňou, sprchovým kútom s masážnym boxom a parnou saunou. Cez domový telefón je možné komunikovať s návštevou pri bráne. V kuchyni, WC a kúpeľni je aj podlahové kúrenie. V obývacej miestnosti je krb na drevo, zabudovaný systém domáceho kina, nezávislý TV, počítačový a telefónny rozvod. Televízny signál je možné prijímať cez satelitný rozvod telefónu T-com sieť (Magio), alebo UPS kábelový rozvod.
Popis areálu: Obytný komplex tvorí 11 apartmanových bytov a 4 rodinné domy so samostatnou infraštruktúrou a parkovaním pri dome, priamo v oplotenom a bezpečnom areály. Súčasťou dvorovej časti je aj oddychová zeleň s lavičkami a nočným záhradným osvetlením. Samozrejmosťou je aj detské ihrisko.
Kúrenie: plynový kotol, radiátory, + funkčný krb + podlahové kúrenie.
Dostupnosť: MHD.
Okolie a občianska vybavenosť: kompletná v blízkom okolí.
Mesačné nájomné za byt a jedno parkovacie miesto v areáli je 1 100,- € bez DPH. Platby nájmu sú kvartálne. K nájmu sa pripočítava platba za skutočnú spotrebu médií a služieb. Možnosť 2.parkovacieho miesta za poplatok 60,-€/mes.
Depozit:1 500,- €.
Uvedená cena je vrátane provízie realitnej kancelárie, v ktorej je zahrnuté vypracovanie nájomnej zmluvy a preberacieho protokolu.
|
| |||||||||||||||||||||||||||||||
Kontaktovať inzerenta e-mailom
Kontaktovať e-mailom môže iba overený užívateľ.
Overenie je zadarmo.
Vaše telefónne číslo *
Kontaktovať e-mailom môže iba overený užívateľ.
Overenie je zadarmo.
Vaše telefónne číslo *
Podobné inzeráty
Prenájom 2 izbový byt Košice - Staré Mesto - [8.11. 2025]Prenajmem 2-izbovy byt v Košiciach v Starom Meste v blízkosti Hotela Yasmin. Byt má 2 izby (obývacia izba a spálňa) + samostatnú kuchyňu, kúpeľňu, samostatnú toaletu, predsieň, balkón a pivnicu. Byt sa machádza na 3. zo 4. poschodí, má cca 56 m2 a je po kompletnej rekonštrukcii. Cena nájmu je 680 eu ...
680 €
Košice
040 01
040 01
61 x
Označiť zlý inzerát Chybnú kategóriu Ohodnotiť užívateľa Zmazať/Upraviť/Topovať
Hľadám 1,5-2 izbový byt v Košiciach do 700€ - [8.11. 2025]Hladam bytu od 01.02, alebo polovica januára
700 €
Košice
040 01
040 01
29 x
Označiť zlý inzerát Chybnú kategóriu Ohodnotiť užívateľa Zmazať/Upraviť/Topovať
Prenájom 1.5 izbovy byt Malá Praha 2 - [8.11. 2025]Prenájom 1,5-izbového bytu – Malá Praha 2- Staré Mesto, Košice
Ponúkam na prenájom útulný 1,5-izbový byt s rozlohou 54 m² v lokalite Malá Praha 2, Staré Mesto – Košice. Byt sa nachádza len 10 minút pešo od centra, v tesnej blízkosti Technickej univerzity.
Byt sa nachádza na 2. poschodí tehlové ...
700 €
Košice
040 01
040 01
54 x
Označiť zlý inzerát Chybnú kategóriu Ohodnotiť užívateľa Zmazať/Upraviť/Topovať
2-izb. byt s terasou, Baštová – Staré Mesto, 890 €/mes. vrát - [8.11. 2025]Prenajmem klimatizovaný 2-izbový byt 53 m² s terasou 7,4 m² v tehlovom dome s výťahom priamo v centre Košíc – Baštová 6. Byt je kompletne zariadený (kuchyňa na mieru so vstavanými spotrebičmi, moderná kúpeľňa), optický internet, podlahové kúrenie.
Cena: 890 €/mes. vrátane energií + v cene 1× kryté ...
890 €
Košice
040 01
040 01
56 x
Označiť zlý inzerát Chybnú kategóriu Ohodnotiť užívateľa Zmazať/Upraviť/Topovať
Prenajom 3 izb. bytu-prizemie Kuzmanyho blizko hlavnej pošty - [8.11. 2025]Byt je na prízemí,kompletne novo zariadeny pre troch spolubyvajúcích,internet, počitač,minimalný prenajom 12 mesiacov. Byt momentalne v prestavbe, foto neskor,ak mate zaujem,uvedte či ste študent zamestnaný, kto bude v byte byvať atd,.... proste napište o sebe,pretože zaujem je velky, a podľa toho ...
660 €
Košice
040 01
040 01
88 x
Označiť zlý inzerát Chybnú kategóriu Ohodnotiť užívateľa Zmazať/Upraviť/Topovať
Prenájom 2 i. blízko Centra, Ludmanská, rek., LO, zariadený - [7.11. 2025]PONUKY NA NÁJOM PROSÍM ZASIELAŤ VÝHRADNE MAILOM: antol@seznam.cz ....ĎAKUJEME, BUDEME VÁS NÁSLEDNE KONTAKTOVAŤ
- Ing. Juraj Antol, ANTE REALITY (viac ako 26 ročné skúsenosti, člen Realitnej únie)
- EXKLIZÍVNE ZASTÚPENIE PRENAJÍMATEĽA
- 2 izbový byt v CENTRE mesta (Ludmanská ul.,pri Auparku)
- ...
650 €
Košice
040 01
040 01
159 x
Označiť zlý inzerát Chybnú kategóriu Ohodnotiť užívateľa Zmazať/Upraviť/Topovať
rekonštruovaný 2 i. TEHLOVÝ, blízko Centra, Jilemnického - [7.11. 2025]PONUKY NA NÁJOM PROSÍM ZASIELAŤ VÝHRADNE MAILOM: antol@seznam.cz ....ĎAKUJEME, BUDEME VÁS NÁSLEDNE KONTAKTOVAŤ
- Ing. Juraj Antol, ANTE REALITY (viac ako 26 ročné skúsenosti, člen Realitnej únie)
- EXKLUZÍVNE ZASTÚPENIE PRENAJÍMATEĽA
- Jilemnického ul., výborná poloha, v blízkosti historického ...
700 €
Košice
040 01
040 01
209 x
Označiť zlý inzerát Chybnú kategóriu Ohodnotiť užívateľa Zmazať/Upraviť/Topovať
Rekonštruovaný 3 izb. blízko Centra, Južná tr., LO, zariaden - [7.11. 2025]PONUKY NA NÁJOM PROSÍM ZASIELAŤ VÝHRADNE MAILOM: antol@seznam.cz ....ĎAKUJEME, BUDEME VÁS NÁSLEDNE KONTAKTOVAŤ
- Ing. Juraj Antol, ANTE REALITY (viac ako 26 ročné skúsenosti, člen Realitnej únie)
- EXKLUZÍVNE ZASTÚPENIE PRENAJÍMATEĽA
- ATRAKTÍVNY 3 izbový byt v blízkosti CENTRA mesta (ul. Južná ...
800 €
Košice
040 01
040 01
77 x
Označiť zlý inzerát Chybnú kategóriu Ohodnotiť užívateľa Zmazať/Upraviť/Topovať
Pekný 3-izb. byt s logiou, Fejova ul., pri OC AUPARK - [7.11. 2025]na prenájom pekný 3-izbový kompletne zrekonštruovaný byt s LOGIOU, nachádzajúci sa na Fejovej ulici, v centre mesta, neďaleko Auparku. Byt sa nachádza na 2. poschodí zo 7, má rozlohu 65m2 a prenajíma sa kompletne zariadený nábytkom a vybavený spotrebičmi. Bytový dom je zrekonštruovaný, s NOVÝM VÝŤAH ...
890 €
Košice
040 01
040 01
59 x
Označiť zlý inzerát Chybnú kategóriu Ohodnotiť užívateľa Zmazať/Upraviť/Topovať
Pekný 3-izbový byt so 6m logiou, Fibichova ul., pri Auparku - [7.11. 2025]Na prenájom pekný 3-izbový kompletne zrekonštruovaný byt so 6m LOGIOU, nachádzajúci sa na Fibichovej ulici, neďaleko AUPARKU. Byt sa nachádza na 2. poschodí zo 7, má rozlohu 68m2 a prenajíma sa kompletne zariadený nábytkom a vybavený spotrebičmi. Bytový dom je zrekonštruovaný, s NOVÝM VÝŤAHOM.
DI ...
800 €
Košice
040 01
040 01
76 x
Označiť zlý inzerát Chybnú kategóriu Ohodnotiť užívateľa Zmazať/Upraviť/Topovať




