Moderné bývanie v najlepšej lokalite 2 izbový byt s loggiou,
- [8.11. 2025]Zmazať/ Upraviť/ Topovať










Chcete bývať v centre a zároveň si užívať pokoj a prírodu ? Ak áno je tu projekt Topoľová Avenue, ktorý sa už nezopakuje ako aj Vaša šanca na kúpu.
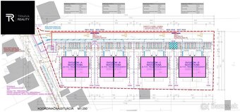
Ponúkame Vám na predaj 2-izbový byt s úžitkovou plochou 62 m2, samostatným vstupom v novom projekte Topoľová Avenue v TOP lokalite mesta Sereď v blízkosti futbalového štadiónu, rieky Váh, zámockého parku a cyklochodníku. Nehnuteľnosť ponúka najmodernejšie technológie, energetickú úsporu a vysoký komfort.
Projekt pozostáva z 24 bytových jednotiek 36 vonkajších parkovacích státí a vlastnej súkromnej ulice.
CENA 159.000,-€
možnosť dokončenia do štandardu s kuchynskou linkou
FORMA FINANCOVANIA
Pri podpise rezervačnej zmluvy 5000€
Pri podpise zmluvy o budúcej kúpnej zmluve 10% z celkovej kúpnej ceny
ROZLOHA BYTU
- Úžitková plocha bytu 54 m2
- loggia 8,2 m2
- Orientácia juhozápadná
ROZPIS BYTU
- vstupná hala
- kúpeľňa so sprchovým kútom a WC
- obývacia miestnosť s kuchyňou a jedálňou
- izba
- loggia
TECHNICKÉ PARAMETRE:
- elektrické podlahové kúrenie
- klimatizácia
- plastové okná 6 komorový rám s trojsklom
- predpríprava na exteriérové elektrické žalúzie
- zásuvky a vypínače značky Legrand
- rozvody optického internetu do každej miestnosti
- rovná strecha
- murivo tehla
- zateplenie systémom BAUMIT
- polystyrén 150 mm EPS
- biela maľovka
- termostat v každej miestnosti
- vchodové dvere
IS
- elektrina
- kanalizácia
- vodovod
- optický internet
Ponúkame Vám na predaj 2-izbový byt s úžitkovou plochou 62 m2, samostatným vstupom v novom projekte Topoľová Avenue v TOP lokalite mesta Sereď v blízkosti futbalového štadiónu, rieky Váh, zámockého parku a cyklochodníku. Nehnuteľnosť ponúka najmodernejšie technológie, energetickú úsporu a vysoký komfort.
Projekt pozostáva z 24 bytových jednotiek 36 vonkajších parkovacích státí a vlastnej súkromnej ulice.
CENA 159.000,-€
možnosť dokončenia do štandardu s kuchynskou linkou
FORMA FINANCOVANIA
Pri podpise rezervačnej zmluvy 5000€
Pri podpise zmluvy o budúcej kúpnej zmluve 10% z celkovej kúpnej ceny
ROZLOHA BYTU
- Úžitková plocha bytu 54 m2
- loggia 8,2 m2
- Orientácia juhozápadná
ROZPIS BYTU
- vstupná hala
- kúpeľňa so sprchovým kútom a WC
- obývacia miestnosť s kuchyňou a jedálňou
- izba
- loggia
TECHNICKÉ PARAMETRE:
- elektrické podlahové kúrenie
- klimatizácia
- plastové okná 6 komorový rám s trojsklom
- predpríprava na exteriérové elektrické žalúzie
- zásuvky a vypínače značky Legrand
- rozvody optického internetu do každej miestnosti
- rovná strecha
- murivo tehla
- zateplenie systémom BAUMIT
- polystyrén 150 mm EPS
- biela maľovka
- termostat v každej miestnosti
- vchodové dvere
IS
- elektrina
- kanalizácia
- vodovod
- optický internet
|
| |||||||||||||||||||||||||||||||
Kontaktovať inzerenta e-mailom
Kontaktovať e-mailom môže iba overený užívateľ.
Overenie je zadarmo.
Vaše telefónne číslo *
Kontaktovať e-mailom môže iba overený užívateľ.
Overenie je zadarmo.
Vaše telefónne číslo *
Podobné inzeráty
Bývanie v najlepšej lokalite 4 izbový byt 109 m2 so záhradko - [8.11. 2025]Chcete bývať v centre a zároveň si užívať pokoj a prírodu ? Ak áno je tu projekt Topoľová Avenue, ktorý sa už nezopakuje ako aj Vaša šanca na kúpu.
Ponúkame Vám na predaj 4-izbový byt s úžitkovou plochou 109 m2, samostatným vstupom a vlastnou záhradkou 150 m2, v novom projekte Topoľová Avenue v TO ...
236 980 €
Galanta
926 01
926 01
44 x
Označiť zlý inzerát Chybnú kategóriu Ohodnotiť užívateľa Zmazať/Upraviť/Topovať
4-izbový byt za cenu 2-izbového – už čoskoro v ponuke - [6.11. 2025]Typ: 4-izbový byt
Ulica: -
Obec: Sereď
Chystáme pre vás na predaj moderné 4-izbové byty v novostavbe, ktoré ponúkajú priestor, súkromie, skvelú dostupnosť a občiansku vybavenosť – toto všetko len pár minút od mesta Sereď.
Byty zaujmú tichou lokalitou a rýchlym nap ...
160 000 €
Galanta
926 01
926 01
743 x
Označiť zlý inzerát Chybnú kategóriu Ohodnotiť užívateľa Zmazať/Upraviť/Topovať
Nádherný 3-izb byt v meštianskom dome s parkovacím mi… - [6.11. 2025]Nádherný 3-izb. byt v meštianskom dome s parkovacím miestom
Popis: Exkluzívne len u nás ponúkam nádherný a štýlový 3-izb. mezonetový byt v meštianskom dome v Seredi pri parku. Byt sa nachádza vo vchode s dvoma bytmi.
Pozostáva zo vstupnej chodby, kuchyne, kúpeľne, obývacej izby so schodami a dvoc ...
179 500 €
Galanta
926 01
926 01
264 x
Označiť zlý inzerát Chybnú kategóriu Ohodnotiť užívateľa Zmazať/Upraviť/Topovať
|ALL PERFECT| Na predaj krásny 2 izbový byt v Seredi - [4.11. 2025]All Perfect Reality ponúka na predaj priestranný 2-izbový byt v úplnom centre Serede, ktorý zaujme svojou výbornou dispozíciou, moderným prevedením a pripravenosťou na okamžité nasťahovanie.
Byt prešiel kompletnou rekonštrukciou, vďaka ktorej ponúka štýlové, čisté a pohodlné bývanie bez nutnosti ďa ...
124 800 €
Galanta
926 01
926 01
537 x
Označiť zlý inzerát Chybnú kategóriu Ohodnotiť užívateľa Zmazať/Upraviť/Topovať
2-izbový byt v Seredi- bez rezervačnej zálohy - [4.11. 2025]SYMFÓNIA REAL Vám ponúka na predaj priestranný 2-izbový byt. Nie je to len byt, ale priestor, ktorý dýcha novým začiatkom.
Na Čepeňskej ulici v Seredi čaká na svojich nových majiteľov byt po kompletnej rekonštrukcii, ktorý kombinuje modernosť a útulnosť.
Byt s plochou 51,44 m² a balkón cca 3 m² ...
127 000 €
Galanta
926 01
926 01
422 x
Označiť zlý inzerát Chybnú kategóriu Ohodnotiť užívateľa Zmazať/Upraviť/Topovať
Obľúbený 3,5-izb.byt v centre mesta Sereď - [3.11. 2025]Realitná kancelária TOP REALITYM MJ ponúka exkluzívne na predaj útulný a dobre riešený 3,5-izbový byt nachádzajúci sa priamo v centre mesta Sereď, ul. Cukrovarská 1/6 posch.
Byt prešiel poctivou rekonštrukciou, ktorá zahŕňala rozvody elektriny, nové podlahy, stierky, úpravu stropov a osadenie bez ...
146 000 €
Galanta
926 01
926 01
243 x
Označiť zlý inzerát Chybnú kategóriu Ohodnotiť užívateľa Zmazať/Upraviť/Topovať
2 izb. byt, 58m2 v centre mesta Sereď na predaj - [30.10. 2025]Ponúkame na predaj svetlý, 2 izbový byt v zateplenom bytovom dome na 4.poschodí/7 vo vyhľadávanej lokalite na ul. D. Štúra v Seredi.
Byt o výmere 58m2 spolu s príslušenstvom má: vstupnú chodbu, spálňu, obývačku, kuchyňu, kúpeľňu s WC.
V byte sú plastové okná s vnútornými žalúziami, plávajúce podla ...
129 000 €
Galanta
926 01
926 01
673 x
Označiť zlý inzerát Chybnú kategóriu Ohodnotiť užívateľa Zmazať/Upraviť/Topovať
Predaj zrekonštruovaný 2 izbový byt v Seredi na ul. A. Hlink - [29.10. 2025]Vo výhradnom zastúpení Vám ponúkame na predaj čiastočne zariadený a zrekonštruovaný 2 izbový byt s balkónom o výmere cca 4,9 m2 v Seredi na ul. A. Hlinku. Podlahová nadštandartná plocha bytu je 63 m2. Dispozične pozostáva: vstupná chodba, kuchyňa, jedna priechodná izba (obývačka), spálňa, kúpelňa, s ...
129 900 €
Galanta
926 01
926 01
883 x
Označiť zlý inzerát Chybnú kategóriu Ohodnotiť užívateľa Zmazať/Upraviť/Topovať
Black Friday Komfortný 4.izbový byt v samom centre mesta Ser - [29.10. 2025]Allrisk Slovakia Vám so súhlasom majiteľa ponúka útulný štvorizbový byt v samom centre mesta Sereď na A. Hlinku.
4. izbový byt sa nachádza na 3/3 a prešiel dôkladnejšou rekonštrukciou.
Boli menené pvc okná, dvere, podlahoviny, steny boli prestierkované a vymenená bola aj elektroištalácia.
Byt má ...
125 990 €
Galanta
926 01
926 01
735 x
Označiť zlý inzerát Chybnú kategóriu Ohodnotiť užívateľa Zmazať/Upraviť/Topovať
Garsónka s parkovacim miestom- rezervovaný - [25.10. 2025]Ponúkame na predaj útulnú garsónku nachádzajúci sa vyhľadávanej časti Seredi. Byt má výmeru 23,64 m2 a predáva sa komplet zariadený takže je pripravený ihneď sa nasťahovať alebo prenajímať.
Súčasťou predaja je aj vonkajšie parkovacie státie vo výmere 12 m2
Byt je pripravený na okamžite nastavovanie ...
99 900 €
Galanta
926 01
926 01
1281 x
Označiť zlý inzerát Chybnú kategóriu Ohodnotiť užívateľa Zmazať/Upraviť/Topovať