Voľný od 15.11. - Zariadený - Balkón - Chrenová
- [7.11. 2025]Zmazať/ Upraviť/ Topovať




















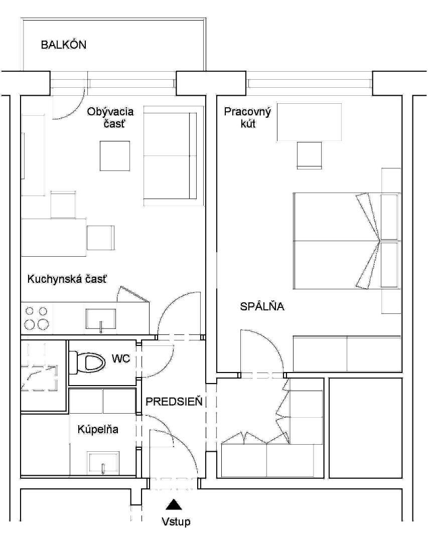
B10 Vám ponúka na prenájom kompletne zariadený a kompletne zrekonštruovaný 2 izbový byt s balkónom na Vihorlatskej ulici- Chrenová.Byt ma rozlohu 48m2 plus priestranný balkón s orientáciou na východ. Ponúka vynikajúcu lokalitu a DISPOZÍCIU (pôdorys v ponuke). Priestranná samostatná spálňa a balkón tvorí jednu z najkomfortnejších dispozícií týchto bytov. Na byte je dostatok úložného priestoru. Okrem zariadenia, ktoré je vidieť na fotkách v byte pribudol v spálni ešte pracovný stôl a stolička vhodná pre človeka, ktorý zvykne pracovať z domu. Rovnako bola zmenená pohovka v obývacej časti.Byt je ideálny ako bývanie pre pár alebo 1 osobu. Lokalita ponúka tiché a veľmi komfortné bývanie vzhľadom k tomu, že všetko, čo treba k pohodlnému bývaniu, budete mať doslova na skok.DISPOZÍCIA: Vstupná chodba, samostatná spálňa, kuchyňa s obývacou časťou, balkón, kúpeľňa s toaletou. Nachádza sa na Vihorlatskej ulici (CHRENOVÁ)- blízko vysoké školy, LIDL, poliklinika, dobré parkovanie, potraviny, MHD, škola a škôlka. Nachádza sa na 7/12 poschodí.Byt je voľný od 15.11.2025. Vratný depozit vo výške 1 mesačného nájmu.V cene nájmu sú energie a média na 1 osobu.V prípade záujmu o obhliadku alebo bližšie informácie ma neváhajte kontaktovať na tel.č. 0949 833 900ID: 133546Cena: 620 €/mesiac Aj váš dom, byt alebo pozemok predáme na počkanie #pocelomslovensku
|
| |||||||||||||||||||||||||||||||
Kontaktovať inzerenta e-mailom
Kontaktovať e-mailom môže iba overený užívateľ.
Overenie je zadarmo.
Vaše telefónne číslo *
Kontaktovať e-mailom môže iba overený užívateľ.
Overenie je zadarmo.
Vaše telefónne číslo *
Podobné inzeráty
Prenajmem krásny 2.5 izbový byt na Chrenovej - [9.11. 2025]Typ: 2-izbový byt
Mestská časť: Chrenová
Obec: Nitra
Realitná kancelária LP reality ponúka na prenájom zaujímavý2, 5 izbový byt na Chrenovej.
Výhodou :
Je jeho lokalita v dosahu do centra mesta aj k nákupným centrám.
Najom 700€
Voľný od 1.1.2026
V prípade záujmu o ...
700 €
Nitra
949 01
949 01
27 x
Označiť zlý inzerát Chybnú kategóriu Ohodnotiť užívateľa Zmazať/Upraviť/Topovať
Prenajmem krásny 2.5 izbový byt na Chrenovej - [9.11. 2025]Typ: 2-izbový byt
Mestská časť: Chrenová
Obec: Nitra
Realitná kancelária LP reality ponúka na prenájom zaujímavý2, 5 izbový byt na Chrenovej.
Výhodou :
Je jeho lokalita v dosahu do centra mesta aj k nákupným centrám.
Najom 700€
Voľný od 1.1.2026
V prípade záujmu o ...
700 €
Nitra
949 01
949 01
32 x
Označiť zlý inzerát Chybnú kategóriu Ohodnotiť užívateľa Zmazať/Upraviť/Topovať
Prenajmem zariadený 3 izbový byt s pozemkom a von. posedením - [9.11. 2025]Prenajmem krásny, úplne zariadený 3 izbový byt po kompletnej rekonštrukcii (62m2).
Pôvodné zostali len drevené parkety v jednej izbe, ktoré sme chceli zachovať.
V byte sú nádherné dubové okná s elektrickým ovládaním žalúzii, dve rolldorove skrine, vybavená kuchyňa, pračka. Na stropoch tatransk ...
600 €
Nitra
949 01
949 01
54 x
Označiť zlý inzerát Chybnú kategóriu Ohodnotiť užívateľa Zmazať/Upraviť/Topovať
2-izbový byt v Nitre na prenájom (malý psík je povolený) - [9.11. 2025]V zastúpení realitného centra MI_REAL, s.r.o. Vám ponúkame na prenájom kompletene zariadený moderný 2- izbový byt v novostavbe v Nitre - Slnečná pláň
ID: 2025456
DISPOZIČNÉ RIEŠENIE:
Byt pozostáva z obývačky spojenou s kuchyňou, spáľne, kúpeľne so sprchovacím kútom a WC, chodby, priestrannej ...
690 €
Nitra
949 01
949 01
25 x
Označiť zlý inzerát Chybnú kategóriu Ohodnotiť užívateľa Zmazať/Upraviť/Topovať
1izbovy byt prenajom - [8.11. 2025]Prenajmem čerstvo zrekonštruovanú ,veľkú a plne zariadenú garzonku na ul.Bazovského ul. v NR. V blízkosti sú OC, poliklinika, MHD. Dom je zateplený, čistý, nové výťahy.
Nájomné je 420eur/mes, vrátane energií, 1 kaucia.
Byt je vhodný pre jednu osobu, nefajčiara, bez domácich zvierat.
420 €
Nitra
949 01
949 01
110 x
Označiť zlý inzerát Chybnú kategóriu Ohodnotiť užívateľa Zmazať/Upraviť/Topovať
Prenajom bytu - [8.11. 2025]Prenajmem čerstvo zrekonštruovanú ,veľkú a plne zariadenú garzonku na Bazovského ul. v NR. V blízkosti sú OC, poliklinika, MHD. Dom je zateplený, čistý, nové výťahy.
Nájomné je 420eur/mes,vrátane energií. plus 1 kaucia.
Byt je vhodný pre jednu osobu, nefajčiara a bez domácich zvierat.
420 €
Nitra
949 01
949 01
114 x
Označiť zlý inzerát Chybnú kategóriu Ohodnotiť užívateľa Zmazať/Upraviť/Topovať
Prenájom veľký 2 izbový byt, terasa, garážové státie, Zobor - [8.11. 2025]Typ: 2-izbový byt
Ulica: Dolnohorská
Mestská časť: Zobor
Obec: Nitra
Realitná kancelária Pavlik&Partners s.r.o. Vám ponúka na prenájom veľký 2 izbový byt s terasou v novostavbe na Zobori- časť Šindolka.
Výmera bytu je 63m2 vrátane kobky, plus 6m2 zasklenená loggia.
Nachád ...
850 €
Nitra
949 01
949 01
56 x
Označiť zlý inzerát Chybnú kategóriu Ohodnotiť užívateľa Zmazať/Upraviť/Topovať
Prenájom 2 izbový byt, veľký balkón, zariadený - [8.11. 2025]Typ: 2-izbový byt
Ulica: Južná
Mestská časť: Čermáň
Obec: Nitra
Realitná kancelária Pavlik&Partners s.r.o. Vám ponúka na prenájom 2 izbový byt na Čermáni na Južnej ulici v bytovke u Martináka.
Výmera bytu je cca 50m2 a nachádza na 3/3 poschodí.
Dispozične byt pozostáva z : vstupná chodba ...
590 €
Nitra
949 01
949 01
113 x
Označiť zlý inzerát Chybnú kategóriu Ohodnotiť užívateľa Zmazať/Upraviť/Topovať
Prenajom-2 izbovy byt na Dunajskej ulici, Klokocina - [8.11. 2025]Dám do prenájmu krásny 2 izbový byt na Klokočine, na Dunajskej ulici. Voľný od 01.12.2025
Spálna, obývačka, samostatné WC, kúpeľna, kuchyňa. Byt je zariadeny komplet nový nábytok, nový gauč, nové skrine, krb a iné doplnky bytu.. Kuchyňa je vybavená novou kuch.linkou s drezom a batériou, novým kuchy ...
600 €
Nitra
949 01
949 01
111 x
Označiť zlý inzerát Chybnú kategóriu Ohodnotiť užívateľa Zmazať/Upraviť/Topovať
Prenájom 2 izbový byt Nitra Južná ul. - [8.11. 2025]Ponúkam na prenájom zariadený 2 izbový byt (50m2 + veľký balkón) v novostavbe na Čermáni.
Nachádza sa na 3/3 poschodí.
Cena prenájmu je 620 €/mesiac vrátane energií, TV a internetu.
620 €
Nitra
949 01
949 01
100 x
Označiť zlý inzerát Chybnú kategóriu Ohodnotiť užívateľa Zmazať/Upraviť/Topovať