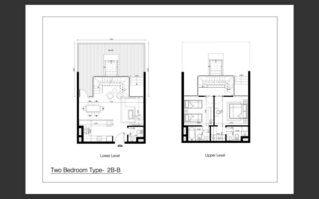
3izbový byt v AL RAHA Lofts 2 - Abu Dhabi (Type 2B-B)
- [7.11. 2025]Zmazať/ Upraviť/ Topovať




























Vybavenie jednotiek
• Kuchynské skrinky a pracovné dosky so vstavanou chladničkou, práčkou a sporákom
• Balkóny podľa plánu jednotky
• Vstavané skrine v spálňach
• Plne obložené kúpeľne, súkromné aj hosťovské toalety
• Sprcha alebo vaňa s držiakom a sprchovacou hlavicou v každej kúpeľni
• Kúpeľňové skrinky a zrkadlá
• Centrálna klimatizácia
• Dvojité zasklenie okien
• Pripojenie na televíziu a telefón
• Hlavná satelitná anténa (SMATV pripojenie)
• Možnosť vysokorýchlostného internetového pripojenia (optické vlákno)
• Mramorové a keramické podlahy
Dodatok k cene: , vrátane provízie, možnosť HÚ
Obytná plocha: 50m²
Celková rozloha: 85m²
Úžitková plocha: 50m²
Odvoz odpadu: áno - separovaný
Plyn: nie
Kúpeľňa: áno
Balkón: áno
Výťah: áno
Parkovanie: áno
Bazén: exteriérový
Klimatizácia: áno
Energetický certifikát: A
Bezbariérový prístup : áno
Okná: plastové
• Kuchynské skrinky a pracovné dosky so vstavanou chladničkou, práčkou a sporákom
• Balkóny podľa plánu jednotky
• Vstavané skrine v spálňach
• Plne obložené kúpeľne, súkromné aj hosťovské toalety
• Sprcha alebo vaňa s držiakom a sprchovacou hlavicou v každej kúpeľni
• Kúpeľňové skrinky a zrkadlá
• Centrálna klimatizácia
• Dvojité zasklenie okien
• Pripojenie na televíziu a telefón
• Hlavná satelitná anténa (SMATV pripojenie)
• Možnosť vysokorýchlostného internetového pripojenia (optické vlákno)
• Mramorové a keramické podlahy
Dodatok k cene: , vrátane provízie, možnosť HÚ
Obytná plocha: 50m²
Celková rozloha: 85m²
Úžitková plocha: 50m²
Odvoz odpadu: áno - separovaný
Plyn: nie
Kúpeľňa: áno
Balkón: áno
Výťah: áno
Parkovanie: áno
Bazén: exteriérový
Klimatizácia: áno
Energetický certifikát: A
Bezbariérový prístup : áno
Okná: plastové
|
| |||||||||||||||||||||||||||||||
Kontaktovať inzerenta e-mailom
Kontaktovať e-mailom môže iba overený užívateľ.
Overenie je zadarmo.
Vaše telefónne číslo *
Kontaktovať e-mailom môže iba overený užívateľ.
Overenie je zadarmo.
Vaše telefónne číslo *







