Na predaj 5-izbový nízkoenergetický rodinný dom v Trenčíne –
- [7.11. 2025]Zmazať/ Upraviť/ Topovať






















DASH reality vám ponúka novostavbu 5-izbového poschodového rodinného domu v novo vybudovanej lokalite v Trenčíne, len pár minút od centra mesta. Dom je súčasťou dvojdomu – každý z domov je samostatný a staticky nezávislý, s vlastným prístupom z asfaltovej verejnej komunikácie s chodníkmi.
Základné informácie:
✅ Celková rozloha pozemku: 376 m²
✅ Úžitková plocha: 131 m² + balkóny a terasa
✅ Prístup: asfaltová komunikácia
✅ Inžinierske siete: elektrina, plyn, voda, kanalizácia
✅ Energetický certifikát: A1 – nízkoenergetický dom
Dispozičné riešenie:
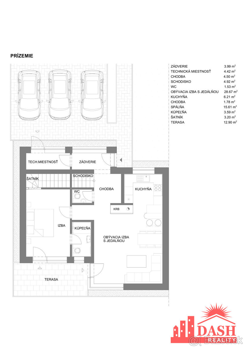
Prízemie:
✨ Zádverie, chodba
✨ Spálňa s výstupom na terasu
✨ Kúpeľňa a samostatné WC
✨ Technická miestnosť
✨ Obývačka s jedálňou – výstup na terasu
✨ Kuchyňa
✨ Schodisko a šatník
Poschodie:
✨ 3 detské izby – z jednej izby výstup na balkón
✨ Kúpeľňa s WC
Špeciálne predprípravy a vybavenie:
✅ Predpríprava na krb, klimatizáciu, alarm a vonkajšie žalúzie
✅ Holodom – dokončené všetky rozvody, podlahové kúrenie, omietky, biela maľovka
✅ Exteriér – fasáda, zateplenie, strecha, plastové okná, spevnené plochy zo zámkovej dlažby, terénne úpravy, oplotenie
✅ Pred domom vydlaždená plocha pre 3 parkovacie miesta
Technické parametre:
✨ Materiál: Porotherm 300 mm + 200 mm zateplenie
✨ Plastové okná s trojsklom
✨ Vykurovanie: teplovodné, podlahové + rebríkový radiátor v kúpeľni
✨ Ohrev vody a vykurovanie: tepelné čerpadlo Vaillant uni tower plus s vnútornou jednotkou a 185 l zásobníkovým ohrievačom
Lokalita:
✨ V blízkosti úplná občianska vybavenosť
✨ Výborná dostupnosť do centra mesta
Cena zahŕňa kompletný servis DASH reality:
✨Vyhotovenie kúpnych zmlúv a návrhu na vklad právnikom
✨ Poplatok na katastri (100 €)
✨Vybavenie financovania s najlepšími podmienkami na trhu – spolupráca so všetkými bankami
✨ Predpokladaný dátum dokončenia: koniec roka 2025
✨ Kontakt pre viac informácií a obhliadku: 0948 014 108
Základné informácie:
✅ Celková rozloha pozemku: 376 m²
✅ Úžitková plocha: 131 m² + balkóny a terasa
✅ Prístup: asfaltová komunikácia
✅ Inžinierske siete: elektrina, plyn, voda, kanalizácia
✅ Energetický certifikát: A1 – nízkoenergetický dom
Dispozičné riešenie:
Prízemie:
✨ Zádverie, chodba
✨ Spálňa s výstupom na terasu
✨ Kúpeľňa a samostatné WC
✨ Technická miestnosť
✨ Obývačka s jedálňou – výstup na terasu
✨ Kuchyňa
✨ Schodisko a šatník
Poschodie:
✨ 3 detské izby – z jednej izby výstup na balkón
✨ Kúpeľňa s WC
Špeciálne predprípravy a vybavenie:
✅ Predpríprava na krb, klimatizáciu, alarm a vonkajšie žalúzie
✅ Holodom – dokončené všetky rozvody, podlahové kúrenie, omietky, biela maľovka
✅ Exteriér – fasáda, zateplenie, strecha, plastové okná, spevnené plochy zo zámkovej dlažby, terénne úpravy, oplotenie
✅ Pred domom vydlaždená plocha pre 3 parkovacie miesta
Technické parametre:
✨ Materiál: Porotherm 300 mm + 200 mm zateplenie
✨ Plastové okná s trojsklom
✨ Vykurovanie: teplovodné, podlahové + rebríkový radiátor v kúpeľni
✨ Ohrev vody a vykurovanie: tepelné čerpadlo Vaillant uni tower plus s vnútornou jednotkou a 185 l zásobníkovým ohrievačom
Lokalita:
✨ V blízkosti úplná občianska vybavenosť
✨ Výborná dostupnosť do centra mesta
Cena zahŕňa kompletný servis DASH reality:
✨Vyhotovenie kúpnych zmlúv a návrhu na vklad právnikom
✨ Poplatok na katastri (100 €)
✨Vybavenie financovania s najlepšími podmienkami na trhu – spolupráca so všetkými bankami
✨ Predpokladaný dátum dokončenia: koniec roka 2025
✨ Kontakt pre viac informácií a obhliadku: 0948 014 108
|
| |||||||||||||||||||||||||||||||
Kontaktovať inzerenta e-mailom
Kontaktovať e-mailom môže iba overený užívateľ.
Overenie je zadarmo.
Vaše telefónne číslo *
Kontaktovať e-mailom môže iba overený užívateľ.
Overenie je zadarmo.
Vaše telefónne číslo *

