INVESTIČNÝ 1izbový byt S BALKÓNOM A NÁJOMCOM - REZIDENCIA HL
- [7.11. 2025]Zmazať/ Upraviť/ Topovať






























REWIN reality Vám EXKLUZÍVNE ponúka INVESTIČNÝ 1-IZBOVÝ BYT S BALKÓNOM A NÁJOMCOM v projekte REZIDENCIA HLINY
CENA PLATÍ PRE ŠTANDARDNÉ VYHOTOVENIE, NIŽŠIE OPIS ŠTANDARDU.
LIMITOVANÁ PONUKA: Využite možnosť zakúpenia bytu s nájomcom. Bez starosti s hľadaním nájomcu, stabilný mesačný príjem z prenájmu od prvého dňa. Informujte sa viac o tejto ponuke u predajcu.
Základné parametre:
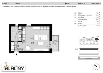
• Výmera bytu: 41,27 m²
• Dispozícia: 1-izbový byt s praktickou dispozíciou
• Balkón: 3,80 m²
• Pivnica: 1,12 m² priamo na poschodí
• Stav: novostavba – projekt REZIDENCIA HLINY, skolaudovaný v roku 2025
• Energetický štandard: A0 – primárna energia
• Byt sa predáva s nájomcom – okamžitý výnos od prvého dňa vlastníctva
• Virtuálna obhliadka, pôdorys a fotogaléria: dostupné na vyžiadanie
Prečo je tento byt ideálny ako investícia?
Už prenajatý – garantovaný výnos bez potreby hľadania nájomcu
Novostavba s nadštandardným technickým riešením:
- predpríprava na klimatizáciu, externé rolety a smart domácnosť
- pasívna rekuperácia na vetranie
- 6-komorové okná s izolačným trojsklom
- bezpečnostné viacbodové dvere
- Komfortné bývanie v projekte s vlastným supermarketom Billa a lekárňou Benu
- Možnosť kúpy v štandarde, holobyte alebo kompletne zariadený cez partnera projektu
Lokalita – Nová Dubnica
Rezidencia Hliny sa nachádza v modernej a rýchlo sa rozvíjajúcej časti mesta Nová Dubnica. Lokalita ponúka kompletnú občiansku vybavenosť – potraviny, reštaurácie, kino, športoviská, kúpalisko aj krytú plaváreň. V blízkosti sú tiež obchodné reťazce LIDL, Coop Jednota, Tesco či známa zmrzlina Velice.
Výborná dopravná dostupnosť:
- pešia dostupnosť do centra Novej Dubnice
- 5 min. napojenie na diaľnicu D1
- 15 min. do Trenčína, 5 min. do Dubnice nad Váhom
V prípade záujmu o viac informácií alebo obhliadku ma neváhajte kontaktovať aj počas víkendov na tel.č.: 0914 345 313
Cena: od 114.980 € s DPH
Aj vďaka našej novej službe dokážete kúpiť novú nehnuteľnosť skôr, ako predáte tú svoju. Zistite viac informácií u makléra.
Obytná plocha: 41.27m²
Úžitková plocha: 41.27m²
Stav: úplne prerobený
Postavené z: tehla
Energetický certifikát: A
CENA PLATÍ PRE ŠTANDARDNÉ VYHOTOVENIE, NIŽŠIE OPIS ŠTANDARDU.
LIMITOVANÁ PONUKA: Využite možnosť zakúpenia bytu s nájomcom. Bez starosti s hľadaním nájomcu, stabilný mesačný príjem z prenájmu od prvého dňa. Informujte sa viac o tejto ponuke u predajcu.
Základné parametre:
• Výmera bytu: 41,27 m²
• Dispozícia: 1-izbový byt s praktickou dispozíciou
• Balkón: 3,80 m²
• Pivnica: 1,12 m² priamo na poschodí
• Stav: novostavba – projekt REZIDENCIA HLINY, skolaudovaný v roku 2025
• Energetický štandard: A0 – primárna energia
• Byt sa predáva s nájomcom – okamžitý výnos od prvého dňa vlastníctva
• Virtuálna obhliadka, pôdorys a fotogaléria: dostupné na vyžiadanie
Prečo je tento byt ideálny ako investícia?
Už prenajatý – garantovaný výnos bez potreby hľadania nájomcu
Novostavba s nadštandardným technickým riešením:
- predpríprava na klimatizáciu, externé rolety a smart domácnosť
- pasívna rekuperácia na vetranie
- 6-komorové okná s izolačným trojsklom
- bezpečnostné viacbodové dvere
- Komfortné bývanie v projekte s vlastným supermarketom Billa a lekárňou Benu
- Možnosť kúpy v štandarde, holobyte alebo kompletne zariadený cez partnera projektu
Lokalita – Nová Dubnica
Rezidencia Hliny sa nachádza v modernej a rýchlo sa rozvíjajúcej časti mesta Nová Dubnica. Lokalita ponúka kompletnú občiansku vybavenosť – potraviny, reštaurácie, kino, športoviská, kúpalisko aj krytú plaváreň. V blízkosti sú tiež obchodné reťazce LIDL, Coop Jednota, Tesco či známa zmrzlina Velice.
Výborná dopravná dostupnosť:
- pešia dostupnosť do centra Novej Dubnice
- 5 min. napojenie na diaľnicu D1
- 15 min. do Trenčína, 5 min. do Dubnice nad Váhom
V prípade záujmu o viac informácií alebo obhliadku ma neváhajte kontaktovať aj počas víkendov na tel.č.: 0914 345 313
Cena: od 114.980 € s DPH
Aj vďaka našej novej službe dokážete kúpiť novú nehnuteľnosť skôr, ako predáte tú svoju. Zistite viac informácií u makléra.
Obytná plocha: 41.27m²
Úžitková plocha: 41.27m²
Stav: úplne prerobený
Postavené z: tehla
Energetický certifikát: A
|
| |||||||||||||||||||||||||||||||
Kontaktovať inzerenta e-mailom
Kontaktovať e-mailom môže iba overený užívateľ.
Overenie je zadarmo.
Vaše telefónne číslo *
Kontaktovať e-mailom môže iba overený užívateľ.
Overenie je zadarmo.
Vaše telefónne číslo *
Podobné inzeráty
V ŠTANDARDE - 4izb. BYT + TERASA - 120m2 a viac - REZIDENCIA - [7.11. 2025]REWIN reality Vám EXKLUZÍVNE ponúka VEĽKORYSÝ 4 izbový BYT s LOGGIOU a BALKÓNOM o výmere 118,49 m2 v práve dokončenej a SKOLAUDOVANEJ novostavbe REZIDENCIA HLINY v Novej Dubnici. Prevádzky Billa supermarket & Benu lekáreň sú už spustené.
CENA PLATÍ PRE ŠTANDARDNÉ VYHOTOVENIE, NIŽŠIE OPIS ŠTANDARD ...
Dohodou
Ilava
018 51
018 51
31 x
Označiť zlý inzerát Chybnú kategóriu Ohodnotiť užívateľa Zmazať/Upraviť/Topovať
V ŠTANDARDE - 3 izb. BYT + loggia - 72,62 m2 - REZIDENCIA HL - [7.11. 2025]REWIN reality Vám EXKLUZÍVNE ponúka VEĽKORYSÝ 3 izbový BYT s LOGGIOU o výmere 72,62 m2 v práve dokončenej a SKOLAUDOVANEJ novostavbe REZIDENCIA HLINY v Novej Dubnici. Prevádzky Billa supermarket & Benu lekáreň sú už spustené.
CENA PLATÍ PRE ŠTANDARDNÉ VYHOTOVENIE, NIŽŠIE OPIS ŠTANDARDU.
Zákla ...
189 980 €
Ilava
018 51
018 51
41 x
Označiť zlý inzerát Chybnú kategóriu Ohodnotiť užívateľa Zmazať/Upraviť/Topovať
V ŠTANDARDE - 1i. BYT s balkónom - 41,27 m2 - REZIDENCIA HLI - [7.11. 2025]REWIN reality Vám EXKLUZÍVNE ponúka VEĽKORYSÝ 1 izbový BYT s BALKÓNOM o výmere 41,27 m2 v práve dokončenej a SKOLAUDOVANEJ novostavbe REZIDENCIA HLINY v Novej Dubnici. Prevádzky Billa supermarket & Benu lekáreň sú už spustené.
CENA PLATÍ PRE ŠTANDARDNÉ VYHOTOVENIE, NIŽŠIE OPIS ŠTANDARDU.
Zákl ...
114 980 €
Ilava
018 51
018 51
25 x
Označiť zlý inzerát Chybnú kategóriu Ohodnotiť užívateľa Zmazať/Upraviť/Topovať
V ŠTANDARDE - 2izb. BYT + loggia 50,37 m2 a viac - REZIDENCI - [7.11. 2025]REWIN reality Vám EXKLUZÍVNE ponúka VEĽKORYSÝ 2 izbový BYT s LOGGIOU o výmere 50,37 m2 v práve dokončenej a SKOLAUDOVANEJ novostavbe REZIDENCIA HLINY v Novej Dubnici. Prevádzky Billa supermarket & Benu lekáreň sú už spustené.
CENA PLATÍ PRE ŠTANDARDNÉ VYHOTOVENIE, NIŽŠIE OPIS ŠTANDARDU.
Zákla ...
135 788 €
Ilava
018 51
018 51
27 x
Označiť zlý inzerát Chybnú kategóriu Ohodnotiť užívateľa Zmazať/Upraviť/Topovať
NA PREDAJ PEKNÝ 3-IZBOVÝ BYT V NOVEJ DUBNICI S VÝMEROU 68 M2 - [7.11. 2025]TUreality Vám ponúka na predaj kompletne prerobený 3-izbový byt na ul. SNP v Novej Dubnici. VÝHODY NEHNUTEĽNOSTI + kompletná rekonštrukcia + výborná dispozícia + čiastočne zariadený. Úžitková plocha je 68 m2, 6/8 poschodie, lodžia, pivnica výťah. VYBAVENIE BYTU- nová kuchynská linka so spotrebičmi, ...
129 990 €
Ilava
018 51
018 51
64 x
Označiť zlý inzerát Chybnú kategóriu Ohodnotiť užívateľa Zmazať/Upraviť/Topovať
2 izbový byt prerobený na 3 izbový - [5.11. 2025]EXKLUZÍVNE - NA PREDAJ - 2 izbový byt prerobený na 3 izbový - Nová Dubnica
Ponúkame vám na predaj byt nachádzajúci sa na ulici SNP v 8 - poschodovom bytovom dome na 7.poschodí (7/8)
Byt prešiel v minulosti rekonštrukciou v rozsahu - nové elektrické rozvody, murované jadro, EURO okná, plávajúce p ...
118 000 €
Ilava
018 51
018 51
578 x
Označiť zlý inzerát Chybnú kategóriu Ohodnotiť užívateľa Zmazať/Upraviť/Topovať
NA PREDAJ 2-IZ.BYT V NDCA 2X BALKÓN S VÝMEROU 59M2 +... - [5.11. 2025]Tureality ponúka exkluzívný predaj 2-izbového bytu v Novej Dubnici na ulici SNP, s výmerou 59 m2, na 2/8 poschodí s 2X presklenými balkónmi a s pivnicou. Bytový dom je celý po kompletnej peknej prerábke - od strechy až po pivničné priestranstvá, s novou strechou, nový obojstranný výťah, el. vrátnik ...
100 000 €
Ilava
018 51
018 51
405 x
Označiť zlý inzerát Chybnú kategóriu Ohodnotiť užívateľa Zmazať/Upraviť/Topovať
Predám 3-izbový byt v Novej Dubnici - [5.11. 2025]Predám 3 izb. byt v Novej Dubnici o rozlohe 74m2. Byt je v pôvodnom stave, v troch izbách sú vymenené plastové okná. V byte je samostatná komora a šatník. Byt sa nachádza na 3.NP, je slnečný, orientovaný na JZ. Bytový dom je zrekonštruovaný, zateplený, kompletne zrekonštruované stúpačky, s novým výť ...
139 000 €
Ilava
018 51
018 51
95 x
Označiť zlý inzerát Chybnú kategóriu Ohodnotiť užívateľa Zmazať/Upraviť/Topovať
Veľký 3 izbový byt | 81 m2 | Nová Dubnica, P.O. Hviezdoslava - TOP - [8.11. 2025]Na predaj veľký podkrovný 3 izbový byt o výmere 81 m2 v meste Nová Dubnica vo vyhľadávanej lokalite blízko centra mesta na ulici P. O. Hviezdoslava. Byt je umiestnený na 5. poschodí tehlového bytového domu, v tichej príjemnej lokalite plnej zelene.
Byt je priestranný, s výmerou až 81 m2. ...
115 000 €
Ilava
018 51
018 51
445 x
Označiť zlý inzerát Chybnú kategóriu Ohodnotiť užívateľa Zmazať/Upraviť/Topovať
Znova dostupné - Čerstvá rekonštrukcia - 3i byt 65 m2 - Nová - TOP - [8.11. 2025]AM LIVING realitná kancelária Vám ponúka na predaj výnimočnú ponuku kompletne prerobeného 3 izbového bytu s výmerou 65 m². Byt sa nachádza na 6.poschodí vo vynikajúcej lokalite a ponúka krásne výhľady na široké okolie. K bytu prislúcha aj pivnica a čoskoro bude dorobený aj balkón!
Technický stav ...
144 900 €
Ilava
018 51
018 51
602 x
Označiť zlý inzerát Chybnú kategóriu Ohodnotiť užívateľa Zmazať/Upraviť/Topovať









