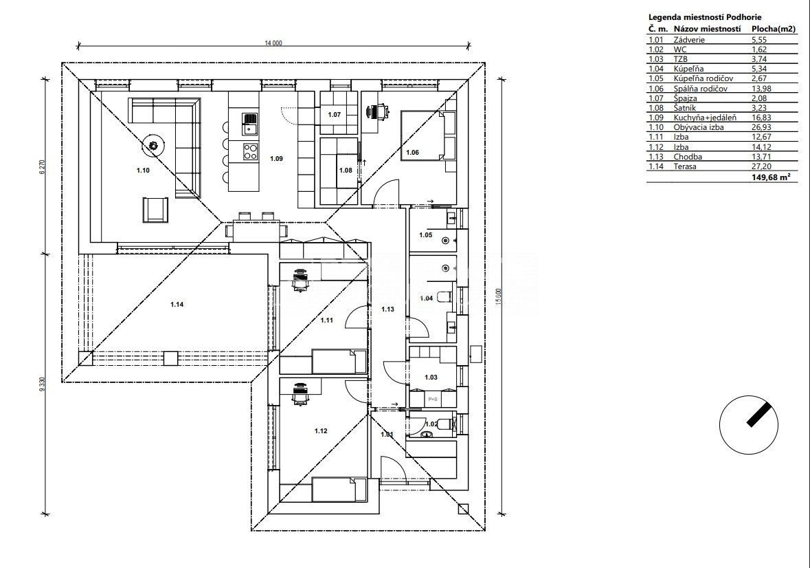
4IZ BUNGALOV 149 m2 NA SLNEČNOM POZEMKU - 184 900.-€
- [7.11. 2025]Zmazať/ Upraviť/ Topovať
















Realitná kancelária REG4U Vám vo výhradnom zastúpení ponúka na PREDAJ NOVOSTAVBY RODINNÝCH DOMOV v obci BELUŠA, časť Podhorie, okres Púchov.V ponuke sú dva výnimočné rodinné domy - 4 izbové bungalovy s modernou, funkčnou vnútornou dispozíciou, ktoré budú postavené na rovinatých, slnečných pozemkoch v tichej, súkromnej ulici.
Zahájenie výstavby bude naplánované podľa požiadaviek budúceho vlastníka, čo mu umožňuje realizovať ešte drobné zmeny a úpravy v projekte podľa svojich predstáv.
RD 1: rozloha pozemku 600 m2
RD 2: rozloha pozemku 600 m2
Video obhliadka tu: https://youtu.be/t4IYtX0-OKU
Cena domu vrátane pozemku v prevedení Velox:
HRUBÁ STAVBA: 184 900,- €
HOLODOM: 268.800,- € vrátane pripojenia na IS
HOLODOM:
okenný a dverný systém Gealan 9000 s profi montážou na pásky (plastové trojsklo 6 komorové 84 mm)
siete: elektroinštalácia (Legrand Valena Life) vrátene bleskozvodu, rozvodová poistná skrinka, príprava pre dátové napojenie stavby - wifi
vodovodné a kanalizačné rozvody - plastohliník, omietky, hydroizolácia a tepelná izolácia podlahy, poter
povrchová silikónová fasádna úprava vrátane zateplenia EPS 200 mm
stropný SDK systém, stropná izolácia 400 mm
podkrovný úložný priestor, stropný výlez
podlahové vykurovanie s tepelnou reguláciou každej miestnosti zvlášť alebo tepelné čerpadlo (za príplatok)
ohrev teplej vody TUV
povrchová úprava interiéru - maľovanie
napojenie na IS: elektrika, voda z obecného vodovodu a kanalizácia žumpou 12 m3 (do 2 rokov je naplánovaná výstavba kanalizácie)
uvedenie stavby do prevádzky
NA KĽÚČ V PREVEDENÍ ŠTANDARD: kontaktujte prosím RK
S financovaním kúpy pozemku a postupnou výstavbou domu cez hypotéku Vám radi pomôžeme.
Call centrum: 0911 175 510
Zahájenie výstavby bude naplánované podľa požiadaviek budúceho vlastníka, čo mu umožňuje realizovať ešte drobné zmeny a úpravy v projekte podľa svojich predstáv.
RD 1: rozloha pozemku 600 m2
RD 2: rozloha pozemku 600 m2
Video obhliadka tu: https://youtu.be/t4IYtX0-OKU
Cena domu vrátane pozemku v prevedení Velox:
HRUBÁ STAVBA: 184 900,- €
HOLODOM: 268.800,- € vrátane pripojenia na IS
HOLODOM:
okenný a dverný systém Gealan 9000 s profi montážou na pásky (plastové trojsklo 6 komorové 84 mm)
siete: elektroinštalácia (Legrand Valena Life) vrátene bleskozvodu, rozvodová poistná skrinka, príprava pre dátové napojenie stavby - wifi
vodovodné a kanalizačné rozvody - plastohliník, omietky, hydroizolácia a tepelná izolácia podlahy, poter
povrchová silikónová fasádna úprava vrátane zateplenia EPS 200 mm
stropný SDK systém, stropná izolácia 400 mm
podkrovný úložný priestor, stropný výlez
podlahové vykurovanie s tepelnou reguláciou každej miestnosti zvlášť alebo tepelné čerpadlo (za príplatok)
ohrev teplej vody TUV
povrchová úprava interiéru - maľovanie
napojenie na IS: elektrika, voda z obecného vodovodu a kanalizácia žumpou 12 m3 (do 2 rokov je naplánovaná výstavba kanalizácie)
uvedenie stavby do prevádzky
NA KĽÚČ V PREVEDENÍ ŠTANDARD: kontaktujte prosím RK
S financovaním kúpy pozemku a postupnou výstavbou domu cez hypotéku Vám radi pomôžeme.
Call centrum: 0911 175 510
|
| |||||||||||||||||||||||||||||||
Kontaktovať inzerenta e-mailom
Kontaktovať e-mailom môže iba overený užívateľ.
Overenie je zadarmo.
Vaše telefónne číslo *
Kontaktovať e-mailom môže iba overený užívateľ.
Overenie je zadarmo.
Vaše telefónne číslo *
Podobné inzeráty
Útulný rodinný dom s upravenou záhradou: 4-izbový bunga - [7.11. 2025]EXKLUZÍVNE! PREČO PRÁVE TENTO DOM?
Kombinácia 100 m² zastavanej plochy + 81 m² hospodárskych budov + 655 m² upravenej záhrady s bazénom. Kompletne zariadený domov pripravený na okamžité nasťahovanie.
BONUS: letná kuchyňa, podpivničený sklad a prístrešok na parkovanie. Stačí Vám len prevziať si kľú ...
299 000 €
Púchov
018 61
018 61
1252 x
Označiť zlý inzerát Chybnú kategóriu Ohodnotiť užívateľa Zmazať/Upraviť/Topovať
ZNÍŽENÁ CENA Dom v Beluši - TOP - [11.11. 2025]LUHOVA reality Vám výhradne ponúka na predaj starší rodinný dom, ktorý sa nachádza na ulici Dr. Clementisa v obci Beluša na pozemku o výmere 494m2.
Čo by Vás mohlo zaujímať:
Znížili sme cenu nehnuteľnosti z pôvodnej ceny 114.000,- EUR na aktuálnych 99.000,- EUR. Pri rýchlom jednaní možná ešte d ...
99 000 €
Púchov
018 61
018 61
853 x
Označiť zlý inzerát Chybnú kategóriu Ohodnotiť užívateľa Zmazať/Upraviť/Topovať
Rodinný dom s krásnou záhradou - [4.11. 2025]LUHOVA reality Vám výhradne ponúka na predaj priestranný rodinný dom s úžitkovou výmerou cca 200m2 na Trenčianskej ulici v Beluši vzdialenej len 7 km od mesta Púchov. Obec Beluša je pre svoju občiansku vybavenosť, perfektnú dostupnosť do mesta a taktiež výborný a rýchly prístup na diaľničný privádza ...
250 000 €
Púchov
018 61
018 61
292 x
Označiť zlý inzerát Chybnú kategóriu Ohodnotiť užívateľa Zmazať/Upraviť/Topovať
RADO | Dom v krásnom prostredí - cena DOHODOU | Belušské Sla - [3.11. 2025]CENA DOHODOU - Ponúkame Vám rekreačný dom s celoročným bývaním so súpisným číslom v prekrásnom slnečnom prostredí extravilánu Belušských Slatín, postavený a užívaný jediným majiteľom ,ktorý je veľmi starostlivý a pedantný. Dom sa predáva zariadený. Možnosť 3D virtuálnej prehliadky domu, najlepšie vš ...
Dohodou
Púchov
018 61
018 61
395 x
Označiť zlý inzerát Chybnú kategóriu Ohodnotiť užívateľa Zmazať/Upraviť/Topovať
DRAŽBA-RD súp.č. 137 a pozemky v obci Visolaje, okres Púchov - [20.10. 2025]Rodinný dom č.s.137 na parc. KN č.20/2 k.ú. Visolaje, obec Visolaje, okres Púchov
Predmetom ohodnotenia je rodinný dom č.s.137 na parc. KN č.20/2 k.ú. Visolaje, obec Visolaje, okres Púchov, v rámci zastavaného územia obce, na okraji centrálnej časti, osadený v rámci uličnej zástavby rodinných domo ...
206 000 €
Púchov
018 61
018 61
630 x
Označiť zlý inzerát Chybnú kategóriu Ohodnotiť užívateľa Zmazať/Upraviť/Topovať
REZERVOVANÉ - RODINNÝ DOM S VEĽKÝM POZEMKOM V OBCI BELUŠA - [17.10. 2025]REZERVOVANÉ.
Jozef Sedliak z Realitnej kancelárie JODES Vám exkluzívne ponúka na predaj rodinný dom v tichej lokalite obce Beluša – časť Belušské Slatiny, v krásnom prírodnom prostredí priamo pod lesom.
Táto nehnuteľnosť ponúka ideálne spojenie súkromia, pokoja a pohodlného prístupu do miest P ...
104 900 €
Púchov
018 61
018 61
2164 x
Označiť zlý inzerát Chybnú kategóriu Ohodnotiť užívateľa Zmazať/Upraviť/Topovať
Predaj, Dom/Rodinný dom (RE01021352) - [16.10. 2025]Ponúkame na predaj viac-generačný rodinný dom v peknom prostredí Belušských Slatín, vhodný aj na podnikanie. Pozostáva z troch samostatných bytových jednotiek. Stavba je murovaná s plochou strechou, má tri nadzemné podlažia. Nehnuteľnosť bola kolaudovaná v roku 1987 a postupne prešla čiastočnou reko ...
V texte
Púchov
018 61
018 61
425 x
Označiť zlý inzerát Chybnú kategóriu Ohodnotiť užívateľa Zmazať/Upraviť/Topovať
Na predaj poschodový 5-izbový rodinný dom v obci Beluša - TOP - [20.10. 2025]Typ: Rodinný dom
Ulica: -
Obec: Beluša
Moderný maklér ponúka na predaj priestranný, kompletne zrekonštruovaný 5‑izbový rodinný dom na troch podlažiach v obci Beluša. Dom je orientovaný juhovýchodne, presvetlený po celý deň. K nehnuteľnosti patrí rovinatý pozemok so súkromím a skvelým poten ...
211 000 €
Púchov
018 61
018 61
1169 x
Označiť zlý inzerát Chybnú kategóriu Ohodnotiť užívateľa Zmazať/Upraviť/Topovať
Predaj, Dom/Rodinný dom (RE01021506) - [11.10. 2025]Investičná príležitosť! Nehnuteľnosť s dvomi samostatnými bytovými jednotkami vhodná na bývanie aj podnikanie! Hľadáte veľký dom s rozsiahlym, udržiavaným pozemkom vo vyhľadávanej obci, na skok do Púchova, s dobrou dostupnosťou na D1? Hľadáte sídlo pre svoju firmu s možnosťou bývania?
Na okraji ob ...
V texte
Púchov
018 61
018 61
932 x
Označiť zlý inzerát Chybnú kategóriu Ohodnotiť užívateľa Zmazať/Upraviť/Topovať
Rodinný dom - [11.10. 2025]Dobrý deň hľadáme starší rodinný dom najlepšie obývateľný ideálne polosamota alebo na konci ulice z väčším pozemkom niečo kde sa da chovat dobytok najlepšie okolie Puchova (Beluša Lúky Lazy Lysa Košeca)do 110000
110 000 €
Púchov
018 61
018 61
1058 x
Označiť zlý inzerát Chybnú kategóriu Ohodnotiť užívateľa Zmazať/Upraviť/Topovať