2-PODLAŽNÝ DOM S POZEMKOM V PEKNOM PROSTREDÍ
- [7.11. 2025]Zmazať/ Upraviť/ Topovať





















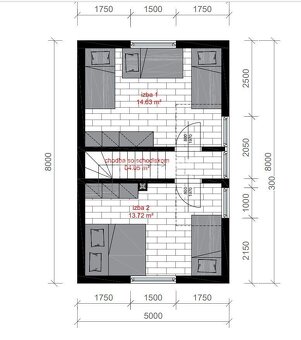
Realitná kancelária REG4U Vám ponúka na PREDAJ novostavby dvojpodlažných rekreačných domov v tichej, rezidenčnej lokalite - osada JELENIA LÚKA v obci Streženice, okres Púchov. V súkromnom, oplotenom, rozľahlom, rekreačnom areáli, výstavba ktorého už prebieha sa bude nachádzať 7 domov, ktoré svojím nadštandardným vyhotovením a umiestnením v sebe spájajú možnosti rekreácie, chalupárčenia aj záhradkárčenia s možnosťou celoročného bývania.
Video obhliadka tu: https://youtu.be/tYNX8mImjME
Rekreačné domy sú umiestnené na menších rovinatých pozemkoch o výmere:
RD 1: rozloha pozemku 367 m2 - PREDANÝ
RD 2: rozloha pozemku 367 m2 - VYHOTOVENÁ HRUBÁ STAVBA
RD 3: rozloha pozemku 368 m2 - VYHOTOVENÁ ZÁKLADOVÁ DOSKA
RD 4: rozloha pozemku 368 m2
RD 5: rozloha pozemku 369 m2
RD 6: rozloha pozemku 367 m2
RD 7: rozloha pozemku 348 m2
HRUBÁ STAVBA OBSAHUJE:
vytýčenie geodetom
založenie stavby – základy vrátane výstuže, ležatej kanalizácie, uzemnenia stavby, hydroizolácie
prípojky vody, elektriky a internetu privedené k pozemku
murivo – obvodové nosné murivo - tvárnice YTONG
nenosné murivo – tvárnice YTONG, preklady, vencový systém, stropná doska železobetónová
strecha – drevený tesársky krov, krytina lakoplastový falcovaný plech, klampiarske prvky
HRUBÚ STAVBU JE MOŽNÉ PO DOHODE DOKONČIŤ DO ŠTÁDIA HOLODOMU.
Cena novostavby RD vrátane pozemku a prístupovej cesty:
HRUBÁ STAVBA: 139 900,- €
HOLODOM: 169 900,- €
VÝHODY PONUKY:
rovinatý, slnečný pozemok s výhľadmi na okolitú prírodu
podiel na spoločnej prístupovej ceste
útulný, presvetlený obytný priestor s výbornou dispozíciou
príjemná, romantická klíma zabezpečená zdravým, sálavým teplom z krbu
z obývacej izby výstup na terasu
napojenie na obecný vodovod
parkovacie miesto pre 2 autá ku každému domčeku
zabezpečená aj parkovacia politika pre návštevy rezidentov - externé parkovacie miesta v areáli
oplotený pozemok rezidencie so vstupnou hlavnou bránou
Call centrum: 0911 175 510
Video obhliadka tu: https://youtu.be/tYNX8mImjME
Rekreačné domy sú umiestnené na menších rovinatých pozemkoch o výmere:
RD 1: rozloha pozemku 367 m2 - PREDANÝ
RD 2: rozloha pozemku 367 m2 - VYHOTOVENÁ HRUBÁ STAVBA
RD 3: rozloha pozemku 368 m2 - VYHOTOVENÁ ZÁKLADOVÁ DOSKA
RD 4: rozloha pozemku 368 m2
RD 5: rozloha pozemku 369 m2
RD 6: rozloha pozemku 367 m2
RD 7: rozloha pozemku 348 m2
HRUBÁ STAVBA OBSAHUJE:
vytýčenie geodetom
založenie stavby – základy vrátane výstuže, ležatej kanalizácie, uzemnenia stavby, hydroizolácie
prípojky vody, elektriky a internetu privedené k pozemku
murivo – obvodové nosné murivo - tvárnice YTONG
nenosné murivo – tvárnice YTONG, preklady, vencový systém, stropná doska železobetónová
strecha – drevený tesársky krov, krytina lakoplastový falcovaný plech, klampiarske prvky
HRUBÚ STAVBU JE MOŽNÉ PO DOHODE DOKONČIŤ DO ŠTÁDIA HOLODOMU.
Cena novostavby RD vrátane pozemku a prístupovej cesty:
HRUBÁ STAVBA: 139 900,- €
HOLODOM: 169 900,- €
VÝHODY PONUKY:
rovinatý, slnečný pozemok s výhľadmi na okolitú prírodu
podiel na spoločnej prístupovej ceste
útulný, presvetlený obytný priestor s výbornou dispozíciou
príjemná, romantická klíma zabezpečená zdravým, sálavým teplom z krbu
z obývacej izby výstup na terasu
napojenie na obecný vodovod
parkovacie miesto pre 2 autá ku každému domčeku
zabezpečená aj parkovacia politika pre návštevy rezidentov - externé parkovacie miesta v areáli
oplotený pozemok rezidencie so vstupnou hlavnou bránou
Call centrum: 0911 175 510
|
| |||||||||||||||||||||||||||||||
Kontaktovať inzerenta e-mailom
Kontaktovať e-mailom môže iba overený užívateľ.
Overenie je zadarmo.
Vaše telefónne číslo *
Kontaktovať e-mailom môže iba overený užívateľ.
Overenie je zadarmo.
Vaše telefónne číslo *
Podobné inzeráty
Murovaný rodinný dom v pokojnej časti Púchova na predaj - [8.11. 2025]Murovaný rodinný dom v pôvodnom, obývateľnom stave, ktorý je vhodný aj na postupnú rekonštrukciu, sa nachádza v pokojnej, okrajovej časti mesta Púchov, na ulici so zástavbou rodinných domov. Súčasťou veľkého pozemku je predzáhradka a záhrada s viničom a rôznymi druhmi ovocných stromov.
Dom s ob ...
208 000 €
Púchov
020 01
020 01
281 x
Označiť zlý inzerát Chybnú kategóriu Ohodnotiť užívateľa Zmazať/Upraviť/Topovať
JEDINEČNÁ PONUKA Dom vo veľmi žiadanej lokalite - TOP - [11.11. 2025]LUHOVA reality Vám výhradne ponúka na predaj rodinný dom nachádzajúci sa v mimoriadne vyhľadávanej lokalite mestskej časti mesta Púchov – Staré Nosice. Dom so zastavanou plochou 123m2 sa nachádza na slnečnom a rovinatom pozemku o výmere 1143m2.
Bývať v tejto lokalite je snom veľa ľudí. Zriedkavo ...
Dohodou
Púchov
020 01
020 01
247 x
Označiť zlý inzerát Chybnú kategóriu Ohodnotiť užívateľa Zmazať/Upraviť/Topovať
PREDAJ: BÝVANIE V LONE PRÍRODY - [7.11. 2025]Realitná kancelária REG4U Vám ponúka na PREDAJ novostavby dvojpodlažných rekreačných domov v tichej, rezidenčnej lokalite - osada JELENIA LÚKA v obci Streženice, okres Púchov. V súkromnom, oplotenom, rozľahlom, rekreačnom areáli, výstavba ktorého už prebieha sa bude nachádzať 7 domov, ktoré svojím n ...
169 900 €
Púchov
020 01
020 01
186 x
Označiť zlý inzerát Chybnú kategóriu Ohodnotiť užívateľa Zmazať/Upraviť/Topovať
Rodinný dom v centre mesta Púchov - [7.11. 2025]Ponúkame Vám na predaj VÝNIMOČNÚ NEHNUTEĽNOSŤ - rodinný dom, v ktorom sa nachádza samostatný podkrovný 3 izbový byt, samostatný 4 izbový byt s terasou a dva nebytové priestory, ktoré sú dostupné priamo z ulice.
Nehnuteľnosť ma veľmi výhodnú polohu - nachádza sa v širšom centre mesta Púchov, na križ ...
V texte
Púchov
020 01
020 01
315 x
Označiť zlý inzerát Chybnú kategóriu Ohodnotiť užívateľa Zmazať/Upraviť/Topovať
Predaj Rodinný dom - Púchov, Novonosická (N066-12-DASEa) - [7.11. 2025]Typ: Rodinný dom
Ulica: Novonosická
Obec: Púchov
(N066-12-DASEa) Ponúkame vám na predaj murovaný rodinný dom v pôvodnom stave, vhodný na rekonštrukciu podľa vlastných predstáv. Dom sa nachádza v tichej lokalite s výbornou dostupnosťou na diaľnicu Púchov – Beluša.
Pozemok a dispozícia: Ce ...
216 000 €
Púchov
020 01
020 01
179 x
Označiť zlý inzerát Chybnú kategóriu Ohodnotiť užívateľa Zmazať/Upraviť/Topovať
NOVOSTAVBY RODINNÝCH DOMOV- V OBCI LÚKY - [5.11. 2025]📌NOVÁ LOKALITA VO VÝSTAVBE 📌
⚡Chcete bývanie v rodinnom domčeku?⚡
⚡Ponúkame Vám novostavby rodinných domov vrátane pozemku⚡
🏡Výhody:🏡
👉 vybavené stavebné povolenie
👉 u nás si môžete vybrať lokalitu na bývanie (Lúky, Beluša- Hloža- časť Podhorie, Vieska) alebo Vám postavíme domček na Vašom ...
Dohodou
Púchov
020 01
020 01
417 x
Označiť zlý inzerát Chybnú kategóriu Ohodnotiť užívateľa Zmazať/Upraviť/Topovať
Exkluzívne 5-izbový Rodinný Dom - HORNÉ KOČKOVCE / Púchov - [5.11. 2025]Exkluzívne Ponúkame na predaj čiastočne zrekonštruovaný - plne obývateľný rodinný dom v časti Horné Kočkovce - Púchov.
-Zastavaná plocha cca 110 m2
-2 poschodia s úžitkovou plochou cca 200 m2 + 37 m2 pivnica
v prízemí slúžiaca ako sklad a kotolňa
-Obytné prvé poschodie slúžiace ako samostatná ...
207 900 €
Púchov
020 01
020 01
146 x
Označiť zlý inzerát Chybnú kategóriu Ohodnotiť užívateľa Zmazať/Upraviť/Topovať
Predám rodinný dom v Púchove - [5.11. 2025]Predám murovaný rodinný dom v Púchove-časť Novonosicka ul. v pôvodnom stave, bez zateplenia, na pozemku 1028 m2, z roku 1970.Dom ma vykurovanie plynom,taktieš na tuhe palivo , elektrina, mestská voda, kanalizácia.
Celý dom a časť pozemku podpivničená. Prvé nadzemné podlažie sa skladá: vstupná cho ...
209 000 €
Púchov
020 01
020 01
420 x
Označiť zlý inzerát Chybnú kategóriu Ohodnotiť užívateľa Zmazať/Upraviť/Topovať
Rodinný dom v mestskej časti Púchov – Horné Kočkovce - TOP - [11.11. 2025]LUHOVA reality Vám výhradne ponúka na predaj rodinný dom, ktorý je súčasťou dvojdomu a nachádza sa v mestskej časti mesta Púchov Horné Kočkovce.
Dom stojí na pozemku s rozlohou 414 m² a ponúka príjemné bývanie s možnosťou rekonštrukcie podľa vlastných predstáv.
Dispozícia domu:
Vstupná veranda ...
140 000 €
Púchov
020 01
020 01
515 x
Označiť zlý inzerát Chybnú kategóriu Ohodnotiť užívateľa Zmazať/Upraviť/Topovať
Rodinný dom na rekonštrukciu v obľúbenej lokalite Dolné Kočk - TOP - [11.11. 2025]LUHOVA reality Vám výhradne ponúka na predaj rodinný dom v tichej a vyhľadávanej lokalite Dolné Kočkovce na ulici J. Palárika, len pár minút od mesta Púchova. Dom sa nachádza mimo hlavnej cesty v tichej ulici, na slnečnom a rovinatom pozemku s rozlohou 685 m².
Stav nehnuteľnosti:
Dom z roku 1974 ...
149 800 €
Púchov
020 01
020 01
609 x
Označiť zlý inzerát Chybnú kategóriu Ohodnotiť užívateľa Zmazať/Upraviť/Topovať
