NA PREDAJ 5-izbová NOVOSTAVBA V MALOM KIARI
- TOP - [9.11. 2025]Zmazať/ Upraviť/ Topovať

























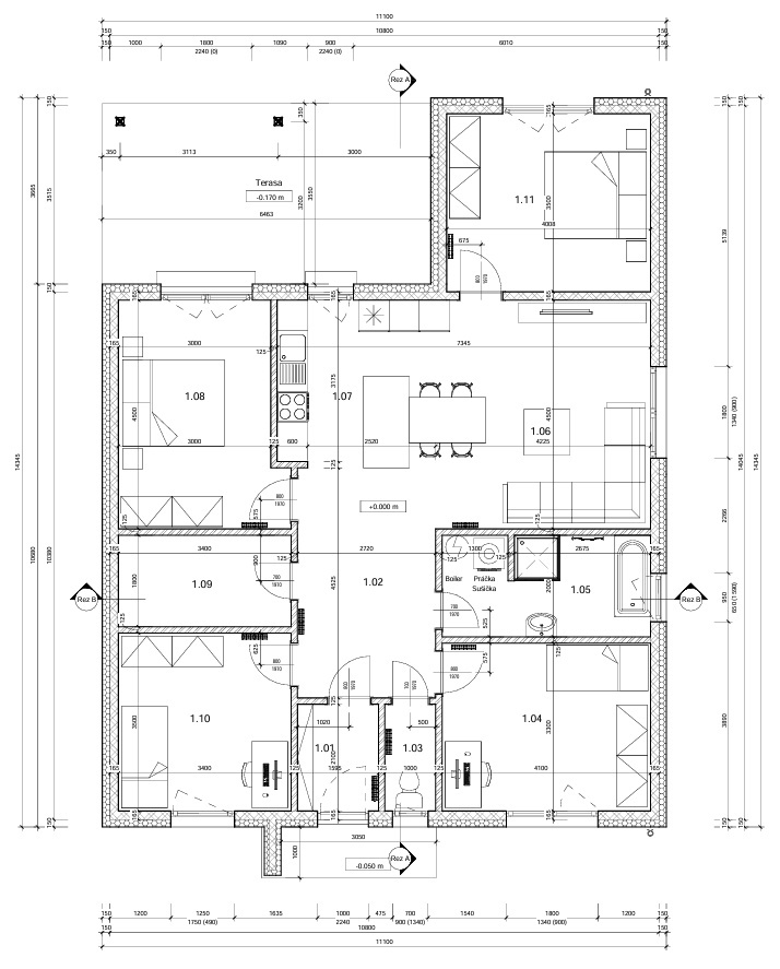
Exkluzívne na predaj novostavba 5-izbového rodinného domu v Malom Kiari! Nehnuteľnosť má úžitkovú plochu 113 m2 a disponuje 4 spálňami, kuchyňou s obývačkou, šatníkom, kúpeľňou a oddelením WC. Z obývačky a kuchyne je východ na prestrešenú terasu o veľkosti 23 m2. K dispozícii je aj 14 m2 pochôdznej povaly, ktorá sa dá využiť ako úložný priestor. V kúpeľni je vytvorený priestor pre bojler, práčku a sušičku, ktorý je možné elegantne skryť za posuvné dvere. Vykurovanie je riešené kombináciou elektrických podlahových rohoží v dennej časti a v spálňach sú nainštalované elektrické olejové radiátory. V dome je spravená predpríprava na 2 klimatizačné jednotky. Súčasťou domu je aj komín a lokálne rekuperačné jednotky v každej obytnej miestnosti. Dom sa predáva vo výbave ako je na fotkách. K nasťahovaniu je potrebné už iba dokúpiť osvetlenie, kuchynskú linku a sanitu. V prípade záujmu vieme novému majiteľovi zabezpečiť služby nášho stolára a vodára.
Dom sa nachádza na rovinatom pozemku o veľkosti 840 m2 a je oplotený z 3 strán. Novostavba je situovaná v krásnom a tichom prostredí. V obci premáha MHD do mesta Levice, ktoré je vzdialené len 10 min cesty autom. Hneď za obcou sa nachádza kúpalisko Margita-Ilona a z druhej strany obce sa rozprestiera rybník ako stvorený na prechádzky pri západe slnka. V okolí je možnosť využívania cykloturistiky.
Naša spoločnosť RAJ BÝVANIA s.r.o. sa už vyše 15 rokov zaoberá výstavbou montovaných drevodomov po celom Slovensku. Našim klientom poskytujeme bezplatné poradenstvo, záruku a kvalitný servis.
V prípade potreby vieme budúcemu majiteľovi poskytnúť aj finančné poradenstvo pri vybavovaní hypotekárneho úveru a taktiež služby našej realitnej kancelárie pre potreby predaja aktuálne obývanej nehnuteľnosti.
Pre viac informácii a dohodnutie stretnutia či obhliadky nás neváhajte kontaktovať na tel.č. 0948 948 088!
Dom sa nachádza na rovinatom pozemku o veľkosti 840 m2 a je oplotený z 3 strán. Novostavba je situovaná v krásnom a tichom prostredí. V obci premáha MHD do mesta Levice, ktoré je vzdialené len 10 min cesty autom. Hneď za obcou sa nachádza kúpalisko Margita-Ilona a z druhej strany obce sa rozprestiera rybník ako stvorený na prechádzky pri západe slnka. V okolí je možnosť využívania cykloturistiky.
Naša spoločnosť RAJ BÝVANIA s.r.o. sa už vyše 15 rokov zaoberá výstavbou montovaných drevodomov po celom Slovensku. Našim klientom poskytujeme bezplatné poradenstvo, záruku a kvalitný servis.
V prípade potreby vieme budúcemu majiteľovi poskytnúť aj finančné poradenstvo pri vybavovaní hypotekárneho úveru a taktiež služby našej realitnej kancelárie pre potreby predaja aktuálne obývanej nehnuteľnosti.
Pre viac informácii a dohodnutie stretnutia či obhliadky nás neváhajte kontaktovať na tel.č. 0948 948 088!
|
| |||||||||||||||||||||||||||||||
Kontaktovať inzerenta e-mailom
Kontaktovať e-mailom môže iba overený užívateľ.
Overenie je zadarmo.
Vaše telefónne číslo *
Kontaktovať e-mailom môže iba overený užívateľ.
Overenie je zadarmo.
Vaše telefónne číslo *




