2 izbový byt v centre Martina, kompletná rekonštrukcia, na p
- [7.11. 2025]Zmazať/ Upraviť/ Topovať






























Štýlový 2-izbový byt na predaj, tehlová bytovka, vyhľadávaná lokalite v centre Martina, na ulici L. Novomeského.
Byt prešiel kompletnou, vkusnou rekonštrukciou a predáva sa spolu so zariadením – stačí sa už len nasťahovať.
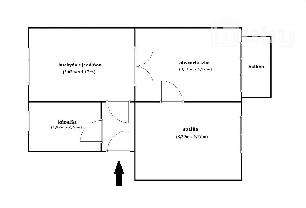
Podlahová plocha bytu je 54,16 m², k tomu balkón 4,30 m² a dve pivnice v suteréne, spolu o výmere 7 m2.
Nachádza sa na 1. poschodí tehlového, zatepleného bytového domu bez výťahu.
Dispozične pozostáva zo:
- vstupnej chodby so vstavaným šatníkom,
- kúpeľne s vaňou a toaletou,
- kuchyne s jedáleňou,
- obývacej izby so vstupom na zasklený balkón,
- samostatnej spálne s úložným priestorom.
Rekonštrukcia zahŕňa:
- nové rozvody elektriny, vody a odpadu,
- vstupné bezpečnostné dvere,
- podlahové kúrenie v chodbe a kúpeľni,
- nivelizované podlahy, kompozitná podlaha v celom byte,
- keramické obklady a dlažby,
- zateplené stropy minerálnou vatou
- znížené stropy sadrokartónom
- nové stierky, interiérové dvere a obložkové zárubne,
- kuchynská linka na mieru so vstavanými spotrebičmi,
- vstavané skrine v chodbe a spálni,
- úložný priestor v obývacej izbe,
- zasklený balkón.
Výborná občianska vybavenosť – v pešej dostupnosti sa nachádza lekárska fakulta, centrum mesta, zastávka MHD, školy, škôlky, obchody a iné.
Byt je ideálny na okamžité nasťahovanie alebo ako investícia, na následný prenájom.
Cena bytu 168 000 €.
Pre viac informácií ma kontaktujte: Mgr. Milan Valušek, tel. 0904 742 743, mail: valusek.m@bubyreality.sk
Byt prešiel kompletnou, vkusnou rekonštrukciou a predáva sa spolu so zariadením – stačí sa už len nasťahovať.
Podlahová plocha bytu je 54,16 m², k tomu balkón 4,30 m² a dve pivnice v suteréne, spolu o výmere 7 m2.
Nachádza sa na 1. poschodí tehlového, zatepleného bytového domu bez výťahu.
Dispozične pozostáva zo:
- vstupnej chodby so vstavaným šatníkom,
- kúpeľne s vaňou a toaletou,
- kuchyne s jedáleňou,
- obývacej izby so vstupom na zasklený balkón,
- samostatnej spálne s úložným priestorom.
Rekonštrukcia zahŕňa:
- nové rozvody elektriny, vody a odpadu,
- vstupné bezpečnostné dvere,
- podlahové kúrenie v chodbe a kúpeľni,
- nivelizované podlahy, kompozitná podlaha v celom byte,
- keramické obklady a dlažby,
- zateplené stropy minerálnou vatou
- znížené stropy sadrokartónom
- nové stierky, interiérové dvere a obložkové zárubne,
- kuchynská linka na mieru so vstavanými spotrebičmi,
- vstavané skrine v chodbe a spálni,
- úložný priestor v obývacej izbe,
- zasklený balkón.
Výborná občianska vybavenosť – v pešej dostupnosti sa nachádza lekárska fakulta, centrum mesta, zastávka MHD, školy, škôlky, obchody a iné.
Byt je ideálny na okamžité nasťahovanie alebo ako investícia, na následný prenájom.
Cena bytu 168 000 €.
Pre viac informácií ma kontaktujte: Mgr. Milan Valušek, tel. 0904 742 743, mail: valusek.m@bubyreality.sk
|
| |||||||||||||||||||||||||||||||
Kontaktovať inzerenta e-mailom
Kontaktovať e-mailom môže iba overený užívateľ.
Overenie je zadarmo.
Vaše telefónne číslo *
Kontaktovať e-mailom môže iba overený užívateľ.
Overenie je zadarmo.
Vaše telefónne číslo *
Podobné inzeráty
Na predaj 3-izbový byt v meste Martin - Jahodníky - [9.11. 2025]Typ: 3-izbový byt
Ulica: -
Mestská časť: Jahodníky
Obec: Martin
Moderný maklér ponúka na predaj 3-izbový byt v Martine – časť Jahodníky, ktorý je v pôvodnom stave a predstavuje ideálnu príležitosť na rekonštrukciu podľa vlastných predstáv. Nehnuteľnosť ponúka maximálnu flexibilitu pri zariaden ...
139 000 €
Martin
036 01
036 01
11 x
Označiť zlý inzerát Chybnú kategóriu Ohodnotiť užívateľa Zmazať/Upraviť/Topovať
Na predaj 3 izbový byt 65 m² Martin časť Sever - [9.11. 2025]Reality EGYPS ponúka na predaj 3-izbový byt o výmere 65 m² v obľúbenej časti Martin – Sever.
Nachádza sa na 6. poschodí a je po čiastočnej rekonštrukcii, nové plastové okná, nové rozvody kúrenia a radiátory, nový balkón.
Mesačné náklady cca 180 €/2 osoby.
Byt má prechodnú obývačku, výbornú ...
V texte
Martin
036 01
036 01
41 x
Označiť zlý inzerát Chybnú kategóriu Ohodnotiť užívateľa Zmazať/Upraviť/Topovať
PRIPRAVUJEME: Luxusný 4 izbový s balkónom, Ľadoveň - Martin, - [9.11. 2025]TARGETreal pripravuje nadštandardné rodinné bývanie v jednej z najžiadanejších častí Martina. Ponúkame priestranný 4-izbový byt s balkónom o výmere 89 m² v lokalite Ľadoveň – Martin. Byt je ideálny pre rodinu, ktorá ocení komfort, štýl a výbornú dostupnosť kompletnej občianskej vybavenosti. Byt sa n ...
215 000 €
Martin
036 01
036 01
36 x
Označiť zlý inzerát Chybnú kategóriu Ohodnotiť užívateľa Zmazať/Upraviť/Topovať
NA PREDAJ - 4 izbový byt s podielom 120m2 pozemku - [8.11. 2025]Ponúkam na predaj priestranný 4-izbový byt v tichej lokalite Martin – Priekopa, ktorý spája komfort bývania v byte s výhodami rodinného domu
– vrátane nízkych mesačných nákladov a vlastného plynového kúrenia.
Byt je v pôvodnom stave, čo umožňuje rekonštrukciu podľa vlastných predstáv.
K bytu pa ...
159 000 €
Martin
036 01
036 01
79 x
Označiť zlý inzerát Chybnú kategóriu Ohodnotiť užívateľa Zmazať/Upraviť/Topovať
Exkluzívne iba u nás 3 izbový byt Martin - širšie centrum - [7.11. 2025]Presná výška kúpnej ceny bude určená po komunikácii s realitným makléromPresná výška kúpnej ceny bude určená po komunikácii s realitným makléromB10 Vám vo výhradnom zastúpení ponúka na predaj 3 izbový byt v top lokalite Martin - širšie centrum.Je situovaný v lokalite kde je kompletná vybavenosť, dob ...
Dohodou
Martin
036 01
036 01
77 x
Označiť zlý inzerát Chybnú kategóriu Ohodnotiť užívateľa Zmazať/Upraviť/Topovať
Posledný 2 izbový byt, č. IIB_3C, v novostavbe Byty Ruppeldt - [7.11. 2025]Posledný 2 izbový byt s predzáhradkou na predaj, v novom developerskom projekte "Byty Ruppeldtova".
Byt sa nachádza vo vyhľadávanej lokalite, v blízkosti univerzitnej nemocnice, na ulici Ruppeldtova, podľa ktorej je projekt aj pomenovaný.
Ponúkaný 2 izbový byt II.B_3C, má ...
163 600 €
Martin
036 01
036 01
73 x
Označiť zlý inzerát Chybnú kategóriu Ohodnotiť užívateľa Zmazať/Upraviť/Topovať
Na predaj garsónka v Martine - časť Sever - [7.11. 2025]Typ: Garsónka
Ulica: -
Mestská časť: Sever
Obec: Martin
Moderný maklér ponúka na predaj priestrannú garsónku v meste Martin - časť Sever. Byt sa nachádza na 11/12 poschodí v bytovom dome s dvoma výťahmi. Nehnuteľnosť sa nachádza v pôvodnom stave, čo novému majiteľovi poskytuje úplnú ...
Dohodou
Martin
036 01
036 01
73 x
Označiť zlý inzerát Chybnú kategóriu Ohodnotiť užívateľa Zmazať/Upraviť/Topovať
Na predaj 2 izbový byt Martin - Sever - TOP - [9.11. 2025]Ponúkame Vám na predaj 2 izbový byt v Martine v mestskej časti Sever. Byt nachádza na 4 poschodí z 5, má 54m2 a k tejto výmere treba prirátať novú veľkú loggiu o výmere 9m2. V byte boli vymenené komplet el. rozvody, v chodbe a kuchyni je nová dlažba a v izbách plávajúce podlahy. Jadro je murované, ...
Dohodou
Martin
036 01
036 01
183 x
Označiť zlý inzerát Chybnú kategóriu Ohodnotiť užívateľa Zmazať/Upraviť/Topovať
PREDAJ 3 izbový byt neďaleko centra mesta - Martin - Jahodní - [7.11. 2025]Ponúkame na predaj krásny 3 izbový byt nachádzajúci sa nedaľeko centra mesta Martin, vo vyhľadávanej lokalite Martin -Jahodníky. Priestranný byt s rozlohou 76,36 m2 sa nachádza na 4/4 poschodí nízkopodlažného zatepleného bytového domu bez výťahu. Dispozičné riešenie bytu je tvorené vstupnou chodbou ...
139 000 €
Martin
036 01
036 01
77 x
Označiť zlý inzerát Chybnú kategóriu Ohodnotiť užívateľa Zmazať/Upraviť/Topovať
na predaj 3 izbový byt Martin - sever - [7.11. 2025]🏡 Na predaj: priestranný 3-izbový byt – Severná ulica, Martin-Sever
Ponúkame na predaj svetlý a priestranný 3-izbový byt s rozlohou 69,8 m², nachádzajúci sa na 2. poschodí z 5 v zrekonštruovanom panelovom dome s výťahom.
Súčasťou bytu je aj pivnica (1,4 m²).
📍 Bytový dom:
po kompletnej mod ...
155 000 €
Martin
036 01
036 01
113 x
Označiť zlý inzerát Chybnú kategóriu Ohodnotiť užívateľa Zmazať/Upraviť/Topovať









