2 izbový byt v rodinnom dome na Bôriku v Žiline, na prenájom
- [7.11. 2025]Zmazať/ Upraviť/ Topovať


























Ponúkam na prenájom 2 izbový byt v rodinnom dome, vo vyhľadávanej lokalite na Bôriku, v Žiline.
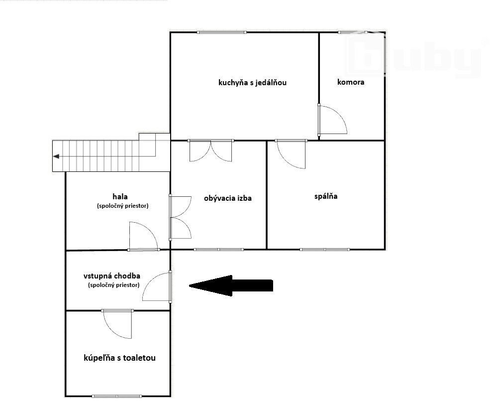
Byt sa nachádza na prízemí rodinného domu a tvorí ho spoločná vstupná chodba, spoločná hala/predsieň, samostatná obývacia izba, kuchynská linka s jedálňou, spálňa a kúpeľňa so sprchovacím kútom a toaletou.
Parkovanie pre jedno auto, vo dvore rodinného domu.
Byt sa prenajíma zariadený, viď fotografie.
Vhodné pre max. 2 osoby, bez domácich zvierat.
Cena 570 €/mesiac, vrátane energií a internetu. Voľný ihneď.
Pre viac informácií ma neváhajte kontaktovať : Mgr. Milan Valušek, tel 0904 742 743, mail: valusek.m@bubyreality.sk
Byt sa nachádza na prízemí rodinného domu a tvorí ho spoločná vstupná chodba, spoločná hala/predsieň, samostatná obývacia izba, kuchynská linka s jedálňou, spálňa a kúpeľňa so sprchovacím kútom a toaletou.
Parkovanie pre jedno auto, vo dvore rodinného domu.
Byt sa prenajíma zariadený, viď fotografie.
Vhodné pre max. 2 osoby, bez domácich zvierat.
Cena 570 €/mesiac, vrátane energií a internetu. Voľný ihneď.
Pre viac informácií ma neváhajte kontaktovať : Mgr. Milan Valušek, tel 0904 742 743, mail: valusek.m@bubyreality.sk
|
| |||||||||||||||||||||||||||||||
Kontaktovať inzerenta e-mailom
Kontaktovať e-mailom môže iba overený užívateľ.
Overenie je zadarmo.
Vaše telefónne číslo *
Kontaktovať e-mailom môže iba overený užívateľ.
Overenie je zadarmo.
Vaše telefónne číslo *





