3-jizb. zariadený apartmán s terasou a záhradkou, Chorvátsko
- [7.11. 2025]Zmazať/ Upraviť/ Topovať





























Severná Dalmácia, Gajac / Ostrov Pag
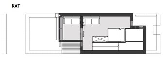
LaHoREAL.eu ponúka na predaj trojizbový apartmán v dvojposchodovom dome, radový dom s terasou a záhradou. Celková plocha predstavuje 62 m2. Nachádza sa v dedinke Gajac na ostrove Pag
Je nadštandardne zariadený a klimatizovaný (dve klimatizácie – teplo/chladenie).
Do bytu/domu sa vstupuje cez záhradu o výmere 7,01 m2.
Na prízemí sa nachádza obývacia izba s kuchyňou a jedálňou, kúpeľňa, malá špajza a zariadená terasa s markízou o výmere 14,41 m2, na ktorú je prístup z obývačky.
Schody vedú na horné poschodie, kde sa nachádzajú dve izby.
Celková vnútorná plocha bytu/domu je 57,07 m2.
Na fasádu bola aplikovaná dodatočná vrstva pre lepšiu izoláciu.
Parkovisko je verejné a vždy je tam miesto.
Pláž je vzdialená len 5 minút chôdze.
Zabezpečíme osobnú obhliadku v Chorvátsku.
Zvažujete kúpu nehnuteľnosti pri mori? Radi vám budeme osobne k dispozícii priamo v Chorvátsku. Za primeraný poplatok vieme s vami vycestovať na obhliadky nehnuteľností a poskytnúť vám kompletný servis na mieste.
Viac informácií o podmienkach vám radi vysvetlíme osobne.
Nenašli ste vysnívanú nehnuteľnosť? My ju pre Vás nájdeme. Pre viac info nás kontaktujte.
lahoreal.eu (sleduj stránku). Pozri aj moje ostatné inzeráty.
LaHoREAL.eu ponúka na predaj trojizbový apartmán v dvojposchodovom dome, radový dom s terasou a záhradou. Celková plocha predstavuje 62 m2. Nachádza sa v dedinke Gajac na ostrove Pag
Je nadštandardne zariadený a klimatizovaný (dve klimatizácie – teplo/chladenie).
Do bytu/domu sa vstupuje cez záhradu o výmere 7,01 m2.
Na prízemí sa nachádza obývacia izba s kuchyňou a jedálňou, kúpeľňa, malá špajza a zariadená terasa s markízou o výmere 14,41 m2, na ktorú je prístup z obývačky.
Schody vedú na horné poschodie, kde sa nachádzajú dve izby.
Celková vnútorná plocha bytu/domu je 57,07 m2.
Na fasádu bola aplikovaná dodatočná vrstva pre lepšiu izoláciu.
Parkovisko je verejné a vždy je tam miesto.
Pláž je vzdialená len 5 minút chôdze.
Zabezpečíme osobnú obhliadku v Chorvátsku.
Zvažujete kúpu nehnuteľnosti pri mori? Radi vám budeme osobne k dispozícii priamo v Chorvátsku. Za primeraný poplatok vieme s vami vycestovať na obhliadky nehnuteľností a poskytnúť vám kompletný servis na mieste.
Viac informácií o podmienkach vám radi vysvetlíme osobne.
Nenašli ste vysnívanú nehnuteľnosť? My ju pre Vás nájdeme. Pre viac info nás kontaktujte.
lahoreal.eu (sleduj stránku). Pozri aj moje ostatné inzeráty.
|
| |||||||||||||||||||||||||||||||
Kontaktovať inzerenta e-mailom
Kontaktovať e-mailom môže iba overený užívateľ.
Overenie je zadarmo.
Vaše telefónne číslo *
Kontaktovať e-mailom môže iba overený užívateľ.
Overenie je zadarmo.
Vaše telefónne číslo *
Podobné inzeráty
Chorvatsko-Krásný trojizbový apartmán s výhľadom na more - [9.11. 2025]LaHoREAL.eu ponúka na predaj je trojizbový, dvojposchodový apartmán (S8) s dvoma terasami, 2 parkovacími miestami a čiastočným výhľadom na more a celú Novalju.
Nachádza sa na 2. poschodí a v podkroví a jeho úžitková plocha je 68,80 m2.
Na 2. poschodí sa nachádza vstupná časť, obývacia izba s kuc ...
199 000 €
Námestovo
029 01
029 01
34 x
Označiť zlý inzerát Chybnú kategóriu Ohodnotiť užívateľa Zmazať/Upraviť/Topovať
Apartmán s výhľadom na more a záhradou, Seline / Chorvátsko - [7.11. 2025]Severná Dalmácia, Starigrad, Seline
Apartmán s výhľadom na more a záhradou na prízemí apartmánového domu v Seline.
Nachádza sa na atraktívnom mieste v Seline, Starigrad, len 220 m od mora a 2,5 km od centra.
Tento moderne navrhnutý apartmán je na prízemí novostavby s celkovo štyrmi bytovými jed ...
205 000 €
Námestovo
029 01
029 01
679 x
Označiť zlý inzerát Chybnú kategóriu Ohodnotiť užívateľa Zmazať/Upraviť/Topovať
Moderný 4-izb. zariadený apartmán s bazénom, Chorvátsko - [7.11. 2025]Severná Dalmácia, Maslenica
Nový apartmán pripravený na nasťahovanie, výhľad na more, bazén vo dvore v Maslenici.
Predáva sa krásny nový 4-izbový moderný apartmán len 60 m od mora v Maslenici.
Je pripravený na okamžité nasťahovanie a je to novostavba. Z bytu je fantastický výhľad na more.
...
365 000 €
Námestovo
029 01
029 01
686 x
Označiť zlý inzerát Chybnú kategóriu Ohodnotiť užívateľa Zmazať/Upraviť/Topovať
Na predaj 2-izbový byt na ulici Veterná: znížená cena - [5.11. 2025]Typ: 2-izbový byt
Ulica: Veterná
Obec: Námestovo
ZNÍŽENÁ CENA • 300-101-MOV
Na predaj 2-izbový byt na ulici Veterná v pôvodnom stave, ideálny na rekonštrukciu podľa vlastných predstáv. Byt má výmeru 54,7 m², z toho cca 4 m² tvorí pivnica. Nachádza sa na 1. poschodí panelového bytového domu. By ...
110 000 €
Námestovo
029 01
029 01
550 x
Označiť zlý inzerát Chybnú kategóriu Ohodnotiť užívateľa Zmazať/Upraviť/Topovať
Chorvatsko-Trojizbový apartman s vyhľadom Sv.Filip a Jakov - [2.11. 2025]LaHoREAL.eu ponúka na predaj trojizbový apartmán na 1.poschodí v Sveti Filip i Jakov.
Ide o modernú novostavbu.
Dispozícia izieb pozostáva z chodby, dvoch spální, kúpeľne, WC, kuchyne s jedálňou a obývačkou, loggie a balkóna.
Čistá úžitková plocha opísaných izieb je 74,22 m2.
Okrem toho k byt ...
268 600 €
Námestovo
029 01
029 01
374 x
Označiť zlý inzerát Chybnú kategóriu Ohodnotiť užívateľa Zmazať/Upraviť/Topovať
130 000 €
Námestovo
029 01
029 01
601 x
Označiť zlý inzerát Chybnú kategóriu Ohodnotiť užívateľa Zmazať/Upraviť/Topovať
Luxusne kompletne zariadený 3-izb. apartmán, Chorvátsko - [31.10. 2025]LaHoREAL.eu ponúka na predaj luxusný kompletne zariadený trojizbový apartmán blízko pláže a centra,
Severná Dalmácia, Novalja / Ostrov Pag
Na predaj luxusný trojizbový apartmán (A1) s rozlohou 67 m2 na 1. poschodí novostavby v elitnej časti Novalje. Blízko pláže centra mesta.
Apartmán má 2 s ...
267 000 €
Námestovo
029 01
029 01
496 x
Označiť zlý inzerát Chybnú kategóriu Ohodnotiť užívateľa Zmazať/Upraviť/Topovať
3-izb. zariadený apartmán s výhľadom na more, Chorvátsko - [31.10. 2025]LaHoREAL.eu ponúka na predaj trojizbový zariadený apartmán s terasou a výhľadom na more,
Severná Dalmácia, Povljana / Ostrov Pag
Apartmán s čistou plochou 52,13 m2 na výbornom mieste. Apartmán sa nachádza na 1. poschodí novej budovy v Povljane na ostrove Pag.
Skladá sa zo vstupnej haly, 2 sp ...
220 000 €
Námestovo
029 01
029 01
396 x
Označiť zlý inzerát Chybnú kategóriu Ohodnotiť užívateľa Zmazať/Upraviť/Topovať
Chorvátsko-Trojizbový apartmán s panoramatickým výhľadom PAG - [31.10. 2025]LaHoREAL.eu ponúka Na predaj je trojizbový apartmán (A2) s celkovou rozlohou 76,83 m2 na prvom poschodí novostavby v Novalji.
Pozostáva zo vstupnej haly, kúpeľne, toalety, 2 spální, komory a obývačky s kuchyňou a jedálňou, z ktorej je východ na terasu s panoramatickým výhľadom na more.
K apartmá ...
269 000 €
Námestovo
029 01
029 01
296 x
Označiť zlý inzerát Chybnú kategóriu Ohodnotiť užívateľa Zmazať/Upraviť/Topovať
Chorvatsko-luxusný zariadený 4 izbový apartmán na Pagu - TOP - [9.11. 2025]LaHoREAL.eu ponúka na predaj luxusný 4-izbový apartmán. Je luxusne zariadený. Má dve terasy s výhľadom na more, dvor s vírivkou v cene. Apartmán sa nachádza v Novalji na ostrove Pag.
Pozostáva z:
PRVÉ POSCHODIE: chodba, kúpeľňa s WC, WC, obývačka, kuchyňa, dve spálne a schodisko, ktorým sa do by ...
250 000 €
Námestovo
029 01
029 01
326 x
Označiť zlý inzerát Chybnú kategóriu Ohodnotiť užívateľa Zmazať/Upraviť/Topovať









