Na predaj stavebné pozemoky Bellova ves
- [7.11. 2025]Zmazať/ Upraviť/ Topovať




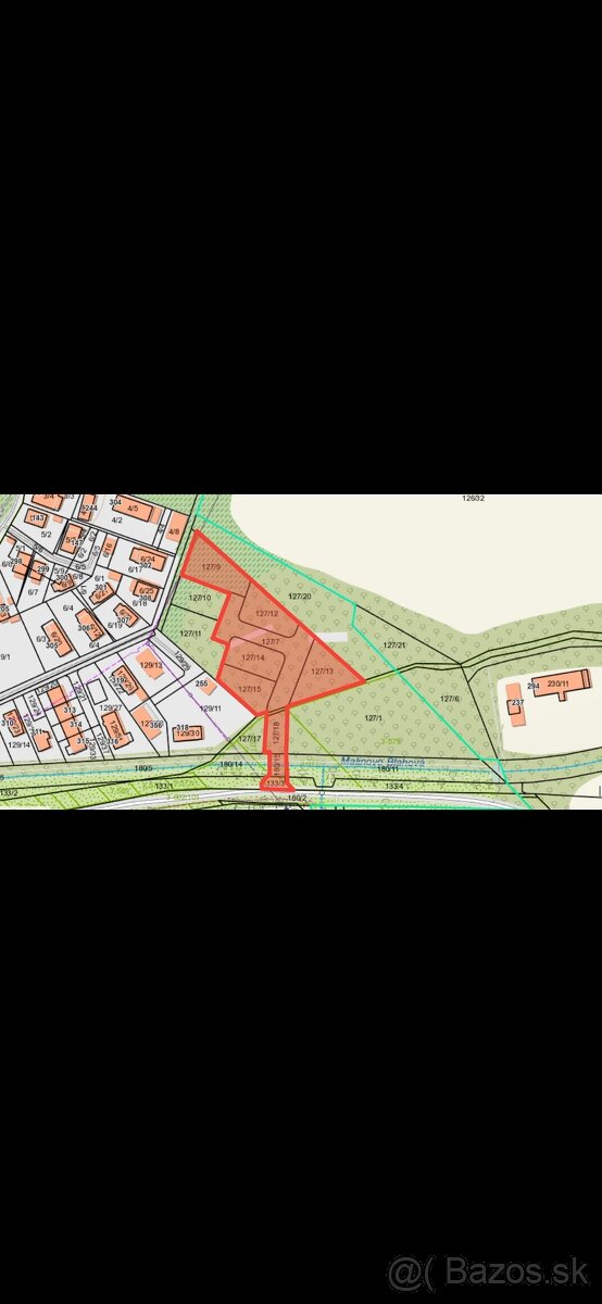
Ponúkam na predaj pozemky s celkovou výmerou 6262 m2 nachádzajúce sa v intraviláne k. ú. Bellova Ves, okres Dunajská Streda.
Jedná sa o pozemky vhodné na výstavbu rodinných domov, toho času rozparcelované nasledovne: 715 m2, 579 m2, 565 m2, 574 m2 a 765 m2. Ostatné parcely slúžia ako obslužné – prístup (aj k ďalšej plánovanej výstavbe). Pozemky sú investičné – prístup z hlavnej cesty (je potrebné vybudovať premostenie cez zavlažovací kanál) a hlavne na strategicky dobrom mieste, keďže ide o jediný prístup k lokalite s plánovanou výstavbou.
Obec Bellova Ves nemá územný plán.
Jedná sa o pozemky vhodné na výstavbu rodinných domov, toho času rozparcelované nasledovne: 715 m2, 579 m2, 565 m2, 574 m2 a 765 m2. Ostatné parcely slúžia ako obslužné – prístup (aj k ďalšej plánovanej výstavbe). Pozemky sú investičné – prístup z hlavnej cesty (je potrebné vybudovať premostenie cez zavlažovací kanál) a hlavne na strategicky dobrom mieste, keďže ide o jediný prístup k lokalite s plánovanou výstavbou.
Obec Bellova Ves nemá územný plán.
|
| |||||||||||||||||||||||||||||||