Budúca Novostavba 3i RD, pozemok 350 m2
- [7.11. 2025]Zmazať/ Upraviť/ Topovať






























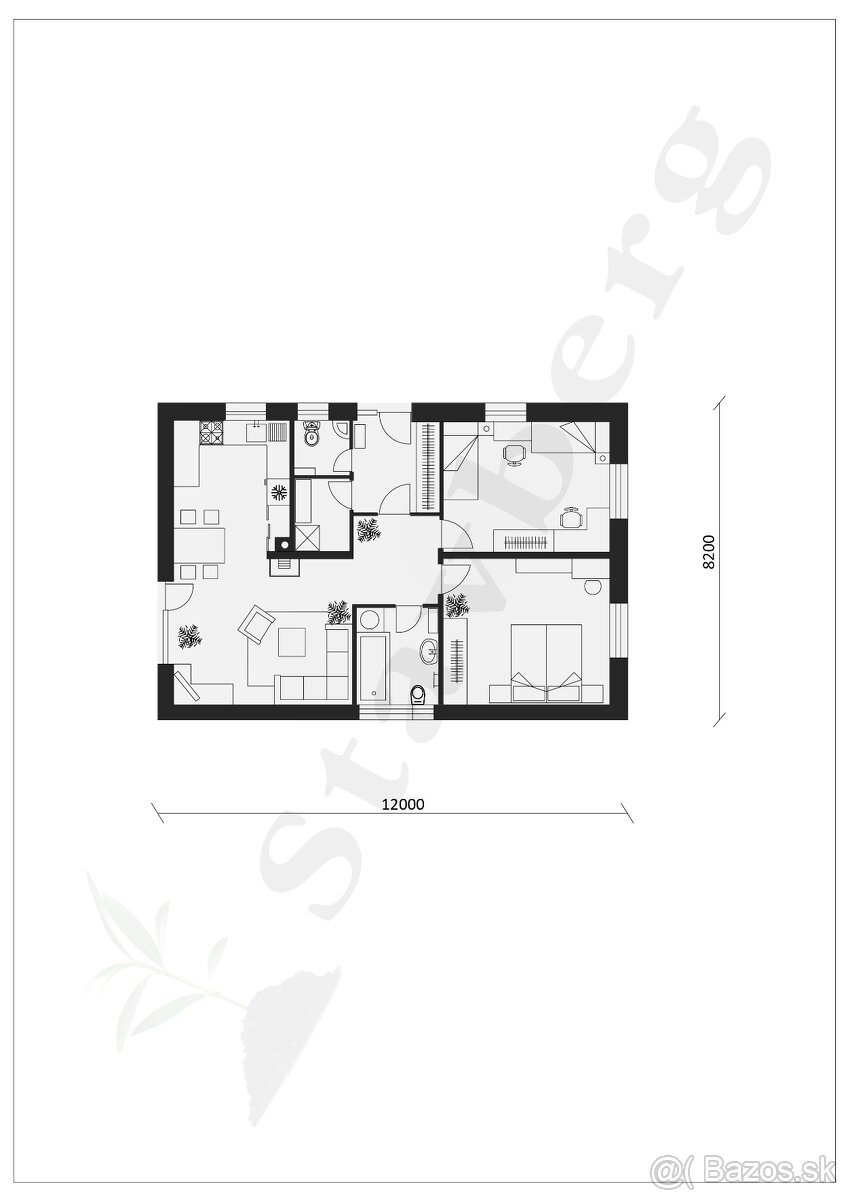
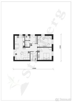
Ponúkam na predaj murovaný dom na kraji dediny v kľudnom prostredí pod lesom s krásnymi výhľadmi na cca 3,5 ár. pozemku. (prípadne viac). Dookola pole. 17 km od katedrály sv. Alžbety. Pripojenie na diaľnicu cca 5 km. Dom má UP cca 79 m2. Cena je v prevedení za holodom s prípojkami a žumpou. Dokončenie do stavu na kľúč vrátane exteriérových úprav a oplotenia dohodou.
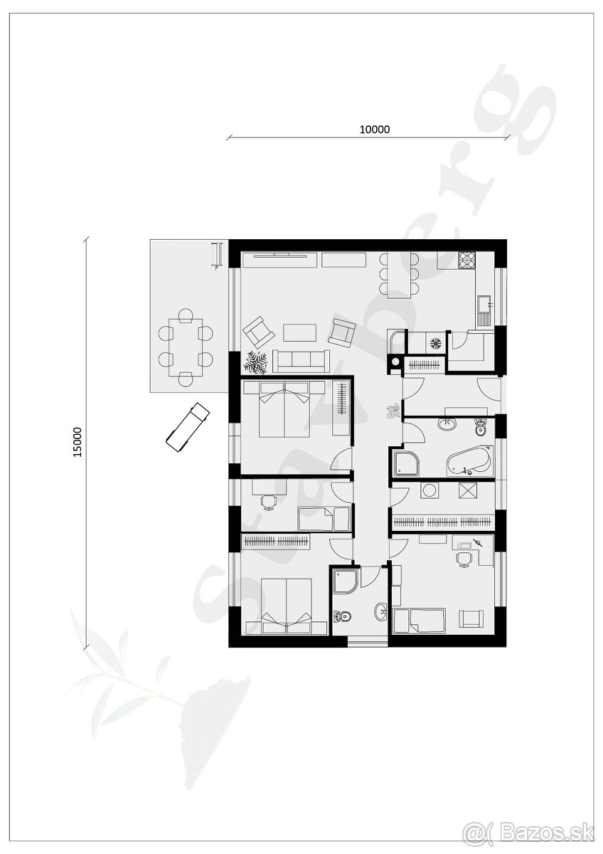
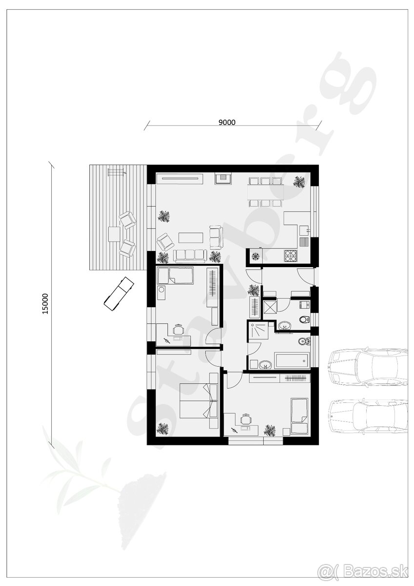
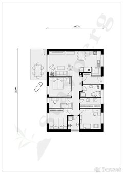
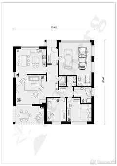
Začiatok výstavby po dohode. Postupné financovanie počas výstavby. Možnosť dispozične upraviť. V príprave sú aj 3 moderné poschodové 4i a 5i domy s garážou, (skica) UP 165 m2 z toho garáž a balkón 30 m2.
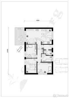
Pri 4i.- Prízemie: predsieň, WC s umývadlom a sprchou, kotolňa s práčkou a regálmi s prechodom do garáže, garáž 26m2, obývačka 20m2, kuchyňa 17m2, komín na piecku. Poschodie: 1 izba 14m2 s balkónom 7,5m2, 2 izba 12m2, 3 izba 12,5m2, kúpeľňa 10m2, WC s um. 3m2.
Pri 5i.- Prízemie: predsieň, WC s umývadlom a pračkou, pracovňa 7,7m2, obývačka 20m2, kuchyňa 17m2, komín na piecku, garáž s kotolňou 26m2. Poschodie: 1 izba 14m2 s balkónom 7,5m2, 2 izba 12m2, 3 izba 12,5m2, kúpeľňa 10m2, WC s um. 3m2.
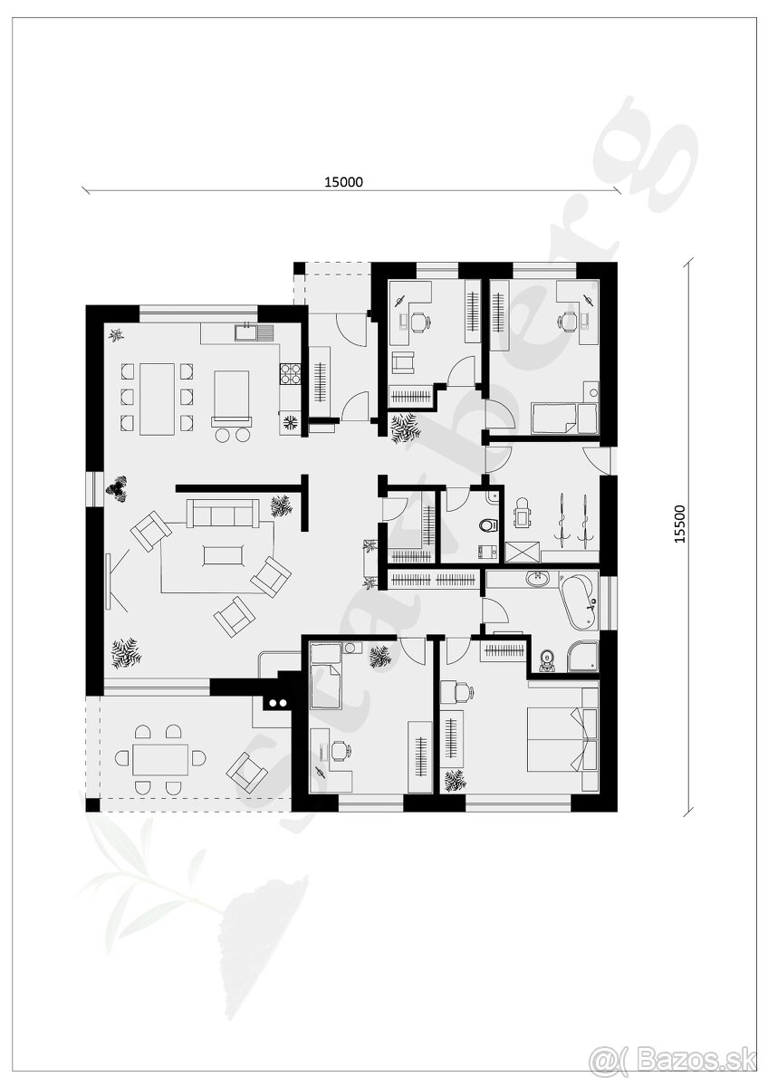
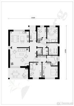
Spolu budú vystavané 3-5 domy. Cesta (obecná) bude do ukončenia výstavby z makadamu. Prípadne po dohode aj iný dom. V ponuke máme od 3i. bungalovu po 7i poschodový s garážou. Aj 2 generačný 2x3i plus garáž. Som majiteľ pozemkov aj stavebnej firmy. Ak uprednostňujete iné miesto, urobíme Vám ponuku na výstavbu tam. Stavebnej činnosti vrátane výstavby domov sa venujem 20 r. Viac podrobností rád poskytnem tel. alebo osobne. Pokiaľ Vás uvedené zaujalo volajte prosím len medzi 19 a 21 hod. (číslo slúži ako pevná linka) O zaradenie do inzercie real. kancel. nemám záujem. 0951820060. Ďakujem
Začiatok výstavby po dohode. Postupné financovanie počas výstavby. Možnosť dispozične upraviť. V príprave sú aj 3 moderné poschodové 4i a 5i domy s garážou, (skica) UP 165 m2 z toho garáž a balkón 30 m2.
Pri 4i.- Prízemie: predsieň, WC s umývadlom a sprchou, kotolňa s práčkou a regálmi s prechodom do garáže, garáž 26m2, obývačka 20m2, kuchyňa 17m2, komín na piecku. Poschodie: 1 izba 14m2 s balkónom 7,5m2, 2 izba 12m2, 3 izba 12,5m2, kúpeľňa 10m2, WC s um. 3m2.
Pri 5i.- Prízemie: predsieň, WC s umývadlom a pračkou, pracovňa 7,7m2, obývačka 20m2, kuchyňa 17m2, komín na piecku, garáž s kotolňou 26m2. Poschodie: 1 izba 14m2 s balkónom 7,5m2, 2 izba 12m2, 3 izba 12,5m2, kúpeľňa 10m2, WC s um. 3m2.
Spolu budú vystavané 3-5 domy. Cesta (obecná) bude do ukončenia výstavby z makadamu. Prípadne po dohode aj iný dom. V ponuke máme od 3i. bungalovu po 7i poschodový s garážou. Aj 2 generačný 2x3i plus garáž. Som majiteľ pozemkov aj stavebnej firmy. Ak uprednostňujete iné miesto, urobíme Vám ponuku na výstavbu tam. Stavebnej činnosti vrátane výstavby domov sa venujem 20 r. Viac podrobností rád poskytnem tel. alebo osobne. Pokiaľ Vás uvedené zaujalo volajte prosím len medzi 19 a 21 hod. (číslo slúži ako pevná linka) O zaradenie do inzercie real. kancel. nemám záujem. 0951820060. Ďakujem
|
| |||||||||||||||||||||||||||||||
Kontaktovať inzerenta e-mailom
Kontaktovať e-mailom môže iba overený užívateľ.
Overenie je zadarmo.
Vaše telefónne číslo *
Kontaktovať e-mailom môže iba overený užívateľ.
Overenie je zadarmo.
Vaše telefónne číslo *









