Stavebný pozemok v Leviciach s projektom pre rodinný dom
- [7.11. 2025]Zmazať/ Upraviť/ Topovať












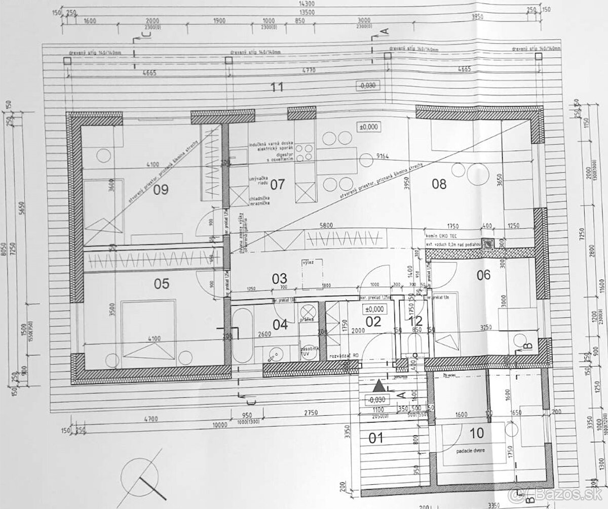
Ponúkame na predaj oplotený, slnečný pozemok s výmerou 17 árov (rozmery 22 x 80 m) v pokojnej lokalite na Ul. horný Urban v Leviciach. Pozemok je pripravený na výstavbu – nachádzajú sa na ňom vybudované základy pre rodinný dom s rozmermi 14,2 x 8,1 m, vrátane pivnice.
-Kompletná projektová dokumentácia
-Schválené jednania so všetkými dotknutými orgánmi (
-Elektrická prípojka a voda priamo na pozemku
-Na pozemku sa nachádza aj záhradná chatka
Výborná poloha, prístupová cesta spevnená, tiché prostredie a slnečná orientácia robia z tohto pozemku ideálne miesto na bývanie.
Lokalita: Horný Urban
Výmera: cca 1 700 m²
Projekt: súčasť predaja
Neváhajte nás kontaktovať pre viac informácií alebo obhliadku.
-Kompletná projektová dokumentácia
-Schválené jednania so všetkými dotknutými orgánmi (
-Elektrická prípojka a voda priamo na pozemku
-Na pozemku sa nachádza aj záhradná chatka
Výborná poloha, prístupová cesta spevnená, tiché prostredie a slnečná orientácia robia z tohto pozemku ideálne miesto na bývanie.
Lokalita: Horný Urban
Výmera: cca 1 700 m²
Projekt: súčasť predaja
Neváhajte nás kontaktovať pre viac informácií alebo obhliadku.
|
| |||||||||||||||||||||||||||||||
Kontaktovať inzerenta e-mailom
Kontaktovať e-mailom môže iba overený užívateľ.
Overenie je zadarmo.
Vaše telefónne číslo *
Kontaktovať e-mailom môže iba overený užívateľ.
Overenie je zadarmo.
Vaše telefónne číslo *