Pozemok s krásnym výhľadom a Staveb. povolením - Zobor
- [7.11. 2025]Zmazať/ Upraviť/ Topovať


















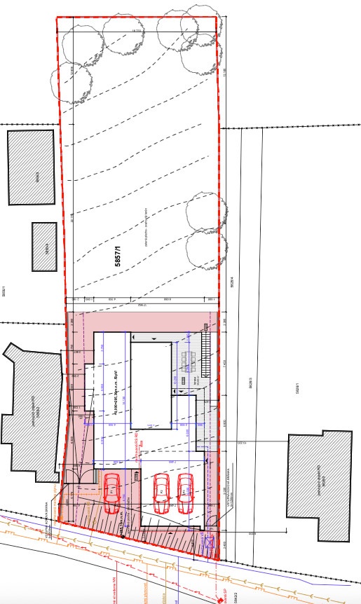
Predáme krásny stavebný pozemok na Zobore s panoramatickým výhľadom na mesto Nitra.
Južná orientácia Vám zabezpečí vždy krásny a slnečný priestor.
Tento lukratívny pozemok sa nachádza na konci slepej ulice, čo zabezpečuje pokojné bývanie s nádhernými výhľadmi pod známou Pyramídou a prechádzkami v lese.
Na hranici pozemku sa náchádzajú všetky inžinierske siete, nemá žiadne ťarchy ani vecné bremená.
Na pozemok bol vypracovaný individuálny projekt rodinného domu s právoplatne vydaným stavebným povolením a všetkými kladnými vyjadreniami.
Pozemok sa dá rozdeliť na dva samostatné. Možnosť kúpiť oddelenne alebo aj ako developerský projekt na dva rodinné domy.
Pozemok 1 : 499 m2
Pozemok 2 : 499 m2
Spoločná komunikácia : 131 m2
Výmera celkom : 1129m2
V prípade rozdelenia pozemku sa prístupová komunikácia delí na polovicu medzi budúcich majiteľov.
RK, prosím nekontaktovať.
Južná orientácia Vám zabezpečí vždy krásny a slnečný priestor.
Tento lukratívny pozemok sa nachádza na konci slepej ulice, čo zabezpečuje pokojné bývanie s nádhernými výhľadmi pod známou Pyramídou a prechádzkami v lese.
Na hranici pozemku sa náchádzajú všetky inžinierske siete, nemá žiadne ťarchy ani vecné bremená.
Na pozemok bol vypracovaný individuálny projekt rodinného domu s právoplatne vydaným stavebným povolením a všetkými kladnými vyjadreniami.
Pozemok sa dá rozdeliť na dva samostatné. Možnosť kúpiť oddelenne alebo aj ako developerský projekt na dva rodinné domy.
Pozemok 1 : 499 m2
Pozemok 2 : 499 m2
Spoločná komunikácia : 131 m2
Výmera celkom : 1129m2
V prípade rozdelenia pozemku sa prístupová komunikácia delí na polovicu medzi budúcich majiteľov.
RK, prosím nekontaktovať.
|
| |||||||||||||||||||||||||||||||
Kontaktovať inzerenta e-mailom
Kontaktovať e-mailom môže iba overený užívateľ.
Overenie je zadarmo.
Vaše telefónne číslo *
Kontaktovať e-mailom môže iba overený užívateľ.
Overenie je zadarmo.
Vaše telefónne číslo *