Prenajmeme 2 - izbový byt v Bratislave Rači. na Hagarovej ul
- [6.11. 2025]Zmazať/ Upraviť/ Topovať
















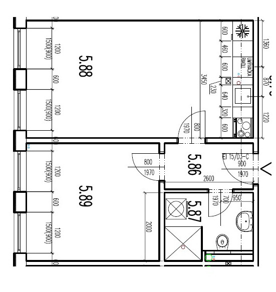
Prenajmeme 2 - izbový byt bez balkóna po kompletnej rekonštrukcii v Bratislave III. Rači. Nachádza sa na 4. poschodí s výťahom. Dom je situovaný v areáli na Hagarovej ulici.
Byt je členený na vstupnú chodbičku, kúpeľňu s toaletou a sprchovým kútom, kuchyňu prepojenú s obývačkou v ktorej sa nachádza kuchynská linka s varnou doskou, mikrovlnka, chladnička s mrazničkou a spálňu. Byt je čiastočne zariadený. Plocha bytu je cca 44,6 m2 Cena prenájmu je 650,- EUR/mesačne vrátane energií.
Viac informácií v RK 0905 838 662
Byt je členený na vstupnú chodbičku, kúpeľňu s toaletou a sprchovým kútom, kuchyňu prepojenú s obývačkou v ktorej sa nachádza kuchynská linka s varnou doskou, mikrovlnka, chladnička s mrazničkou a spálňu. Byt je čiastočne zariadený. Plocha bytu je cca 44,6 m2 Cena prenájmu je 650,- EUR/mesačne vrátane energií.
Viac informácií v RK 0905 838 662
|
| |||||||||||||||||||||||||||||||
Kontaktovať inzerenta e-mailom
Kontaktovať e-mailom môže iba overený užívateľ.
Overenie je zadarmo.
Vaše telefónne číslo *
Kontaktovať e-mailom môže iba overený užívateľ.
Overenie je zadarmo.
Vaše telefónne číslo *
Podobné inzeráty
Novinka iba u nás 2,5i byt voľný ihneď, 58m2,2/3p.,Odborárs - [11.11. 2025]NOVINKA V PONUKE IBA U NÁS!!
RK MIMAREAL Vám ponúka na prenájom zrekonštruovaný a kompletne zariadený 2,5i byt na na Odborárskej ulici v bratislavskej mestskej časti Nové Mesto. Byt má 58m2 a sa nachádza na 2.poschodí z 3 bez výťahu, tehlový zateplený obytný dom s vysokými stropmi, Vlastné kúreni ...
625 €
Bratislava
831 01
831 01
55 x
Označiť zlý inzerát Chybnú kategóriu Ohodnotiť užívateľa Zmazať/Upraviť/Topovať
2 izb. byt s balkónom, pivnicou a park. miestom - BA Rača - [10.11. 2025]INZERÁT JE AKTUÁLNY AŽ DO ZMAZANIA
3D virtuálna obhliadka: https://cutt.ly/gr8uD9Zn
Byt je k dispozícii ihneď.
Ponúkame na prenájom 2 izbový byt (48 m2) s veľkým balkónom (9 m2) a pivnicou (2m2) v príjemnej a tichej lokalite na Vrbenského ulici v Bratislave - Rača. Byt sa nachádza v novosta ...
880 €
Bratislava
831 01
831 01
79 x
Označiť zlý inzerát Chybnú kategóriu Ohodnotiť užívateľa Zmazať/Upraviť/Topovať
Krásny veľký 2 izbový byt na Teplickej ulici - [10.11. 2025]Popis
• 2 izbový byt po rekonštrukcii
• úžitk. plocha 60m2
• 1.poschodie
• Balkón
• Klimatizácia,internet
• Zariadený a vybavený so spotrebičmi
Cena: 900€/mesačne+ energie 100€
Pri podpise zmluvy sa platí nájom, depozit, odmena pre RK
Description
• 2 rooms apartment after reconstruction ...
900 €
Bratislava
831 01
831 01
121 x
Označiť zlý inzerát Chybnú kategóriu Ohodnotiť užívateľa Zmazať/Upraviť/Topovať
BEZ PROVÍZIE RK - 3izb NOVOZARIADENY byt Kramare 87m2 - [8.11. 2025]Prenajmem trojizbový novozariadený slnečný byt s rozlohou 87 m² v nadstavbe na Kramároch, Bárdošova ul. Veľká variabilná obývačka s kuchyňou, priestranna predsieň, klimatizácia, samostatne WC s umývadlom, nova kúpeľňa so sprchou aj vaňou. Samostatne kúrenie plynovým kotlom, terasa s pekným výhľadom. ...
830 €
Bratislava
831 01
831 01
162 x
Označiť zlý inzerát Chybnú kategóriu Ohodnotiť užívateľa Zmazať/Upraviť/Topovať
BA III. Nové mesto -2 izbový zariadený byt - [7.11. 2025]Popis
• 2 izbový byt po rekonštrukcii
• úžitk. plocha 60m2
• 1.poschodie
• Balkón
• Klimatizácia,internet
• Zariadený a vybavený so spotrebičmi
Cena: 900€/mesačne+ energie 100€
Pri podpise zmluvy sa platí nájom, depozit, odmena pre RK
Description
• 2 rooms apartment after reconstruction ...
900 €
Bratislava
831 01
831 01
79 x
Označiť zlý inzerát Chybnú kategóriu Ohodnotiť užívateľa Zmazať/Upraviť/Topovať
Garzonka - [6.11. 2025]Dám do prenájmu novo zrekonštruovanú garzonku
na Fedinovej ulici v Petržalke, 35 m2, výborné spojenie MHD do mesta.
El.energ. platba osobtne, podla spotreby
Bližšie info telefonicky alebo osobne.
T: 0903722147
Ludmila
600 €
Bratislava
831 01
831 01
535 x
Označiť zlý inzerát Chybnú kategóriu Ohodnotiť užívateľa Zmazať/Upraviť/Topovať
Príjemný a praktický 3 izb. byt na Kramároch - [5.11. 2025]Prenajmeme príjemný a praktický 3 izb. byt v kľudnej a peknej lokalite Kramáre, ul. Ladislava Dérera. Všetky služby v blízkom okolí (pošta, obchody, nemocnice, školy a škôlky, reštaurácie), výborná dostupnosť do centra, MHD 4 min. peši z bytového domu. Blízko do lesa – smer Kamzík alebo tri zastávky ...
760 €
Bratislava
831 01
831 01
733 x
Označiť zlý inzerát Chybnú kategóriu Ohodnotiť užívateľa Zmazať/Upraviť/Topovať
3-izbový byt na prenájom v tichej lokalite Kramárov TOP - TOP - [10.11. 2025]Ponúkame Vám na prenájom nadštandardný 3izbový byt na ulici Pod Krásnou hôrkou.
Dispozícia:
celková rozloha 100 m2 vrátane balkóna; situovaný na 3. poschodí (7) v bytovom dome s výťahom;
vstupná chodba, obývacia izba prepojená s kuchyňou, 2x spálňa, kúpeľňa s vaňou, samostatné WC, priestranný bal ...
1 200 €
Bratislava
831 01
831 01
451 x
Označiť zlý inzerát Chybnú kategóriu Ohodnotiť užívateľa Zmazať/Upraviť/Topovať
TUTI-FRUTI VÝHĽAD, 3-IZBOVÝ BYT, KDE SA BÝVA S ÚSMEVOM - TOP - [9.11. 2025]Bratislava – Kramáre | 87 m² | Prvý nájomca hľadá svoj nový domov!
Diamond Home Services predstavuje byt, ktorý má viac svetla než letný deň a viac pohody než nedeľná siesta 🌞
Novozariadený, priestranný a s výhľadom, ktorý Ti bude závidieť aj monitor tvojho počítača.
⸻
🌿 ČO ŤA TU ČAKÁ?
• Teras ...
800 €
Bratislava
831 01
831 01
744 x
Označiť zlý inzerát Chybnú kategóriu Ohodnotiť užívateľa Zmazať/Upraviť/Topovať
2 izb byt na skod do centra s parkovaním Boskovičová - [31.10. 2025]Butterfly-reality ponúka v zastúpení majiteľa na prenájom 2 izbový byt po kompletnej rekonštrukcii na Boskovičovej ulici.
BYT:
Boskovičová ulica
50 m2
2. poschodie
vybavená kuchyňa (chladnička, rúra, plynová varná doska, riady, poháre a príbory)
dispozičné riešenie: spálňa, obývačky, ku ...
700 €
Bratislava
831 01
831 01
1502 x
Označiť zlý inzerát Chybnú kategóriu Ohodnotiť užívateľa Zmazať/Upraviť/Topovať