NAD KOVANCOM 3 IZBOVÝ BYT, 2.NP, 79,06
- [6.11. 2025]Zmazať/ Upraviť/ Topovať






















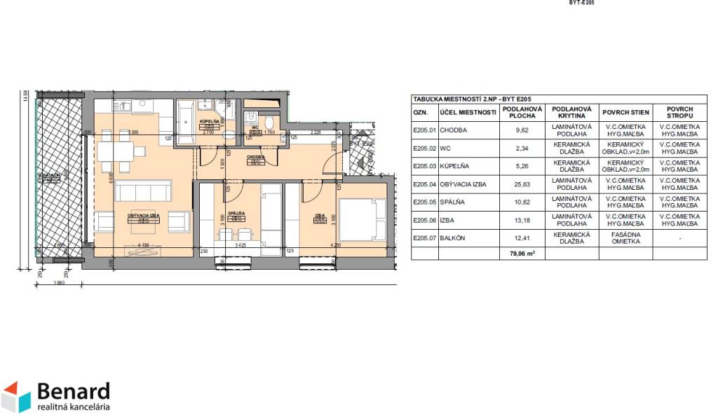
BYTOVÝ DOM NAD KOVANCOM „E“, 3 IZBOVÝ BYT č. 205
Pred niekoľkými rokmi zastavanej a už zabehnutej časti sídliska západ na Okružnej ul. v lokalite „Nad kovancom“ vznikne už v poradí 5. bytový dom, ktorý bude spoločne s ostatnými bytovými domami vytvárať harmonickú súhru a zároveň atraktívne a dostupné bývanie. V bytovom dome sa bude nachádzať 28 bytov, situovaných na šiestich poschodiach a na predaj je k dispozícii už len niekoľko bytov. Každý byt má balkón, resp. lodžiu, vlastnú pivnicu a parkovacie státie, ktoré nie každé je zdarma k bytu. V bytovom dome bude sa nachádzať 6 dvoj garáži a parkovacie státie bude k dispozícii vedľa bytového domu. Byty predávame v prevedení HOLOBYT, tzn. pripravený na dokončenie kúpeľne, WC, dlažieb, obkladov, podláh, dverí, kuchynskej linky a pod. Veľkou výhodou podľa jednotlivých bytov bude krásny výhľad na Ľubovniansky hrad, okolitú prírodu a Vysoké Tatry.
V tomto bytovom dome ponúkame na predaj 3 izbový byt nachádzajúci sa na 2. poschodí.
ZÁKLADNÉ INFORMÁCIE O BYTE:
podlahová plocha bytu je 66,65 m2;
rozloha balkóna 12,41 m2;
orientácia bytu je juhovýchod - juhozápad;
pivnica a parkovanie v cene;ň
Prevedenie Holobyt:
Okná plastové s izolačným trojsklom,
vchodové dvere protipožiarne plné,
hladký poter pripravený na pokládku podlahovej krytiny,
steny – omietnuté jadrovou omietkou s finálnou vyrovnávacou stierkou,
biele maľby stien a stropov, vykurovacie telesá – doskové radiátory alebo podlahové kúrenie,
kúrenie - vlastné vykurovanie, plynový kotol,
bytový elektrický rozvádzač, rozvody elektriny v miestnostiach ukončené zásuvkami a vypínačmi,
vývody vodovodu – teplá a studená voda v kuchyni, kúpeľni, WC,
vývody kanalizačných potrubí v kuchyni, kúpeľni a WC,
bytové ventily pre odstavenie vody, vývody zaslepené tzv. záslepkou a pripravené pre montáž batérií a „sifónov“,
lodžia, balkón - keramická dlažba protišmyková, izolované, spádované,
v bytoch zavedené dátové káble, káblová TV;
Bytový dom:
na prízemí garáže, pivnice;
výťah s prízemia, bezbariérový vstup;
zateplenie, rovná strecha;
parkovanie pri bytovom dome;
Začiatok výstavby: 3. kvartál 2025
Ukončenie výstavby: 4. kvartál 2027
Obytná plocha: 66.65m²
Celková rozloha: 79.06m²
Úžitková plocha: 66.65m²
Internet: optika
Kúpeľňa: áno
Vykurovanie: vlastné - plyn
Balkón: áno
Pivnica: áno
Výťah: áno
Parkovanie: vlastné vyhradené
Postavené z: Porotherm
Zariadenie: nezariadený
Zateplený objekt: áno
Káblová televízia: áno
Energetický certifikát: áno
Pripravené na výstavbu: vydané stavebné povolenie
Pred niekoľkými rokmi zastavanej a už zabehnutej časti sídliska západ na Okružnej ul. v lokalite „Nad kovancom“ vznikne už v poradí 5. bytový dom, ktorý bude spoločne s ostatnými bytovými domami vytvárať harmonickú súhru a zároveň atraktívne a dostupné bývanie. V bytovom dome sa bude nachádzať 28 bytov, situovaných na šiestich poschodiach a na predaj je k dispozícii už len niekoľko bytov. Každý byt má balkón, resp. lodžiu, vlastnú pivnicu a parkovacie státie, ktoré nie každé je zdarma k bytu. V bytovom dome bude sa nachádzať 6 dvoj garáži a parkovacie státie bude k dispozícii vedľa bytového domu. Byty predávame v prevedení HOLOBYT, tzn. pripravený na dokončenie kúpeľne, WC, dlažieb, obkladov, podláh, dverí, kuchynskej linky a pod. Veľkou výhodou podľa jednotlivých bytov bude krásny výhľad na Ľubovniansky hrad, okolitú prírodu a Vysoké Tatry.
V tomto bytovom dome ponúkame na predaj 3 izbový byt nachádzajúci sa na 2. poschodí.
ZÁKLADNÉ INFORMÁCIE O BYTE:
podlahová plocha bytu je 66,65 m2;
rozloha balkóna 12,41 m2;
orientácia bytu je juhovýchod - juhozápad;
pivnica a parkovanie v cene;ň
Prevedenie Holobyt:
Okná plastové s izolačným trojsklom,
vchodové dvere protipožiarne plné,
hladký poter pripravený na pokládku podlahovej krytiny,
steny – omietnuté jadrovou omietkou s finálnou vyrovnávacou stierkou,
biele maľby stien a stropov, vykurovacie telesá – doskové radiátory alebo podlahové kúrenie,
kúrenie - vlastné vykurovanie, plynový kotol,
bytový elektrický rozvádzač, rozvody elektriny v miestnostiach ukončené zásuvkami a vypínačmi,
vývody vodovodu – teplá a studená voda v kuchyni, kúpeľni, WC,
vývody kanalizačných potrubí v kuchyni, kúpeľni a WC,
bytové ventily pre odstavenie vody, vývody zaslepené tzv. záslepkou a pripravené pre montáž batérií a „sifónov“,
lodžia, balkón - keramická dlažba protišmyková, izolované, spádované,
v bytoch zavedené dátové káble, káblová TV;
Bytový dom:
na prízemí garáže, pivnice;
výťah s prízemia, bezbariérový vstup;
zateplenie, rovná strecha;
parkovanie pri bytovom dome;
Začiatok výstavby: 3. kvartál 2025
Ukončenie výstavby: 4. kvartál 2027
Obytná plocha: 66.65m²
Celková rozloha: 79.06m²
Úžitková plocha: 66.65m²
Internet: optika
Kúpeľňa: áno
Vykurovanie: vlastné - plyn
Balkón: áno
Pivnica: áno
Výťah: áno
Parkovanie: vlastné vyhradené
Postavené z: Porotherm
Zariadenie: nezariadený
Zateplený objekt: áno
Káblová televízia: áno
Energetický certifikát: áno
Pripravené na výstavbu: vydané stavebné povolenie
|
| |||||||||||||||||||||||||||||||
Kontaktovať inzerenta e-mailom
Kontaktovať e-mailom môže iba overený užívateľ.
Overenie je zadarmo.
Vaše telefónne číslo *
Kontaktovať e-mailom môže iba overený užívateľ.
Overenie je zadarmo.
Vaše telefónne číslo *
Podobné inzeráty
NA PREDAJ - Zrekonštruovaný 2-izbový byt - STARÁ ĽUBOVŇA - [7.11. 2025]Typ: 2-izbový byt
Obec: Stará Ľubovňa
NA PREDAJ Kompletne zrekonštruovaný 2-izbový byt v tichej lokalite plnej zelene
Ponúkame Vám na predaj vkusne zrekonštruovaný 2-izbový byt s výbornou dispozíciou a príjemnou atmosférou, nachádzajúci sa na 2. nadzemnom podlaží v obľúbenej a tichej lo ...
Dohodou
Stará Ľubovňa
064 01
064 01
13 x
Označiť zlý inzerát Chybnú kategóriu Ohodnotiť užívateľa Zmazať/Upraviť/Topovať
Na predaj–3-izbový byt vo výstavbe s terasou-Stará Ľubovňa - [7.11. 2025]Typ: 3-izbový byt
Obec: Stará Ľubovňa
Na predaj – 3-izbový byt vo výstavbe s veľkou terasou v Starej Ľubovni, Mýtna ulica
Ponúkame Vám moderné a komfortné bývanie v uzavretom areáli s prístupom len pre jeho obyvateľov. Byt sa nachádza na 3. poschodí (3/3) nového bytového domu.
Výmera spolu: 96 ...
Dohodou
Stará Ľubovňa
064 01
064 01
10 x
Označiť zlý inzerát Chybnú kategóriu Ohodnotiť užívateľa Zmazať/Upraviť/Topovať
NA PREDAJ 5 izbový byt v Starej Ľubovni - VO VÝSTAVBE - [7.11. 2025]Typ: 5 a viac izbový byt
Obec: Stará Ľubovňa
Vo výstavbe - priestranný 5-izbový mezonet s dvoma terasami a záhradou – Stará Ľubovňa, Mýtná ulica
Ponúkame na predaj výnimočný 5-izbový mezonetový byt s rozlohou 175,66 m², ktorý svojou veľkosťou a dispozíciou poskytuje komfort porovnateľný s rodin ...
Dohodou
Stará Ľubovňa
064 01
064 01
10 x
Označiť zlý inzerát Chybnú kategóriu Ohodnotiť užívateľa Zmazať/Upraviť/Topovať
NAD KOVANCOM, 3 IZBOVÝ BYT, 2.NP, 85,4m2; - [6.11. 2025]BYTOVÝ DOM NAD KOVANCOM „E“, 3 IZBOVÝ BYT č. 202
Pred niekoľkými rokmi zastavanej a už zabehnutej časti sídliska západ na Okružnej ul. v lokalite „Nad kovancom“ vznikne už v poradí 5. bytový dom, ktorý bude spoločne s ostatnými bytovými domami vytvárať harmonickú súhru a zároveň atraktívne a do ...
193 756 €
Stará Ľubovňa
064 01
064 01
297 x
Označiť zlý inzerát Chybnú kategóriu Ohodnotiť užívateľa Zmazať/Upraviť/Topovať
NAD KOVANCOM 3 IZBOVÝ BYT, 4.NP, 85,4m2; - [6.11. 2025]BYTOVÝ DOM NAD KOVANCOM „E“, 3 IZBOVÝ BYT č. 402
Pred niekoľkými rokmi zastavanej a už zabehnutej časti sídliska západ na Okružnej ul. v lokalite „Nad kovancom“ vznikne už v poradí 5. bytový dom, ktorý bude spoločne s ostatnými bytovými domami vytvárať harmonickú súhru a zároveň atraktívne a do ...
197 672 €
Stará Ľubovňa
064 01
064 01
277 x
Označiť zlý inzerát Chybnú kategóriu Ohodnotiť užívateľa Zmazať/Upraviť/Topovať
NAD KOVANCOM 3 IZBOVÝ BYT, 1.NP, 136,05m2; - [6.11. 2025]BYTOVÝ DOM NAD KOVANCOM „E“, 3 IZBOVÝ BYT č. 104
Pred niekoľkými rokmi zastavanej a už zabehnutej časti sídliska západ na Okružnej ul. v lokalite „Nad kovancom“ vznikne už v poradí 5. bytový dom, ktorý bude spoločne s ostatnými bytovými domami vytvárať harmonickú súhru a zároveň atraktívne a do ...
207 480 €
Stará Ľubovňa
064 01
064 01
277 x
Označiť zlý inzerát Chybnú kategóriu Ohodnotiť užívateľa Zmazať/Upraviť/Topovať
EXKLUZÍVNY 3-IZBOVÝ MEZONET, STARÁ ĽUBOVŇA, POPRADSKÁ ULICA - TOP - [7.11. 2025]• Ponúkam na predaj krásny a priestranný 3-izbový mezonet s lodžiou o výmere 80,07m2 na ulici Popradská v Starej Ľubovni
• Byt sa nachádza v kompletne zrekonštruovanej ekologickej budovej
• Mezonetový byt sa nachádza na druhom a tretom poschodí s výťahom.
• Byt sa predáva v stave holo ...
Dohodou
Stará Ľubovňa
064 01
064 01
376 x
Označiť zlý inzerát Chybnú kategóriu Ohodnotiť užívateľa Zmazať/Upraviť/Topovať
MODERNÉ BYTY V CENTRE S NÁDHERNÝM VÝHĽADOM - [6.11. 2025]EXKLUZÍVNE v ponuke realitnej kancelárie BENARD ponúkame na predaj nadštandardné nové byty v bytových domoch v centre mesta. Každý s 3 bytovými jednotkami. V ponuke sú priestranné 3-izbové byty a 4-izbové mezonetové byty s veľkými balkónmi. Súčasťou objektu sú aj pivnice, vnútorné garážové park ...
Dohodou
Stará Ľubovňa
064 01
064 01
305 x
Označiť zlý inzerát Chybnú kategóriu Ohodnotiť užívateľa Zmazať/Upraviť/Topovať
AXIS REAL | 3-izbový MEZONET, Stará Ľubovňa, Popradská ul. - [4.11. 2025]360° VIRTUÁLNU PREHLIADKU A 3D PÔDORYS NEHNUTEĽNOSTI NÁJDETE NA: https://info.axisreal.sk/XR
POPIS BYTU:
Realitná kancelária AXIS REAL vám exkluzívne ponúka na predaj PRIESTRANNÝ 3-izbový MEZONETOVÝ byt s LODŽIOU a VLASTNÝM PARKOVACÍM MIESTOM v lokalite Stará Ľubovňa, Popradská ulica. Nachádza s ...
144 900 €
Stará Ľubovňa
064 01
064 01
235 x
Označiť zlý inzerát Chybnú kategóriu Ohodnotiť užívateľa Zmazať/Upraviť/Topovať
Priestranný 3-izbový byt s výhľadom na Vysoké Tatry - [4.11. 2025]Ponúkame na predaj krásny, svetlý trojizbový byt v tichej lokalite na sídlisku Západ v Starej Ľubovni. Byt sa nachádza na najvyššom 5. poschodí bytového domu, čo zaručuje maximálne súkromie a pokojné bývanie.
Dispozícia a orientácia bytu:
-Spálňa a detská izba sú orientované na severozápad s nád ...
167 900 €
Stará Ľubovňa
064 01
064 01
276 x
Označiť zlý inzerát Chybnú kategóriu Ohodnotiť užívateľa Zmazať/Upraviť/Topovať

