NOVOSTAVBA ( PROJEKT) čoskoro vo výstavbe Bajč
- [5.11. 2025]Zmazať/ Upraviť/ Topovať



























NOVINKA ! Nízkoenergetická novostavba - rodinný dom vo výstavbe na kľúč !!!
Túžiš po krásnej, modernej novostavbe s nízkymi réžiami ?
Tak si pozri našu ponuku !
Nakoľko sú ešte k dispozícii voľné pozemky je možnosť si vybrať RD podľa vlastných predstáv !!!
Máš možnosť si zarezervovať moderný rodinný dom a tak máš možnosť si vybrať vnútorné dvere, podlahu a kúpeľňu podľa vlastného vkusu !!!
Henrieta Nemšovská - KN Reality Vám ponúka na predaj 4 izbovú novostavbu v obci Bajč. Momentálny stav - čoskoro vo výstavbe. Termín dokončenia, kolaudácie je cca December 2025. Vybavenie domu štandard - na kľúč !!!
Rodinný dom je postavený s vysokokvalitných materiálov. Použitý materiál : tehla, strešná kritina je škridla MEDITERRAN ECO, okná plastové trojsklo.
Rozloha pozemku je 754 m2. Pozemok je pekný slnečný , je z troch strán ohraničený s betonovým plotom. Exteriér domu skrášľuje zámková dlažba. Zastavaná plocha : 230 m2, úžitková plocha : 180 m2 + terasa 33 m2. Rodinný dom disponuje s garážou. Nachádza sa v novej štvrti obce.
Inžinierske siete : elektrina, verejný vodovod, kanalizácia + vodomerná šachta ( plyn nie je).
Kúrenie je podlahové ( tepelné čerpadlo) alebo elektrické , predpríprava krbu, žalúzie na okná. Dom aj strop je zateplený.
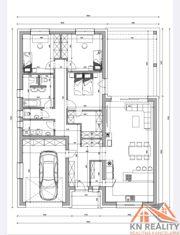
Dispozičné riešenie :
- predsieň
- kuchyňa s obývačkou, vstup na terasu
- spálňa
- 2 x detská izba
- kúpeľňa s vaňou, sprchovacím kútom, toaleta
- samostatná toaleta s umývadlom
- technická miestnosť
- špajza
- garáž
Cena nehnuteľnosti : 215 000 eur a zahrňa všetky právne a katastrálne poplatky, bezplatné poradenstvo, hypotekárny úver.
Občianska vybavenosť obce : Mš, Zš, pošta, knižnica, ihrisko, obchody potravinárskeho a nepotravinárskeho pôvodu, pohostinstvo, kanalizácia, vlaková zastávka.
Obec Bajč sa nachádza 22 km od Komárna , 8 km od Nových Zámkov a 6 km od Hurbanova.
Ak Vás ponuka zaujala rada Vám poskytnem dalšie informácie a obhliadku na tel.č. 0918 107 570
Teším sa na Vás !!!
Dodatok k cene: , vrátane provízie
Zastavaná plocha: 230m²
Obytná plocha: 180m²
Celková rozloha: 754m²
Úžitková plocha: 180m²
Vlastníctvo: osobné
Stav: pôvodný
Odvoz odpadu: áno
Voda: verejný vodovod
Plyn: nie
Kanalizácia: áno
Kúpeľňa: vaňa a sprchovací kút
Vykurovanie: vlastné - elektrické
Terasa: áno
Garáž: áno
Inžinierske siete: áno
Postavené z: tehla
Zateplený objekt: áno
Strecha: pôvodná
Energetický certifikát: A
Predzáhradka: áno
Okná: plastové
Terén: rovina
Prístupová cesta: betónová cesta
Pripravené na výstavbu: vydané stavebné povolenie
Túžiš po krásnej, modernej novostavbe s nízkymi réžiami ?
Tak si pozri našu ponuku !
Nakoľko sú ešte k dispozícii voľné pozemky je možnosť si vybrať RD podľa vlastných predstáv !!!
Máš možnosť si zarezervovať moderný rodinný dom a tak máš možnosť si vybrať vnútorné dvere, podlahu a kúpeľňu podľa vlastného vkusu !!!
Henrieta Nemšovská - KN Reality Vám ponúka na predaj 4 izbovú novostavbu v obci Bajč. Momentálny stav - čoskoro vo výstavbe. Termín dokončenia, kolaudácie je cca December 2025. Vybavenie domu štandard - na kľúč !!!
Rodinný dom je postavený s vysokokvalitných materiálov. Použitý materiál : tehla, strešná kritina je škridla MEDITERRAN ECO, okná plastové trojsklo.
Rozloha pozemku je 754 m2. Pozemok je pekný slnečný , je z troch strán ohraničený s betonovým plotom. Exteriér domu skrášľuje zámková dlažba. Zastavaná plocha : 230 m2, úžitková plocha : 180 m2 + terasa 33 m2. Rodinný dom disponuje s garážou. Nachádza sa v novej štvrti obce.
Inžinierske siete : elektrina, verejný vodovod, kanalizácia + vodomerná šachta ( plyn nie je).
Kúrenie je podlahové ( tepelné čerpadlo) alebo elektrické , predpríprava krbu, žalúzie na okná. Dom aj strop je zateplený.
Dispozičné riešenie :
- predsieň
- kuchyňa s obývačkou, vstup na terasu
- spálňa
- 2 x detská izba
- kúpeľňa s vaňou, sprchovacím kútom, toaleta
- samostatná toaleta s umývadlom
- technická miestnosť
- špajza
- garáž
Cena nehnuteľnosti : 215 000 eur a zahrňa všetky právne a katastrálne poplatky, bezplatné poradenstvo, hypotekárny úver.
Občianska vybavenosť obce : Mš, Zš, pošta, knižnica, ihrisko, obchody potravinárskeho a nepotravinárskeho pôvodu, pohostinstvo, kanalizácia, vlaková zastávka.
Obec Bajč sa nachádza 22 km od Komárna , 8 km od Nových Zámkov a 6 km od Hurbanova.
Ak Vás ponuka zaujala rada Vám poskytnem dalšie informácie a obhliadku na tel.č. 0918 107 570
Teším sa na Vás !!!
Dodatok k cene: , vrátane provízie
Zastavaná plocha: 230m²
Obytná plocha: 180m²
Celková rozloha: 754m²
Úžitková plocha: 180m²
Vlastníctvo: osobné
Stav: pôvodný
Odvoz odpadu: áno
Voda: verejný vodovod
Plyn: nie
Kanalizácia: áno
Kúpeľňa: vaňa a sprchovací kút
Vykurovanie: vlastné - elektrické
Terasa: áno
Garáž: áno
Inžinierske siete: áno
Postavené z: tehla
Zateplený objekt: áno
Strecha: pôvodná
Energetický certifikát: A
Predzáhradka: áno
Okná: plastové
Terén: rovina
Prístupová cesta: betónová cesta
Pripravené na výstavbu: vydané stavebné povolenie
|
| |||||||||||||||||||||||||||||||
Kontaktovať inzerenta e-mailom
Kontaktovať e-mailom môže iba overený užívateľ.
Overenie je zadarmo.
Vaše telefónne číslo *
Kontaktovať e-mailom môže iba overený užívateľ.
Overenie je zadarmo.
Vaše telefónne číslo *






