PREDAJ, pozemok so stavebným povolením na dvojdom, Modra, Ma
- [5.11. 2025]Zmazať/ Upraviť/ Topovať








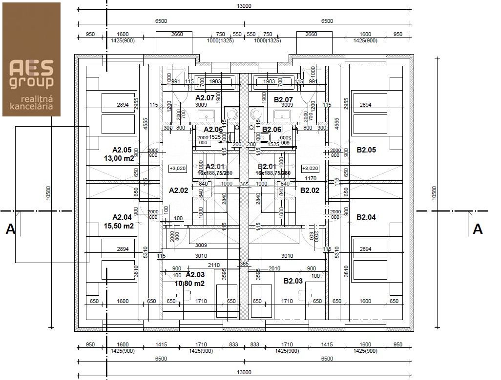
Ponúkame Vám na predaj stavebný pozemok 551 m2 s právoplatným stavebným povolením na rodiný dom s 2 bytovými jednotkami.
Výmera pozemku 551 m2.
Stavebné povolenie: Rodinný dom s 2 samostatnými bytovými jednotkami
Bytové jednotky: 4 izbové, mezonetové s výmerou 112 m2
Dispozičné riešenie:
1NP - zádverie, WC, šatník s technickou miestnosťou, chodba, kuchyňa, komora, obývacia izba s jedálňou. Denná časť (kuchyňa, jedáleň a obývacia izba) má výmeru 37 m2. Z obývacej izby je prístup do záhrady.
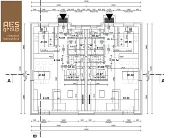
2NP – chodba, 3x izba (15,73 m2, 13,49 m2 a 10,39 m2), kúpeľňa a samostatné WC.
Cena: 165.000 EUR (pozemok, projektová dokumentácia, postúpenie stavebného povolenia, uhradený poplatok za rozvoj).
Kontakt: Andrej Ščasný 0948 484 235
Výmera pozemku 551 m2.
Stavebné povolenie: Rodinný dom s 2 samostatnými bytovými jednotkami
Bytové jednotky: 4 izbové, mezonetové s výmerou 112 m2
Dispozičné riešenie:
1NP - zádverie, WC, šatník s technickou miestnosťou, chodba, kuchyňa, komora, obývacia izba s jedálňou. Denná časť (kuchyňa, jedáleň a obývacia izba) má výmeru 37 m2. Z obývacej izby je prístup do záhrady.
2NP – chodba, 3x izba (15,73 m2, 13,49 m2 a 10,39 m2), kúpeľňa a samostatné WC.
Cena: 165.000 EUR (pozemok, projektová dokumentácia, postúpenie stavebného povolenia, uhradený poplatok za rozvoj).
Kontakt: Andrej Ščasný 0948 484 235
|
| |||||||||||||||||||||||||||||||
Kontaktovať inzerenta e-mailom
Kontaktovať e-mailom môže iba overený užívateľ.
Overenie je zadarmo.
Vaše telefónne číslo *
Kontaktovať e-mailom môže iba overený užívateľ.
Overenie je zadarmo.
Vaše telefónne číslo *