🏡 2-izbový byt prenájom Furča, Dargovských hrdinov, Košice
- [5.11. 2025]Zmazať/ Upraviť/ Topovať



























Ak hľadáš 2-izbák v Košiciach, kde to máš kúsok do centra, no zároveň máš kľud a výhľad, tu si doma.
Na Furči, na ulici Na hore, ťa čaká tento priestranný a svetlý byt, ktorý má všetko, čo potrebuješ – a ešte aj balkón s mestom pod nohami.
🧱 Základné info
Byt je na 3. poschodí z 3 (bez výťahu, ale za to s kardio tréningom a zaslúženým výhľadom).
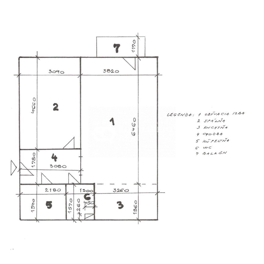
Má 54 m² + 2 m² balkón, okná na juh a západ, čiže slnko ťa hladí celý deň.
Keď ho bude v lete príliš, zachráni ťa klimatizácia v obývačke.
Byt je v novostavbe, aktuálne čerstvo vymaľovaný, zariadený (pred 5 rokmi) moderne a prakticky – nič ti nebude chýbať.
🛋️ Ako to tu vyzerá
- Spálňa – manželská posteľ, nočné stolíky a veľká vstavaná skriňa, kam schováš aj pol života.
- Obývačka s kuchyňou – gauč, konferenčný stolík, písací stôl, TV skrinka a jedálenský kút.
- Kuchyňa – plne vybavená: chladnička s mrazničkou, indukčná varná doska, elektrická rúra, mikrovlnka a digestor.
- Kúpeľňa – vaňa, umývadlo so skrinkou, podsvietené zrkadlo, práčka.
- WC – samostatné, dokonca aj s druhým umývadlom so skrinkou.
- Chodba – botník, skrinka so šuflíkmi a vešiak… všetko po ruke a tiež v pokoji za bezpečnostnými dverami.
- Balkón – miesto na rannú kávu, alebo večerné “ah, konečne kľud”.
👥 Pre koho
Ideálny pre jednotlivca alebo pár, ktorí milujú spev vtákov a romantické západy slnka nad mestom.
Bez zvieratiek (teda rybu 🐠 v akvárku by sme zvážili 😉).
🚍 Okolie a vybavenosť
MHD – 7 minút pešo
Fresh – 5 minút pešo
Lidl a Shopbox – 3 minúty autom
Centrum mesta / AUPARK – 6 minút autom
Takže: pokojná ulica, všetko nablízku, ale bez ruchu a chaosu. Plus prechádzky v blízkej záhradkárskej oblasti pre reset hlavy.
💶 Cena
- Nájom: 750 €/mesiac (vrátane energií, internetu a TV pripojenia)
- Vratný depozit: 900 € (môžeš dať aj na 2-krát)
- Voľný od: 6.11.2025
- Preferovaná doba nájmu: 1 rok
- Prenajíma sa zariadený a bez doplnkov - plyšákov si dones vlastných 😉
Ak ti byt padol do oka, ozvi sa, príď sa pozrieť a možno odtiaľ už neodídeš. Wifi plne fičí, tak ti stačí len taška s vecami. 🙃
Káva na balkóne už čaká. ☕
# 2izb dvojizbak dvojizbovy zariadeny Kosice furca
Na Furči, na ulici Na hore, ťa čaká tento priestranný a svetlý byt, ktorý má všetko, čo potrebuješ – a ešte aj balkón s mestom pod nohami.
🧱 Základné info
Byt je na 3. poschodí z 3 (bez výťahu, ale za to s kardio tréningom a zaslúženým výhľadom).
Má 54 m² + 2 m² balkón, okná na juh a západ, čiže slnko ťa hladí celý deň.
Keď ho bude v lete príliš, zachráni ťa klimatizácia v obývačke.
Byt je v novostavbe, aktuálne čerstvo vymaľovaný, zariadený (pred 5 rokmi) moderne a prakticky – nič ti nebude chýbať.
🛋️ Ako to tu vyzerá
- Spálňa – manželská posteľ, nočné stolíky a veľká vstavaná skriňa, kam schováš aj pol života.
- Obývačka s kuchyňou – gauč, konferenčný stolík, písací stôl, TV skrinka a jedálenský kút.
- Kuchyňa – plne vybavená: chladnička s mrazničkou, indukčná varná doska, elektrická rúra, mikrovlnka a digestor.
- Kúpeľňa – vaňa, umývadlo so skrinkou, podsvietené zrkadlo, práčka.
- WC – samostatné, dokonca aj s druhým umývadlom so skrinkou.
- Chodba – botník, skrinka so šuflíkmi a vešiak… všetko po ruke a tiež v pokoji za bezpečnostnými dverami.
- Balkón – miesto na rannú kávu, alebo večerné “ah, konečne kľud”.
👥 Pre koho
Ideálny pre jednotlivca alebo pár, ktorí milujú spev vtákov a romantické západy slnka nad mestom.
Bez zvieratiek (teda rybu 🐠 v akvárku by sme zvážili 😉).
🚍 Okolie a vybavenosť
MHD – 7 minút pešo
Fresh – 5 minút pešo
Lidl a Shopbox – 3 minúty autom
Centrum mesta / AUPARK – 6 minút autom
Takže: pokojná ulica, všetko nablízku, ale bez ruchu a chaosu. Plus prechádzky v blízkej záhradkárskej oblasti pre reset hlavy.
💶 Cena
- Nájom: 750 €/mesiac (vrátane energií, internetu a TV pripojenia)
- Vratný depozit: 900 € (môžeš dať aj na 2-krát)
- Voľný od: 6.11.2025
- Preferovaná doba nájmu: 1 rok
- Prenajíma sa zariadený a bez doplnkov - plyšákov si dones vlastných 😉
Ak ti byt padol do oka, ozvi sa, príď sa pozrieť a možno odtiaľ už neodídeš. Wifi plne fičí, tak ti stačí len taška s vecami. 🙃
Káva na balkóne už čaká. ☕
# 2izb dvojizbak dvojizbovy zariadeny Kosice furca
|
| |||||||||||||||||||||||||||||||
Kontaktovať inzerenta e-mailom
Kontaktovať e-mailom môže iba overený užívateľ.
Overenie je zadarmo.
Vaše telefónne číslo *
Kontaktovať e-mailom môže iba overený užívateľ.
Overenie je zadarmo.
Vaše telefónne číslo *






