Pozemok s rozostavanou stavbou pre 12 bytov pri Senici
- [4.11. 2025]Zmazať/ Upraviť/ Topovať












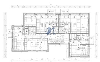
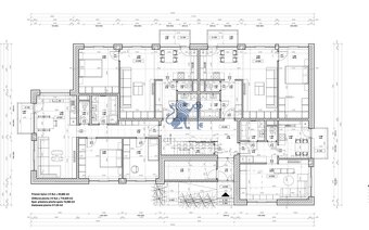
Ponúkame na predaj zaujímavý pozemok s právoplatným stavebným povolením a začatou stavbou bytového domu v tesnej blízkosti okresného mesta Senica. Jedná sa celkovo o 12 bytov, 1 až 3- izbové dispozície v centre susednej obci Koválov.
- Postavené základy a 1.NP + materiál pre 2.NP.
- Celková výmera pozemku je 1175 m2
- Úžitková plocha bytov spolu 718,6 m2
- 3 rovnaké podlažia, na každom je 1x 1-izb., 2x 2-izb. a 1x 3-izb. byt
- Bytový dom ráta so 17 vonkajšími park. miestami
- Napojenie na verejný vodovod, kúrenie elektrina/ tep. čerpadlo, odkanalizovanie pomocou žumpy
- Možnosť dokončenia stavby do štádia holobyt aj s vonkajšími plochami do 500.000 EUR bez DPH.
Cena pozemku, projektu a rozostavanej stavby s materiálom je 320.000EUR + DPH. Byty sú navrhnuté, aby spĺňali možnosť financovania cez ŠFRB.
Pre viac informácií nás neváhajte kontaktovať.
Celková rozloha: 1175m²
Rozloha pozemku: 1175m²
El. napätie: 230V
Plyn: áno
Kanalizácia: žumpa
Terén: rovina
Prístupová cesta: asfaltová cesta
Pripravené na výstavbu: vydané stavebné povolenie
- Postavené základy a 1.NP + materiál pre 2.NP.
- Celková výmera pozemku je 1175 m2
- Úžitková plocha bytov spolu 718,6 m2
- 3 rovnaké podlažia, na každom je 1x 1-izb., 2x 2-izb. a 1x 3-izb. byt
- Bytový dom ráta so 17 vonkajšími park. miestami
- Napojenie na verejný vodovod, kúrenie elektrina/ tep. čerpadlo, odkanalizovanie pomocou žumpy
- Možnosť dokončenia stavby do štádia holobyt aj s vonkajšími plochami do 500.000 EUR bez DPH.
Cena pozemku, projektu a rozostavanej stavby s materiálom je 320.000EUR + DPH. Byty sú navrhnuté, aby spĺňali možnosť financovania cez ŠFRB.
Pre viac informácií nás neváhajte kontaktovať.
Celková rozloha: 1175m²
Rozloha pozemku: 1175m²
El. napätie: 230V
Plyn: áno
Kanalizácia: žumpa
Terén: rovina
Prístupová cesta: asfaltová cesta
Pripravené na výstavbu: vydané stavebné povolenie
|
| |||||||||||||||||||||||||||||||
Kontaktovať inzerenta e-mailom
Kontaktovať e-mailom môže iba overený užívateľ.
Overenie je zadarmo.
Vaše telefónne číslo *
Kontaktovať e-mailom môže iba overený užívateľ.
Overenie je zadarmo.
Vaše telefónne číslo *