Rodinné domy, obec Danišovce, okr. Spišská Nová Ves
- [4.11. 2025]Zmazať/ Upraviť/ Topovať






























Alphareality.sk ponúka na predaj novostavby dvoch rodinných dvojdomov, obec Danišovce, okres Spišská Nová Ves. Každý dvojdom pozostáva z jedného 3-izbového a jedného 4-izbového rodinného domu s prislúchajúcim pozemkom.
3i rodinný dom (s možnosťou dispozičnej úpravy na 4i):
-úžitková plocha: 100,70m2 + pozemok cca 85m2 (upresní geometrický plán),
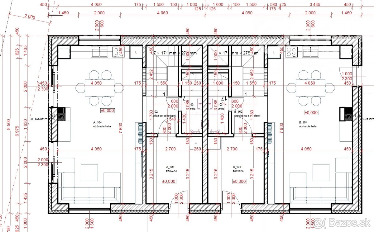
-1. NP: zádverie, chodba so schodiskom na poschodie, kuchyňa spojená s jedálňou a obývacou miestnosťou so vstupom na terasu, kúpeľňa s WC,
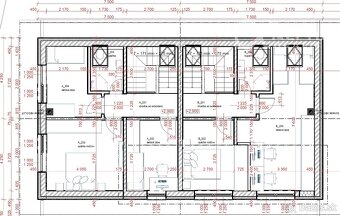
-2. NP: 2 samostatné obytné miestnosti, kúpeľňa s WC, chodba,
4i rodinný dom:
-úžitková plocha: 100,31m2, pozemok cca 85m2 (upresní geometrický plán),
-1. NP: zádverie, chodba so schodiskom na poschodie, kuchyňa spojená s jedálňou a obývacou miestnosťou s 2 vstupmi na terasu, kúpeľňa s WC,
-2. NP: 3 samostatné obytné miestnosti, kúpeľňa s WC, chodba,
-vybavenie: kuchynská linka so zabudovanými spotrebičmi (indukčná varná doska, teplovzdušná rúra, mikrovlnná rúra, odsávač pár, chladnička s mrazničkou, umývačka riadu), interiérove dvere s obložkami, komplet sanita,
-stavebný materiál: tehlobloky LEIER 300mm, zateplenie 150mm,
-strešná krytina: plechová,
-okná: plastové s izolačným trojsklom,
-podlahy: laminátové v kombinácii s keramickou dlažbou,
-steny: omietky s bielou hygienickou maľbou,
-vykurovanie: elektrické podlahové, ako doplnkové krb,
-ohrev TUV: elektrický bojler,
-tepelnotechnické zabezpečenie: rekuperácia, klimatizačná jednotka s možnosťou vykurovania,
-napojenie na inžinierske siete: elektrická energia, verejná kanalizácia, obecný vodovod,
-parkovanie: vlastné, v uzavretom areáli,
-plánovaný termín dokončenia: október 2025,
-energetický certifikát: A0 (bude vydaný pred kolaudáciou).
Cena každého rodinného domu vrátane vnútorného vybavenia je 239.000,- € (vrátane DPH) a zahŕňa všetky poplatky spojené s prevodom vlastníckeho práva. Právny servis zabezpečujeme prostredníctvom advokátskej kancelárie. V prípade záujmu Vám ponúkame bezplatné finančné poradenstvo naším odborníkom spojené s financovaním nehnuteľnosti. Pre viac informácií a prípadnú obhliadku nás neváhajte kontaktovať na tel. č.: 0905 231 272.
3i rodinný dom (s možnosťou dispozičnej úpravy na 4i):
-úžitková plocha: 100,70m2 + pozemok cca 85m2 (upresní geometrický plán),
-1. NP: zádverie, chodba so schodiskom na poschodie, kuchyňa spojená s jedálňou a obývacou miestnosťou so vstupom na terasu, kúpeľňa s WC,
-2. NP: 2 samostatné obytné miestnosti, kúpeľňa s WC, chodba,
4i rodinný dom:
-úžitková plocha: 100,31m2, pozemok cca 85m2 (upresní geometrický plán),
-1. NP: zádverie, chodba so schodiskom na poschodie, kuchyňa spojená s jedálňou a obývacou miestnosťou s 2 vstupmi na terasu, kúpeľňa s WC,
-2. NP: 3 samostatné obytné miestnosti, kúpeľňa s WC, chodba,
-vybavenie: kuchynská linka so zabudovanými spotrebičmi (indukčná varná doska, teplovzdušná rúra, mikrovlnná rúra, odsávač pár, chladnička s mrazničkou, umývačka riadu), interiérove dvere s obložkami, komplet sanita,
-stavebný materiál: tehlobloky LEIER 300mm, zateplenie 150mm,
-strešná krytina: plechová,
-okná: plastové s izolačným trojsklom,
-podlahy: laminátové v kombinácii s keramickou dlažbou,
-steny: omietky s bielou hygienickou maľbou,
-vykurovanie: elektrické podlahové, ako doplnkové krb,
-ohrev TUV: elektrický bojler,
-tepelnotechnické zabezpečenie: rekuperácia, klimatizačná jednotka s možnosťou vykurovania,
-napojenie na inžinierske siete: elektrická energia, verejná kanalizácia, obecný vodovod,
-parkovanie: vlastné, v uzavretom areáli,
-plánovaný termín dokončenia: október 2025,
-energetický certifikát: A0 (bude vydaný pred kolaudáciou).
Cena každého rodinného domu vrátane vnútorného vybavenia je 239.000,- € (vrátane DPH) a zahŕňa všetky poplatky spojené s prevodom vlastníckeho práva. Právny servis zabezpečujeme prostredníctvom advokátskej kancelárie. V prípade záujmu Vám ponúkame bezplatné finančné poradenstvo naším odborníkom spojené s financovaním nehnuteľnosti. Pre viac informácií a prípadnú obhliadku nás neváhajte kontaktovať na tel. č.: 0905 231 272.
|
| |||||||||||||||||||||||||||||||
Kontaktovať inzerenta e-mailom
Kontaktovať e-mailom môže iba overený užívateľ.
Overenie je zadarmo.
Vaše telefónne číslo *
Kontaktovať e-mailom môže iba overený užívateľ.
Overenie je zadarmo.
Vaše telefónne číslo *









