Na predaj rodinný dom v obci Bruty
- [4.11. 2025]Zmazať/ Upraviť/ Topovať












Na predaj rodinný dom v obci Bruty.
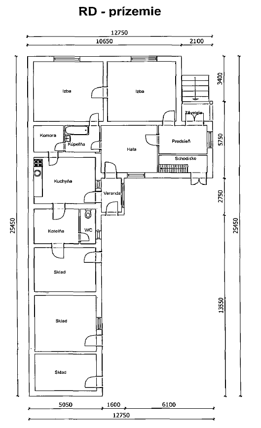
Dispozičné riešenie pozostáva z:
vstupná miestnosť 2x izba, kuchyňa, komora, kúpeľňa, kotolňa a skladovacie miestnosti v zadnej časti domu.
Na pozemku sa nachádza samostatne stojaca garáž. Pozemok je o celkovej výmere 1482m2.
V cene je zahrnutý kompletný právny servis v podobe vypracovania kúpnych zmlúv, vkladu do katastra a poplatkov s tým spojených.
Dispozičné riešenie pozostáva z:
vstupná miestnosť 2x izba, kuchyňa, komora, kúpeľňa, kotolňa a skladovacie miestnosti v zadnej časti domu.
Na pozemku sa nachádza samostatne stojaca garáž. Pozemok je o celkovej výmere 1482m2.
V cene je zahrnutý kompletný právny servis v podobe vypracovania kúpnych zmlúv, vkladu do katastra a poplatkov s tým spojených.
|
| |||||||||||||||||||||||||||||||
Kontaktovať inzerenta e-mailom
Kontaktovať e-mailom môže iba overený užívateľ.
Overenie je zadarmo.
Vaše telefónne číslo *
Kontaktovať e-mailom môže iba overený užívateľ.
Overenie je zadarmo.
Vaše telefónne číslo *