218 m2 na prízemí, vhodné na obchod, služby, sklady Prešov-
- TOP - [12.11. 2025]Zmazať/ Upraviť/ Topovať














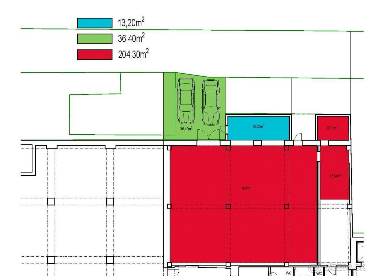
Ponúkame na dlhodobý prenájom prízemné priestory o výmere 218 m2 + vonkajšie plochy o výmere 36 m2 na Petrovianskej ulici v Prešove. Lokalite má výborné napojenie na diaľničné úseky a dobrú dostupnosť pre vašich budúcich klientov a odberateľov.
V priestoroch je leštený priemyselný podlahový betón, nová otváracia brána /výška 2,5 m/, nová elektroinštalácia, nová kancelária s novou fasádou budovy. Podľa požiadaviek, je možné ešte upraviť priestory pre zamestnancov, toalety, šatňu a podobne.
Cena je 4,50 eur/m2 + DPH a energie. Pri platbe kvartálovo dohoda o zľave. Viac informácii pri obhliadke.
V priestoroch je leštený priemyselný podlahový betón, nová otváracia brána /výška 2,5 m/, nová elektroinštalácia, nová kancelária s novou fasádou budovy. Podľa požiadaviek, je možné ešte upraviť priestory pre zamestnancov, toalety, šatňu a podobne.
Cena je 4,50 eur/m2 + DPH a energie. Pri platbe kvartálovo dohoda o zľave. Viac informácii pri obhliadke.
|
| |||||||||||||||||||||||||||||||
Kontaktovať inzerenta e-mailom
Kontaktovať e-mailom môže iba overený užívateľ.
Overenie je zadarmo.
Vaše telefónne číslo *
Kontaktovať e-mailom môže iba overený užívateľ.
Overenie je zadarmo.
Vaše telefónne číslo *