Na predaj novostavba RD v obci Spišský Hrhov.
- [3.11. 2025]Zmazať/ Upraviť/ Topovať




















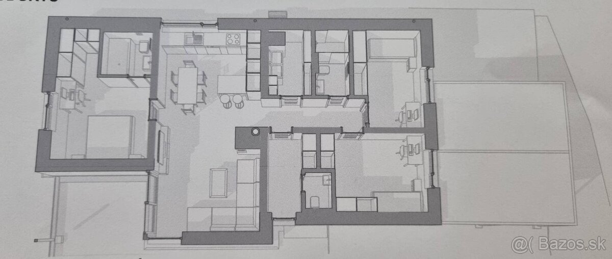
V projekte Vám momentálne ponúkame 3 samostatne stojace RD. Výstavbu domov si môžete vybrať na 3 pozemkoch s výmerou 532m2, 560m2, 598m2. Domy budú predávané v stave skolaudovaný holodom.
Štandard domov:
1. V cene domu je zahrnuté tepelné čerpadlo a príprava na fotovoltaicke panely.
2. Podlahové kúrenie – súčasťou každej izby je podlahové kúrenie + ovládanie termostatu a tak si môžete teplotu nastavovať podľa potreby.
3. Energetický certifikát – projekt je navrhnutý tak, aby spĺňal potrebnú energetickú normu A0 a v kombinácii s tepelným čerpadlom a fotovoltaickými panelmi Vám tak ponúka minimálne mesačné výdavky za energiu
4. Retenčná nádrž – Nadbytočnú dažďovú vodu sme vyriešili za vás a na pozemku sme zabudovali potrebnú retenčnú nádrž.
5. Príprava na osadenie krbovej piecky, krbu a komín je súčasťou ceny.
6. Dom v stave zateplený, fasádna omietka s farbou.
7.Vnútorné omietky a prvý hygienický náter.
8.Kompletná realizácia anhydritových poterov, sadrokartónové stropy
9. Okná a dvere vo farbe antracit.
10. Elektro inštalácia vypínače , zástrčky….
11. Výhoda je železobetónová strecha .
V prípade dohody sa dá stavba realizovať do finálnej podoby ako je interiér , exteriér za doplatok.
Jeden rodinný dom je už skolaudovaný
O projekte:
Vďaka blízkemu privádzaču na diaľnicu D1 bude vaše každodenné cestovanie za prácou alebo relaxom pohodlnejšie a dostupnejšie. Krajské i okresné mestá sú od oblasti vzdialené pár kilometrov.
Prostredie obklopené zeleňou, lúkami a lesmi prináša mnoho príležitostí nielen na turistiku, ale i cyklistiku či prechádzky s rodinou. Zároveň sa v blízkom okolí nachádzajú aj viaceré lyžiarske strediská, kde si tak na svoje prídu aj lyžiari.
Pre bližšie informácie nás neváhajte kontaktovať. Cena zahŕňa pozemok, skolaudovaný holodom.
Štandard domov:
1. V cene domu je zahrnuté tepelné čerpadlo a príprava na fotovoltaicke panely.
2. Podlahové kúrenie – súčasťou každej izby je podlahové kúrenie + ovládanie termostatu a tak si môžete teplotu nastavovať podľa potreby.
3. Energetický certifikát – projekt je navrhnutý tak, aby spĺňal potrebnú energetickú normu A0 a v kombinácii s tepelným čerpadlom a fotovoltaickými panelmi Vám tak ponúka minimálne mesačné výdavky za energiu
4. Retenčná nádrž – Nadbytočnú dažďovú vodu sme vyriešili za vás a na pozemku sme zabudovali potrebnú retenčnú nádrž.
5. Príprava na osadenie krbovej piecky, krbu a komín je súčasťou ceny.
6. Dom v stave zateplený, fasádna omietka s farbou.
7.Vnútorné omietky a prvý hygienický náter.
8.Kompletná realizácia anhydritových poterov, sadrokartónové stropy
9. Okná a dvere vo farbe antracit.
10. Elektro inštalácia vypínače , zástrčky….
11. Výhoda je železobetónová strecha .
V prípade dohody sa dá stavba realizovať do finálnej podoby ako je interiér , exteriér za doplatok.
Jeden rodinný dom je už skolaudovaný
O projekte:
Vďaka blízkemu privádzaču na diaľnicu D1 bude vaše každodenné cestovanie za prácou alebo relaxom pohodlnejšie a dostupnejšie. Krajské i okresné mestá sú od oblasti vzdialené pár kilometrov.
Prostredie obklopené zeleňou, lúkami a lesmi prináša mnoho príležitostí nielen na turistiku, ale i cyklistiku či prechádzky s rodinou. Zároveň sa v blízkom okolí nachádzajú aj viaceré lyžiarske strediská, kde si tak na svoje prídu aj lyžiari.
Pre bližšie informácie nás neváhajte kontaktovať. Cena zahŕňa pozemok, skolaudovaný holodom.
|
| |||||||||||||||||||||||||||||||
Kontaktovať inzerenta e-mailom
Kontaktovať e-mailom môže iba overený užívateľ.
Overenie je zadarmo.
Vaše telefónne číslo *
Kontaktovať e-mailom môže iba overený užívateľ.
Overenie je zadarmo.
Vaše telefónne číslo *