NA PREDAJ EXKLUZÍVNY 3-IZBOVÝ BYT V ILAVE 75 M2 S...
- TOP - [9.11. 2025]Zmazať/ Upraviť/ Topovať





























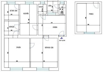
Tureality ponúka na predaj pre hotovostných záujemcov veľký 3-izbový byt v Ilave v tehlovom bytovom dome. Byt je v pôvodnom stave s výmerou 75 M2 s pivničnými priestormi má 99m2.Je pripravený na rekonštrukciu. Pozrite si pripravené video:, https://youtu.be/FD-mzuS-PHo a zároveň aj 3D:, https://my.matterport.com/show/?m=QvPLLYMzjAV . Môžete vidieť, do akého bývania môžete ísť. Dispozícia celého bývania je zaujímavá, nepremárnite zaujímavú ponuku netradičného bývania. Nachádza sa na prízemnom poschodí z 2-poschodí s balkónom a s pivnicou. Parkovať môžete na nepriechodnej ulici pred vchodom. Balkón je zo dvora, kde je zeleň a záhradka. Bytový dom je po rekonštrukcii zateplenia, novej strechy, na novo inštalované merače odberu vody, nové okná a dvere v pivničných priestoroch. Každý byt má vlastné kúrenie a ohrev vody. Sú tu nízke mesačné náklady na bývanie. Občianska vybavenosť je kompletná a všetko je na pešo. Odporúčam vidieť. Dobré je napojenie na diaľnicu. Energetický certifikát je skupina B. Platba v hotovosti je zvýhodnená výraznou zmenou ceny. Pre viac informácii ma môžete kontaktovať na t.č, +421 41/321 78 00, alebo na mail: macejechova@tureality.sk
|
| |||||||||||||||||||||||||||||||
Kontaktovať inzerenta e-mailom
Kontaktovať e-mailom môže iba overený užívateľ.
Overenie je zadarmo.
Vaše telefónne číslo *
Kontaktovať e-mailom môže iba overený užívateľ.
Overenie je zadarmo.
Vaše telefónne číslo *








