STAVIAME PRE VÁS 4 izbový RD - bungalov v N. Meste nad Váhom
- [3.11. 2025]Zmazať/ Upraviť/ Topovať

























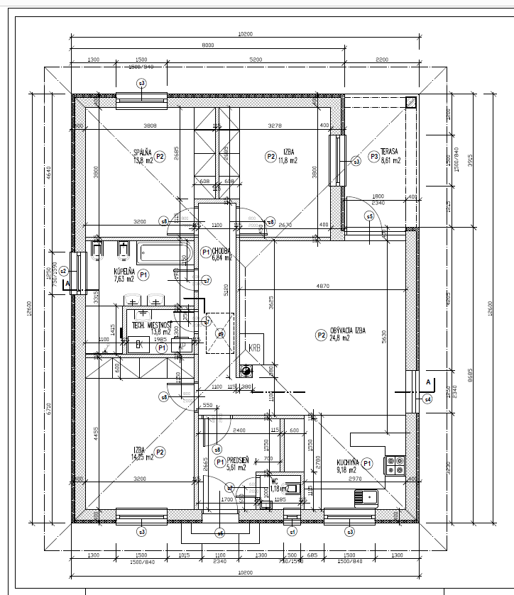
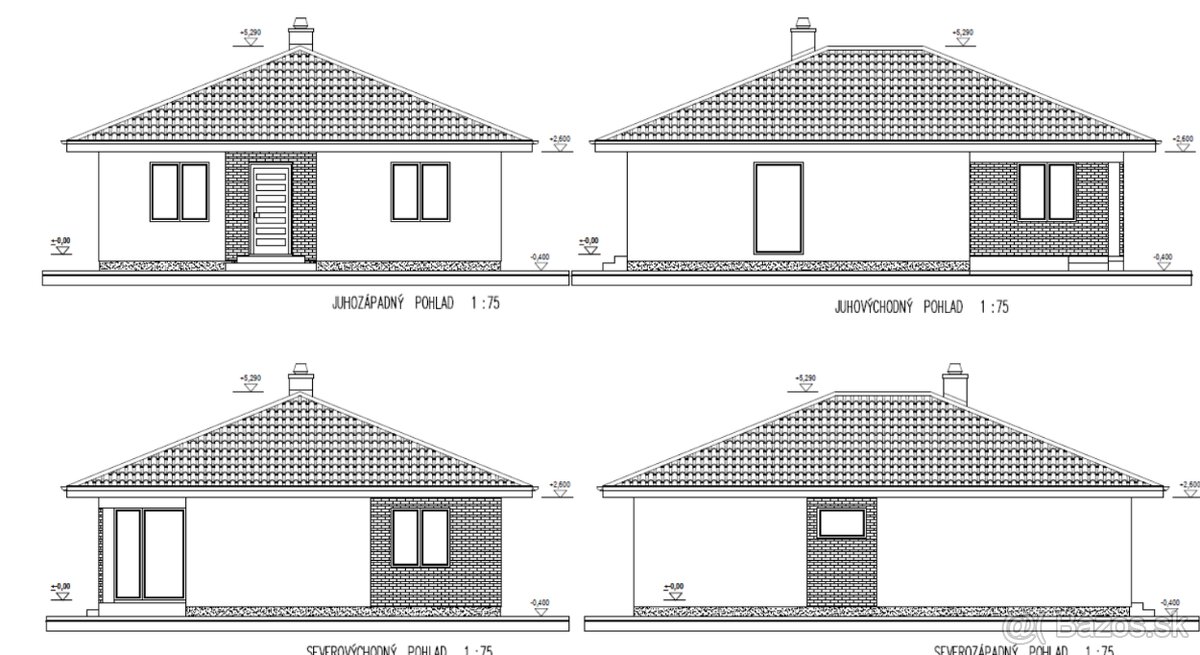
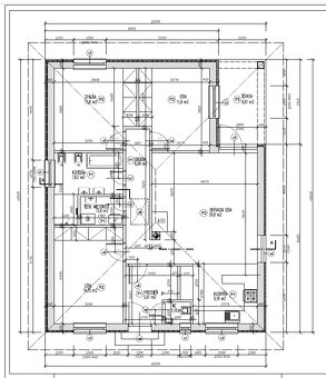
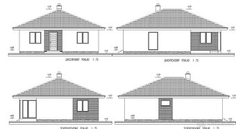
COMACCreality s.r.o. Pokiaľ máte pozemok táto ponuka je exkluzívne pre vás. Ponúkame vám výstavbu modernej murovanej novostavby 4 izbového domu typu bungalov. Dom sa predáva v stave holodom. Dom je samostatne stojaci, jednopodlažný s valbovou strechou. Pozostáva z predsiene,WC ,šatníka, technickej miestnosti, 4 samostatných izieb .V obývacej izbe sa nachádza príprava na krb SCHIEDEL. Obývacia izba je spojená s kuchyňou a jedálňou. Z obývacej izby sa vychádza na priestrannú terasu .
Rodinný dom je postavený z tehly, strecha Bramac - čierna - väzníkový krov, plastové okná - izolačné troj-sklo s vonkajšou povrchovou úpravou, zateplenie a fasádnou farbou, izolácie, žumpa, prípojka elektriky a vody, príprava na alarm a kamerový systém, elektrické podlahové vykurovanie značky Hevolta - inteligentný dom, možnosť ovládania cez mobilnú aplikáciu hlasom + rekuperácia, https://hevolta.sk/, elektrický bojler na ohrev vody, sadrové omietky - sieťky na všetkých stenách, vypínače a zásuvky, úprava terénu s trativodmi. Zastavaná plocha je 140 m2. Úžitková plocha 115 m2. Plocha terasy je 15 m2. Možnosť ukážky postaveného vzorového domu.
Energetická certifikácia podľa zákona č. 555/2005 Z.z. o energetickej hospodárnosti budov bude vykonaná v zmysle zákona , pri predaji nehnuteľnosti a je predpoklad, že daná nehnuteľnosť bude zaradená do energetickej triedy A0.
Kontaktujte nás a my Vám radi pomôžeme. Poradenstvo, obhliadky a inzercia je zdarma. Naša predajná cena je vždy konečná vrátane provízie. Pri kúpe Vám zabezpečíme kompletný servis od obhliadok až po spracovanie zmlúv a prevod nehnuteľností.V prípade,že Vám tento projekt nevyhovuje,je tu možnosť iného projektu,alebo aj podľa vlastného projektu. Pre podrobné informácie volajte na tel.0904 162 961,mail polka @comaccreality.sk
Rodinný dom je postavený z tehly, strecha Bramac - čierna - väzníkový krov, plastové okná - izolačné troj-sklo s vonkajšou povrchovou úpravou, zateplenie a fasádnou farbou, izolácie, žumpa, prípojka elektriky a vody, príprava na alarm a kamerový systém, elektrické podlahové vykurovanie značky Hevolta - inteligentný dom, možnosť ovládania cez mobilnú aplikáciu hlasom + rekuperácia, https://hevolta.sk/, elektrický bojler na ohrev vody, sadrové omietky - sieťky na všetkých stenách, vypínače a zásuvky, úprava terénu s trativodmi. Zastavaná plocha je 140 m2. Úžitková plocha 115 m2. Plocha terasy je 15 m2. Možnosť ukážky postaveného vzorového domu.
Energetická certifikácia podľa zákona č. 555/2005 Z.z. o energetickej hospodárnosti budov bude vykonaná v zmysle zákona , pri predaji nehnuteľnosti a je predpoklad, že daná nehnuteľnosť bude zaradená do energetickej triedy A0.
Kontaktujte nás a my Vám radi pomôžeme. Poradenstvo, obhliadky a inzercia je zdarma. Naša predajná cena je vždy konečná vrátane provízie. Pri kúpe Vám zabezpečíme kompletný servis od obhliadok až po spracovanie zmlúv a prevod nehnuteľností.V prípade,že Vám tento projekt nevyhovuje,je tu možnosť iného projektu,alebo aj podľa vlastného projektu. Pre podrobné informácie volajte na tel.0904 162 961,mail polka @comaccreality.sk
|
| |||||||||||||||||||||||||||||||
Kontaktovať inzerenta e-mailom
Kontaktovať e-mailom môže iba overený užívateľ.
Overenie je zadarmo.
Vaše telefónne číslo *
Kontaktovať e-mailom môže iba overený užívateľ.
Overenie je zadarmo.
Vaše telefónne číslo *
Podobné inzeráty
Exk.veľký 8 iz Rodinný dom vo Veľkom Orvišti pri Piešťanoch - [13.11. 2025]COMACCreality s.r.o. Exkluzívne iba u nás ponúkame na predaj dvojgeneračný 8 izbový rodinný dom s veľkou záhradou vo výbornej lokalite mimo hlavnej cesty v obci Veľké Orvište pri Piešťanoch. Pozemok aj s domom má rozlohu 824 m2. Rodinný dom pozostáva z dvoch samostatných bytov s vlastnými vchodmi.
...
164 999 €
Piešťany
922 01
922 01
176 x
Označiť zlý inzerát Chybnú kategóriu Ohodnotiť užívateľa Zmazať/Upraviť/Topovať
Výstavba inteligentného 4 izbového bungalovu v NM a okolí - [3.11. 2025]COMACCreality s.r.o. Pokiaľ máte pozemok táto ponuka je exkluzívne pre vás. Ponúkame vám výstavbu modernej murovanej novostavby 4 izbového domu typu bungalov. Dom sa predáva v stave holodom. Dom je samostatne stojaci, jednopodlažný s valbovou strechou. Pozostáva z predsiene,WC ,šatníka, technickej m ...
125 000 €
Piešťany
922 01
922 01
452 x
Označiť zlý inzerát Chybnú kategóriu Ohodnotiť užívateľa Zmazať/Upraviť/Topovať
Rodinný dom vhodný na podnikanie 4 km od Piešťan. - [27.10. 2025]Typ: Rodinný dom
Ulica: Športová
Obec: Veľké Orvište
POPIS NEHNTEĽNOSTI
Realitná kancelária OXFIN REALITY Vám exkluzívne ponúka na predaj veľký poschodový rodinný dom s pivnicou a garážou. Dom sa nachádza v obci Veľké Orvište 4 km od Piešťan. Lokalita, poloha a veľkosť rodinného dom ...
249 000 €
Piešťany
922 01
922 01
420 x
Označiť zlý inzerát Chybnú kategóriu Ohodnotiť užívateľa Zmazať/Upraviť/Topovať
Na predaj 3-izbový byt s vlastnou záhradou vo Veľkom Orvišti - [1.10. 2025]Typ: Rodinný dom
Obec: Veľké Orvište
Moderný maklér ponúka vo výhradnom zastúpení klienta na predaj výnimočný 3-izbový byt v rodinnom dome s vlastnou záhradou, predstavujúci ideálnu kombináciu pohodlia rodinného bývania s výhodami bytu v atraktívnej lokalite blízko centra kúpeľného mesta Pi ...
163 500 €
Piešťany
922 01
922 01
546 x
Označiť zlý inzerát Chybnú kategóriu Ohodnotiť užívateľa Zmazať/Upraviť/Topovať
Na predaj výnimočný 3-izbový byt v rodinnom dome vo Veľkom O - [1.10. 2025]Typ: Rodinný dom
Obec: Veľké Orvište
Moderný maklér ponúka vo výhradnom zastúpení na predaj výnimočný 3-izbový byt v rodinnom dome predstavujúci ideálnu kombináciu pohodlia rodinného bývania s výhodami bytu, v atraktívnej lokalite blízko centra kúpeľného mesta Piešťany.
Byt:
Podlahová plo ...
163 500 €
Piešťany
922 01
922 01
98 x
Označiť zlý inzerát Chybnú kategóriu Ohodnotiť užívateľa Zmazať/Upraviť/Topovať
Na predaj výnimočný 4-izbový byt v rodinnom dome vo Veľkom O - [1.10. 2025]Typ: Rodinný dom
Obec: Veľké Orvište
Moderný maklér ponúka vo výhradnom zastúpení na predaj výnimočný 4-izbový byt v rodinnom dome predstavujúci ideálnu kombináciu pohodlia rodinného bývania s výhodami bytu v atraktívnej lokalite blízko centra kúpeľného mesta Piešťany.
Byt:
Podlahová plocha: 1 ...
232 800 €
Piešťany
922 01
922 01
109 x
Označiť zlý inzerát Chybnú kategóriu Ohodnotiť užívateľa Zmazať/Upraviť/Topovať




