PREDAJ Novostavba rodinný dom Vlachy okres Liptovský Mikuláš
- [3.11. 2025]Zmazať/ Upraviť/ Topovať

























Ponúkame na predaj novostavbu rodinného domu s terasou v štádiu projektu, v obci Liptovské Vlachy miestna časť Krmeš, okres Liptovský Mikuláš.
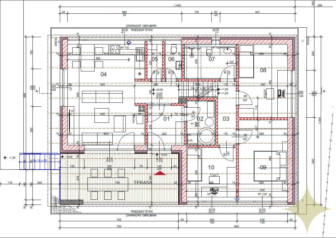
Rodinný dom bude MUROVANÝ 4 izbový, jedno podlažný so zastavanou plochou 140 m2 a úžitkovou plochou vrátane zastrešenej terasy cca 117 m2. Pozemok na ktorom bude dom postavený je svahovitý, slnečný s celkovou výmerou 934 m2. Nachádza sa v tichej lokalite na okraji obce Vlachy.
Výstavba domu je naplánovaná na jar 2026, s termínom dokončenia do decembra 2026.
Rodinný dom bude projektovaný a postavený v energetickej triede A0.
V uvedenej predajnej cene je pozemok a dom bude dokončený do štádia HOLODOM.
Po dohode s investorom je možné dokončiť dom do štádia NA KĽÚČ.
Finálne dokončenie rodinného domu bude možne upraviť po dohode s investorom.
Výstavba domu na KĽÚČ bude obsahovať:
• Projekt, stavebné povolenie
• Zemné a výkopové práce
• Základové konštrukcie a základová doska vystužená KARI sieťou
• Predpríprava pred vodoinštaláciu a kanalizáciu, uzemňovacia súprava
• Hydroizolácia proti zemnej vlhkosti z asfaltových pásov s penetračným náterom
• Obvodové nosné murivo hr. 300 mm
• Vnútorné nosné murivo hr. 300, hr. 240, hr. 200 mm
• Vnútorné deliace priečky murované
• Železobetónové monolitické preklady
• Vystužený železobetónový veniec s prerušením tepelného mosta
• Pultová šikmá strecha
• Drevený krov s protiplesňovým a protipožiarnym náterom
• Strešná plechová krytina vrátane doplnkov
• Klampiarske konštrukcie z pozinkovaného plechu, odkvapový systém
• Komínový systém z tvárnic a šamotových vložiek
• Krb alebo krbová vložka
• Vonkajšie plastové okna, dvere s izolačným trojsklom
• Vnútorné inštalácie – vodovod, kanalizácia, elektroinštalácia
• Vnútorné sadrové alebo vápenno-cementové štukové omietky stien, maľby stien a stropov (2 x biela)
• Tepelná izolácia podláh EPS 100 hr. 80 mm, betónová mazanina podláh
• Tepelná izolácia strechy v podkroví hr. min. 350 mm
• Sadrokartónový podhľad s parozábranou, maľba stropov (2 x biela)
• Podlahové vykurovanie
• Zateplenie obvodových konštrukcií fasádnym polystyrénom hr. min. 150 mm
• Rekuperácia
• Vonkajšia silikátová škrabaná omietka
• Soklová omietka
• Kompletizácia kúrenia s tepelným čerpadlom
• Zásobník TÚV 120L
• Kompletizácie elektroinštalácie, v cene je rozvodová skriňa, zásuvky a vypínače
• Obklady a dlažby v kúpeľni – zákazník dostane vizualizáciu, (možnosť vlastného výberu za príplatok)
• Laminátové podlahy so soklovými lištami
• Kompletizácia vodoinštalácie, sanitárne zriaďovacie predmety, batérie, armatúry
• Interiérové dvere s obložkovými zárubňami vrátanie kľučiek
• Terasa s dlažbou
• Vonkajšie obklady
• Úprava terénu
• Prístupové cesty
• Tlakové skúšky, Skúšky tesnosti, revízne správy
• Oplotenie
• Kolaudáciu
Dom v štádiu HOLODOM neobsahuje:
• Kuchynskú linku
• Zdroj vykurovania Tepelné čerpadlo, ale bude elektrokotol
• Obklady a dlažby
• Laminátové podlahy so soklovými lištami
• Sanitárn
Rodinný dom bude MUROVANÝ 4 izbový, jedno podlažný so zastavanou plochou 140 m2 a úžitkovou plochou vrátane zastrešenej terasy cca 117 m2. Pozemok na ktorom bude dom postavený je svahovitý, slnečný s celkovou výmerou 934 m2. Nachádza sa v tichej lokalite na okraji obce Vlachy.
Výstavba domu je naplánovaná na jar 2026, s termínom dokončenia do decembra 2026.
Rodinný dom bude projektovaný a postavený v energetickej triede A0.
V uvedenej predajnej cene je pozemok a dom bude dokončený do štádia HOLODOM.
Po dohode s investorom je možné dokončiť dom do štádia NA KĽÚČ.
Finálne dokončenie rodinného domu bude možne upraviť po dohode s investorom.
Výstavba domu na KĽÚČ bude obsahovať:
• Projekt, stavebné povolenie
• Zemné a výkopové práce
• Základové konštrukcie a základová doska vystužená KARI sieťou
• Predpríprava pred vodoinštaláciu a kanalizáciu, uzemňovacia súprava
• Hydroizolácia proti zemnej vlhkosti z asfaltových pásov s penetračným náterom
• Obvodové nosné murivo hr. 300 mm
• Vnútorné nosné murivo hr. 300, hr. 240, hr. 200 mm
• Vnútorné deliace priečky murované
• Železobetónové monolitické preklady
• Vystužený železobetónový veniec s prerušením tepelného mosta
• Pultová šikmá strecha
• Drevený krov s protiplesňovým a protipožiarnym náterom
• Strešná plechová krytina vrátane doplnkov
• Klampiarske konštrukcie z pozinkovaného plechu, odkvapový systém
• Komínový systém z tvárnic a šamotových vložiek
• Krb alebo krbová vložka
• Vonkajšie plastové okna, dvere s izolačným trojsklom
• Vnútorné inštalácie – vodovod, kanalizácia, elektroinštalácia
• Vnútorné sadrové alebo vápenno-cementové štukové omietky stien, maľby stien a stropov (2 x biela)
• Tepelná izolácia podláh EPS 100 hr. 80 mm, betónová mazanina podláh
• Tepelná izolácia strechy v podkroví hr. min. 350 mm
• Sadrokartónový podhľad s parozábranou, maľba stropov (2 x biela)
• Podlahové vykurovanie
• Zateplenie obvodových konštrukcií fasádnym polystyrénom hr. min. 150 mm
• Rekuperácia
• Vonkajšia silikátová škrabaná omietka
• Soklová omietka
• Kompletizácia kúrenia s tepelným čerpadlom
• Zásobník TÚV 120L
• Kompletizácie elektroinštalácie, v cene je rozvodová skriňa, zásuvky a vypínače
• Obklady a dlažby v kúpeľni – zákazník dostane vizualizáciu, (možnosť vlastného výberu za príplatok)
• Laminátové podlahy so soklovými lištami
• Kompletizácia vodoinštalácie, sanitárne zriaďovacie predmety, batérie, armatúry
• Interiérové dvere s obložkovými zárubňami vrátanie kľučiek
• Terasa s dlažbou
• Vonkajšie obklady
• Úprava terénu
• Prístupové cesty
• Tlakové skúšky, Skúšky tesnosti, revízne správy
• Oplotenie
• Kolaudáciu
Dom v štádiu HOLODOM neobsahuje:
• Kuchynskú linku
• Zdroj vykurovania Tepelné čerpadlo, ale bude elektrokotol
• Obklady a dlažby
• Laminátové podlahy so soklovými lištami
• Sanitárn
|
| |||||||||||||||||||||||||||||||
Kontaktovať inzerenta e-mailom
Kontaktovať e-mailom môže iba overený užívateľ.
Overenie je zadarmo.
Vaše telefónne číslo *
Kontaktovať e-mailom môže iba overený užívateľ.
Overenie je zadarmo.
Vaše telefónne číslo *




