DEVÍN: Nízkoenergetický dom s modernými technológiami
- TOP - [5.11. 2025]Zmazať/ Upraviť/ Topovať






























Hľadáte moderné bývanie v dome, ale chcete spojiť mesto s pokojom vidieka? Potom tento dom splní všetky Vaše očakávania. Kompaktnosť a usporiadanie je navrhnuté do detailov tak, aby naplnilo očakávania modernej rodiny. Prevedenie " Holodom " Vám umožní dokončiť priestor a farebné doladenie podľa Vašich predstáv.
Realitná kancelária RE/MAX Expert Vám vo výhradnom zastúpení klienta ponúka možnosť kúpiť 5-izbový rekreačný dom s tromi kúpeľňami a dokonale presvetleným priestorom v MČ Devín – miestna časť Svätopluk. Dom sa nachádza na slnečnom 375 m2 pozemku. Obytná plocha rekreačného domu je 141,7 m2 na dvoch podlažiach so zastavanou plochou 92,22 m2. Pozemok je zo všetkých strán oplotený, v priamom susedstve sú obyvatelia s trvalým pobytom. Pozemok disponuje dvomi parkovacími státiami zo strany Delenej cesty. Príjazd je po spevnenej ceste s mestským osvetlením. Dom bude dokončený a skolaudovaný koncom roka 2025.
ZÁKLADNÁ CHARAKTERISTIKA:
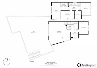
- celková úžitková plocha: 141,71 m2
- plocha prízemia : 77,18 m2
- plocha poschodia : 64,53 m2
ŠPECIFIKÁCIA STAVBY DOKONČENOSTI:
Interiér:
- tehlová stavba, 300mm + zateplenie 180 mm polystyren EPS 70,
- omietky sádrové
- drevené okná euro hr. 923mm, trojsklo ug=0,50, 10 rokov záruka na ext. lakovanie
- keramická škridla Tondach
- tepelné čerpadlo vzduch-voda HYUNDAI
- predpríprava na klimatizačné jednotky
- akumulačná pec Hoxter
- predpríprava na kamerový systém hi vision a alarmové systémy Jablotron
- podlahové kúrenie v celom dome, každé podlažie má samostatný termostat
- extra elektrické podlahové kúrenie v kúpeľniach na 2.np ( 2 ks)
- podomietkové batérie sprchy, samostatne stojaca batéria pre vaňu
- samostatný okruh kúrenia 1.NP. 2.NP, pomocou čerpadlovej sústavy (2 termostaty) ovládanie cez wify
- predpríprava na exteriérové žalúzie, ovládanie cez mobil a každé okno elektronicky, farba bude určená neskôr
- Telekom kabeláž do domu - priame napojenie metaliku, predpríprava na optiku
- obklady a dlažba v tech. miestnosti,
- obklady a dlažba v kúpeľni na 1NP
Exteriér:
- fotovoltaika malý zdroj s výkonom 5,70 kWp, vrátane zapojenia do zs-dis- zmluva virtuálna batéria
- drevený obklad fasády pri vstupe a stene pri terase
- terénne úpravy na pozemku
- zelené strechy na plochej časti domu: balkón a strecha nad jedálňou
- parking pre 2 motorové vozidlá
- energetická náročnosť stavby: A0 - na spodnej hranici
- predpokladaná spotreba energie: el. energia = varenie, svietenie, kúrenie a TÚV= cca 4,90 MWh / rok
(odhadovaná výška mesačných platieb do 50 eur), predpokladaná výroba FV zdroja = 6,85 MWh / rok
TOP 5 VÝHOD DOMU:
- vynikajúca lokalita plná zelene
- veľkorysá denná časť s terasou
- dokončenie podľa vlastných predstáv
- perfektná dispozícia
- tiché prostredie, málo susedov
LOKALITA:
Rek. dom sa nachádza v tichej lokalite, priamo v prírode na svahu Dev
Realitná kancelária RE/MAX Expert Vám vo výhradnom zastúpení klienta ponúka možnosť kúpiť 5-izbový rekreačný dom s tromi kúpeľňami a dokonale presvetleným priestorom v MČ Devín – miestna časť Svätopluk. Dom sa nachádza na slnečnom 375 m2 pozemku. Obytná plocha rekreačného domu je 141,7 m2 na dvoch podlažiach so zastavanou plochou 92,22 m2. Pozemok je zo všetkých strán oplotený, v priamom susedstve sú obyvatelia s trvalým pobytom. Pozemok disponuje dvomi parkovacími státiami zo strany Delenej cesty. Príjazd je po spevnenej ceste s mestským osvetlením. Dom bude dokončený a skolaudovaný koncom roka 2025.
ZÁKLADNÁ CHARAKTERISTIKA:
- celková úžitková plocha: 141,71 m2
- plocha prízemia : 77,18 m2
- plocha poschodia : 64,53 m2
ŠPECIFIKÁCIA STAVBY DOKONČENOSTI:
Interiér:
- tehlová stavba, 300mm + zateplenie 180 mm polystyren EPS 70,
- omietky sádrové
- drevené okná euro hr. 923mm, trojsklo ug=0,50, 10 rokov záruka na ext. lakovanie
- keramická škridla Tondach
- tepelné čerpadlo vzduch-voda HYUNDAI
- predpríprava na klimatizačné jednotky
- akumulačná pec Hoxter
- predpríprava na kamerový systém hi vision a alarmové systémy Jablotron
- podlahové kúrenie v celom dome, každé podlažie má samostatný termostat
- extra elektrické podlahové kúrenie v kúpeľniach na 2.np ( 2 ks)
- podomietkové batérie sprchy, samostatne stojaca batéria pre vaňu
- samostatný okruh kúrenia 1.NP. 2.NP, pomocou čerpadlovej sústavy (2 termostaty) ovládanie cez wify
- predpríprava na exteriérové žalúzie, ovládanie cez mobil a každé okno elektronicky, farba bude určená neskôr
- Telekom kabeláž do domu - priame napojenie metaliku, predpríprava na optiku
- obklady a dlažba v tech. miestnosti,
- obklady a dlažba v kúpeľni na 1NP
Exteriér:
- fotovoltaika malý zdroj s výkonom 5,70 kWp, vrátane zapojenia do zs-dis- zmluva virtuálna batéria
- drevený obklad fasády pri vstupe a stene pri terase
- terénne úpravy na pozemku
- zelené strechy na plochej časti domu: balkón a strecha nad jedálňou
- parking pre 2 motorové vozidlá
- energetická náročnosť stavby: A0 - na spodnej hranici
- predpokladaná spotreba energie: el. energia = varenie, svietenie, kúrenie a TÚV= cca 4,90 MWh / rok
(odhadovaná výška mesačných platieb do 50 eur), predpokladaná výroba FV zdroja = 6,85 MWh / rok
TOP 5 VÝHOD DOMU:
- vynikajúca lokalita plná zelene
- veľkorysá denná časť s terasou
- dokončenie podľa vlastných predstáv
- perfektná dispozícia
- tiché prostredie, málo susedov
LOKALITA:
Rek. dom sa nachádza v tichej lokalite, priamo v prírode na svahu Dev
|
| |||||||||||||||||||||||||||||||
Kontaktovať inzerenta e-mailom
Kontaktovať e-mailom môže iba overený užívateľ.
Overenie je zadarmo.
Vaše telefónne číslo *
Kontaktovať e-mailom môže iba overený užívateľ.
Overenie je zadarmo.
Vaše telefónne číslo *









