FIREMNÁ BUDOVA V CENTRE MESTA ŽILINY - MALÁ PRAHA
- [3.11. 2025]Zmazať/ Upraviť/ Topovať





























TUreality ponúka na predaj firemnú budovu vo vyhľadávanej lokalite mesta Žiliny - Malá Praha, ulica Hálkova. Zastavaná plocha je 170m2, úžitková plocha 254m2 a celková výmera pozemku je 464m2.
Firemná budova je súčasť jedného dvojdomu s vlastným súpisným číslom. Je čiastočne podpivničená s jedným nadzemným podlažím a podkrovím.
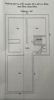
- na 1. nadzemnom podlaží (139,5m2) dispozične pozostáva zo vstupnej chodby, samostatného vstavaného WC, 3 miestnosti spolu s kuchynkou, zasadačky, schodiskom do podkrovia a pivnice.
- v podkroví (88,2m2) sa nachádza chodba, kúpeľňa so sprchovým kútom spolu so vstavaným WC a 2 miestnosti.
- v pivničných priestoroch (26,58m2) sa nachádza sklad.
Budova bola kompletne zrekonštruovaná v roku 2017 vrátane nových rozvodov. Má 4 klimatizačné jednotky, zabezpečovacie zariadenie, kamerový systém. Je postavená z tehly hr. 500-650 mm, zateplená fasádnym polystyrénom. Strešná krytina je z pozinkovaného plechu.
V celej budove je položená gresová dlažba. Vykurovanie je podlahové-teplovodné. Ohrev teplej vody je plynovým kotlom, ktorý sa nachádza v pivničných priestoroch. Budova je napojená na mestský vodovod, plyn, elektrinu a verejnú kanalizáciu. Prístup na pozemok je z miestnej komunikácie.
Na oplotenom rovinatom pozemku je automatizovaná závlaha s možnosťou parkovania pre 9 áut. Do budovy je možné prejsť aj zo zadnej časti terasy, ktorá sa nachádza na parkovisku.
Aktuálne sa miestnosti využívajú ako kancelárie. Budova je na liste vlastníctva zapísaná ako rodinný dom.
Strategická poloha poskytuje dokonalé administratívne priestory pre sídlo firmy, ale aj trvalé bývanie v rodinnom dome. V okolí je výborná dostupnosť - iba 5 min. sa nachádza centrum mesta, OC Aupark, zastávka MHD a mnoho ďalšieho. Bližšie info: majdak@tureality.sk alebo na tel. čísle +421 41 3217800
Firemná budova je súčasť jedného dvojdomu s vlastným súpisným číslom. Je čiastočne podpivničená s jedným nadzemným podlažím a podkrovím.
- na 1. nadzemnom podlaží (139,5m2) dispozične pozostáva zo vstupnej chodby, samostatného vstavaného WC, 3 miestnosti spolu s kuchynkou, zasadačky, schodiskom do podkrovia a pivnice.
- v podkroví (88,2m2) sa nachádza chodba, kúpeľňa so sprchovým kútom spolu so vstavaným WC a 2 miestnosti.
- v pivničných priestoroch (26,58m2) sa nachádza sklad.
Budova bola kompletne zrekonštruovaná v roku 2017 vrátane nových rozvodov. Má 4 klimatizačné jednotky, zabezpečovacie zariadenie, kamerový systém. Je postavená z tehly hr. 500-650 mm, zateplená fasádnym polystyrénom. Strešná krytina je z pozinkovaného plechu.
V celej budove je položená gresová dlažba. Vykurovanie je podlahové-teplovodné. Ohrev teplej vody je plynovým kotlom, ktorý sa nachádza v pivničných priestoroch. Budova je napojená na mestský vodovod, plyn, elektrinu a verejnú kanalizáciu. Prístup na pozemok je z miestnej komunikácie.
Na oplotenom rovinatom pozemku je automatizovaná závlaha s možnosťou parkovania pre 9 áut. Do budovy je možné prejsť aj zo zadnej časti terasy, ktorá sa nachádza na parkovisku.
Aktuálne sa miestnosti využívajú ako kancelárie. Budova je na liste vlastníctva zapísaná ako rodinný dom.
Strategická poloha poskytuje dokonalé administratívne priestory pre sídlo firmy, ale aj trvalé bývanie v rodinnom dome. V okolí je výborná dostupnosť - iba 5 min. sa nachádza centrum mesta, OC Aupark, zastávka MHD a mnoho ďalšieho. Bližšie info: majdak@tureality.sk alebo na tel. čísle +421 41 3217800
|
| |||||||||||||||||||||||||||||||
Kontaktovať inzerenta e-mailom
Kontaktovať e-mailom môže iba overený užívateľ.
Overenie je zadarmo.
Vaše telefónne číslo *
Kontaktovať e-mailom môže iba overený užívateľ.
Overenie je zadarmo.
Vaše telefónne číslo *








