Rodinný dom Hontianske Tesáre
- TOP - [10.11. 2025]Zmazať/ Upraviť/ Topovať



























Ak hľadáte dom, kde nájdete kľud , súkromie a bezpečné miesto pre svoju rodinu, kde môžete vytvárať spomienky, venovať sa svojim záľubám a zároveň mať všetko potrebné na dosah ruky, tento dom je pre vás ako stvorený.
Rodinný dom sa nachádza v malebnej dedinke Hontianske Tesáre, v tichej uličke nad obcou, len 5 minút od kúpeľného mesta Dudince, kde si môžete vychutnať súkromie a kľud, bez toho aby ste boli ďaleko od mesta.
Dom a jeho dispozícia:
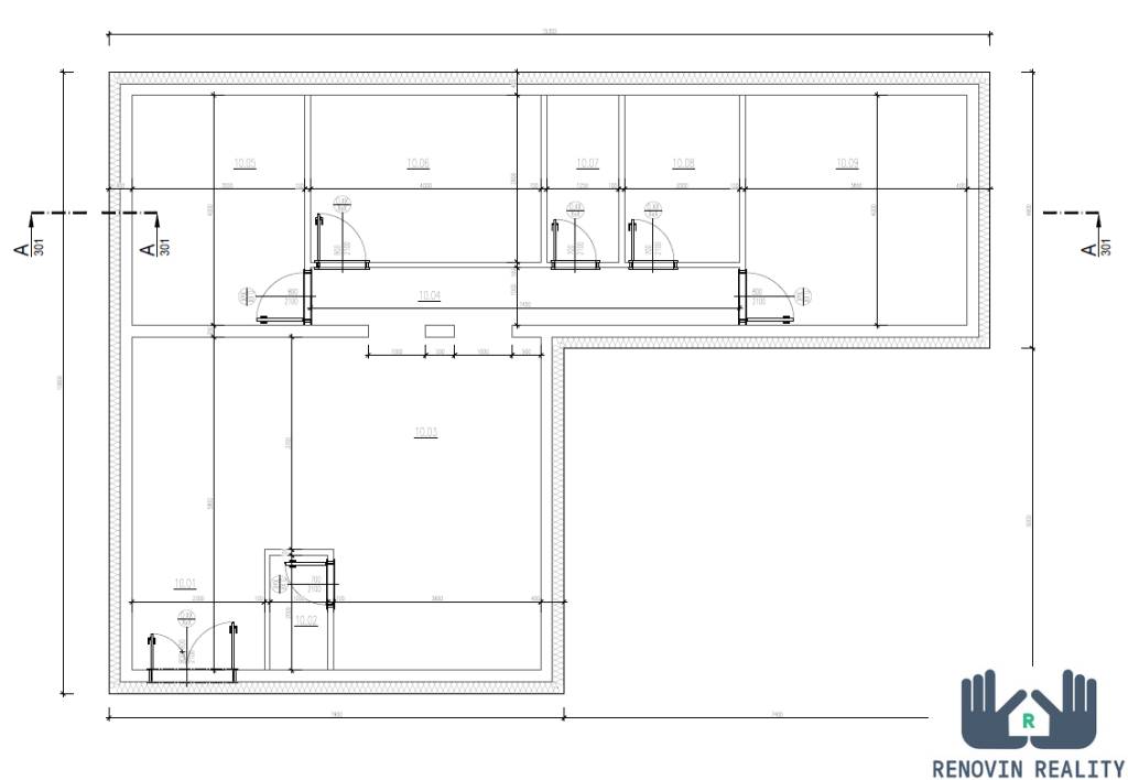
• Obytná plocha: 100 m2, pozemok: 534 m² s možnosťou dokúpenia susedného pozemku vo výmere 400 m2
• Prevedenie holodom: pripravené na konci roka 2025 – stačí dokončiť podľa svojich predstáv
• Srdce domu: obývacia izba spojená s kuchyňou a praktickou špajzou, s výstupom na priestrannú slnečnú terasu (20 m²) – ideálne miesto pre rodinné posedenia a pohodu
• Súkromný priestor rodiny: jednopodlažný - všetko máte na jednej úrovni,
• rodičovská spálňa, dve detské izby a dve kúpeľne
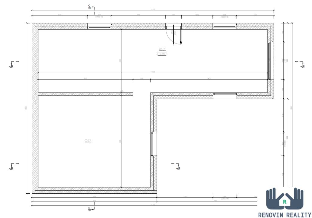
• Bonus: podpivničenie s ďalšími 100 m² – ideálne pre wellness, domácu kanceláriu, ateliér, dielňu pre kutila, alebo čokoľvek, čo si vaše srdce zažiada
Technické výhody
• Ekologické riešenia: podlahové kúrenie napojené na tepelné čerpadlo, možnosť fotovoltaického systému
• použitý materiál: stavba je zrealizovaná francúzskym stavebným systémom , vyniká životnosťou, odolnosťou, nosnosťou, materiál zabezpečuje príjemnú klímu aj v letných mesiacoch
• Vnútorná pohoda : zabezpečená zateplením minerálnou vatou o hrúbke 20 cm a 3 komorovými eurooknami.
• Praktické riešenia: voda z verejného vodovodu, kanalizácia cez žumpu
• Flexibilita: možnosť dokončenia domu do štandardu podľa vašich predstáv a dokúpenia susedného pozemku, ak túžite po väčšom priestore pre svoje sny
Lokalita:
Hontianske Tesáre ponúkajú kompletnú základnú občiansku vybavenosť vrátane obecného úradu, školy, materskej školy, potravín, pošty, kultúrneho domu, športovísk . Obec je dobre dopravne napojená, pričom Dudince sú vzdialené len 5 km a širšie služby sú dostupné v Krupine a Leviciach. Okolie obce láka na malebnú prírodu, turistiku, cykloturistiku, vinice a miestne kultúrne pamiatky vrátane vyhliadkovej veže a kaplnky.
Tento dom nie je len stavba – je to miesto, kde sa tvorí rodinné šťastie, kde každý kút dýcha pohodou a bezpečím.
Zaujíma vás, ako rastie váš budúci domov? Napíšte alebo zavolajte nám a my vám radi ukážeme každý krok jeho dokončovania!
Zastavaná plocha: 110m²
Obytná plocha: 200m²
Rozloha pozemku: 536m²
Úžitková plocha: 200m²
Stav: nedokončený
Odvoz odpadu: áno
Voda: verejný vodovod
El. napätie: 230V
Plyn: nie
Kanalizácia: žumpa
Kúpeľňa: áno
Vykurovanie: vlastné
Terasa: áno
Pivnica: áno
Garáž: áno
Zariadenie: nezariadený
Zateplený objekt: áno
Predzáhradka: neuvedené
Terén: mierny svah
Prístupová cesta: asfaltová cesta
Rodinný dom sa nachádza v malebnej dedinke Hontianske Tesáre, v tichej uličke nad obcou, len 5 minút od kúpeľného mesta Dudince, kde si môžete vychutnať súkromie a kľud, bez toho aby ste boli ďaleko od mesta.
Dom a jeho dispozícia:
• Obytná plocha: 100 m2, pozemok: 534 m² s možnosťou dokúpenia susedného pozemku vo výmere 400 m2
• Prevedenie holodom: pripravené na konci roka 2025 – stačí dokončiť podľa svojich predstáv
• Srdce domu: obývacia izba spojená s kuchyňou a praktickou špajzou, s výstupom na priestrannú slnečnú terasu (20 m²) – ideálne miesto pre rodinné posedenia a pohodu
• Súkromný priestor rodiny: jednopodlažný - všetko máte na jednej úrovni,
• rodičovská spálňa, dve detské izby a dve kúpeľne
• Bonus: podpivničenie s ďalšími 100 m² – ideálne pre wellness, domácu kanceláriu, ateliér, dielňu pre kutila, alebo čokoľvek, čo si vaše srdce zažiada
Technické výhody
• Ekologické riešenia: podlahové kúrenie napojené na tepelné čerpadlo, možnosť fotovoltaického systému
• použitý materiál: stavba je zrealizovaná francúzskym stavebným systémom , vyniká životnosťou, odolnosťou, nosnosťou, materiál zabezpečuje príjemnú klímu aj v letných mesiacoch
• Vnútorná pohoda : zabezpečená zateplením minerálnou vatou o hrúbke 20 cm a 3 komorovými eurooknami.
• Praktické riešenia: voda z verejného vodovodu, kanalizácia cez žumpu
• Flexibilita: možnosť dokončenia domu do štandardu podľa vašich predstáv a dokúpenia susedného pozemku, ak túžite po väčšom priestore pre svoje sny
Lokalita:
Hontianske Tesáre ponúkajú kompletnú základnú občiansku vybavenosť vrátane obecného úradu, školy, materskej školy, potravín, pošty, kultúrneho domu, športovísk . Obec je dobre dopravne napojená, pričom Dudince sú vzdialené len 5 km a širšie služby sú dostupné v Krupine a Leviciach. Okolie obce láka na malebnú prírodu, turistiku, cykloturistiku, vinice a miestne kultúrne pamiatky vrátane vyhliadkovej veže a kaplnky.
Tento dom nie je len stavba – je to miesto, kde sa tvorí rodinné šťastie, kde každý kút dýcha pohodou a bezpečím.
Zaujíma vás, ako rastie váš budúci domov? Napíšte alebo zavolajte nám a my vám radi ukážeme každý krok jeho dokončovania!
Zastavaná plocha: 110m²
Obytná plocha: 200m²
Rozloha pozemku: 536m²
Úžitková plocha: 200m²
Stav: nedokončený
Odvoz odpadu: áno
Voda: verejný vodovod
El. napätie: 230V
Plyn: nie
Kanalizácia: žumpa
Kúpeľňa: áno
Vykurovanie: vlastné
Terasa: áno
Pivnica: áno
Garáž: áno
Zariadenie: nezariadený
Zateplený objekt: áno
Predzáhradka: neuvedené
Terén: mierny svah
Prístupová cesta: asfaltová cesta
|
| |||||||||||||||||||||||||||||||
Kontaktovať inzerenta e-mailom
Kontaktovať e-mailom môže iba overený užívateľ.
Overenie je zadarmo.
Vaše telefónne číslo *
Kontaktovať e-mailom môže iba overený užívateľ.
Overenie je zadarmo.
Vaše telefónne číslo *






