Rodinný dom v pôvodnom stave - Soblahov - pozemok 1558 m2
- [3.11. 2025]Zmazať/ Upraviť/ Topovať






























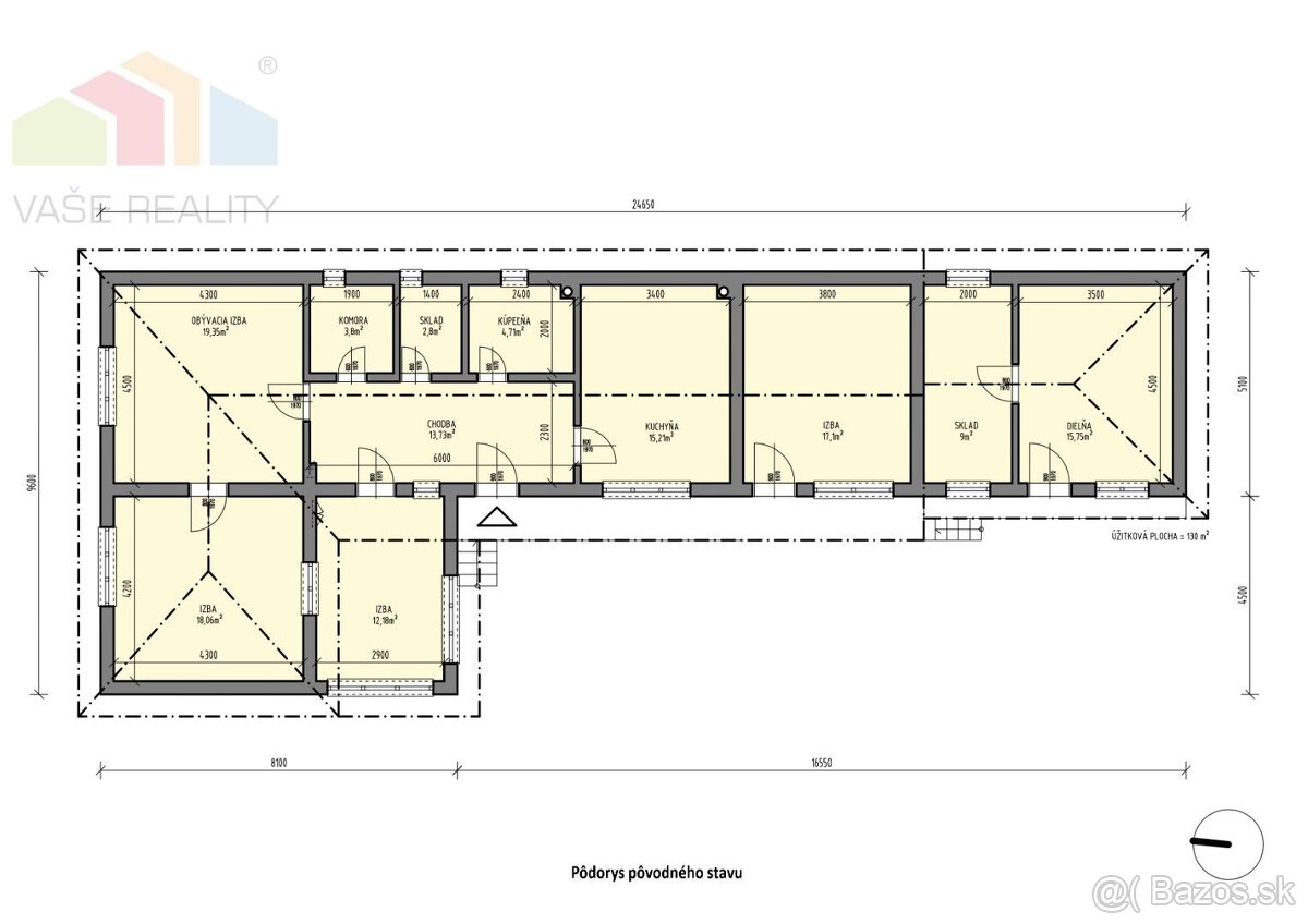
VAŠE REALITY - realitná kancelária Vám ponúka na predaj starší rodinný dom v dobrom stave nachádzajúci sa v obci Soblahov (okres Trenčín), s prístupom z miestnej cestnej komunikácie, s krásnym rovinatým pozemkom o výmere 549m2 a záhradou o výmere 1009m2. Rodinný dom je samostatne stojaci a je súčasťou obecnej zástavby rodinnými domami. Zastavaná plocha domu je 160m2, úžitková plocha domu je 130m2. Stavba je murovaná a zachovaná, no vyžaduje si rekonštrukciu, čo dáva budúcemu majiteľovi príležitosť prispôsobiť si dom podľa vlastných predstáv.
Strešná krytina bola pred pár rokmi vymenená za novú. Rodinný dom je jednopodlažný, v tvare L, nepodpivničený. Dispozíciu RD tvorí 5 priestranných izieb, pričom na prízemí sa nachádza veľká vstupná chodba, 2 izby, kuchyňa, obývacia izba, kúpeľňa, komora a sklad, z ktorého vedie rebrík do podkrovia. Podkrovie je neobytné. Z exteriéru je prístupná ďalšia samostatná obytná izba a dielňa so skladom. Vykurovanie domu zabezpečené aj na tuhé palivo. V dome je zriadené iba tzv. suché wc, dom nie je napojený na obecnú kanalizáciu.
Nehnuteľnosť disponuje s IS: elektrika, plyn, prípojka vody. Kanalizácia v tejto časti obce nie je vybudovaná.
Dopravné možnosti z miesta nehnuteľnosti sú do krajského mesta Trenčín necelých 10 minút autom. Dom je ideálny pre tých, ktorí hľadajú pokoj a tiché prostredie mimo ruchu mesta, no zároveň s dobrou dostupnosťou do blízkeho mesta Trenčín.
Na pozemku sa nachádza aj veľká záhrada, ktorá ponúka možnosti na pestovanie, oddych, prípadne možnú výstavbu novostavby RD. Pozemok je preto vhodný pre 2 rodiny – k rekonštrukcii pôvodnej nehnuteľnosti a k výstavbe novostavby RD v zadnej časti záhrady (návrh v prílohe medzi fotografiami). Z hlavnej prístupovej cesty od ulice je možné na pozemku vybudovať prístupovú cestu pre možnosť budúcej výstavby v zadnej časti záhrady (pri dodržaní podmienok miestneho stavebného úradu Soblahov). Pozemok s nehnuteľnosťou poskytuje prípadnú možnosť viacgeneračného bývania či bývanie spojené s podnikaním.
Lokalita: V obci sa nachádza kompletná občianska vybavenosť ako obchod, reštaurácia, obecný úrad, kultúrny dom, futbalové ihrisko, pošta, základná škola s materskou školou. V okolí obce sa nachádza krásna príroda vhodná na turistiku a cykloturistiku.
Zaujímavosti o obci: obec je bohatá na vodné zdroje (v blízkosti vyvierajú minerálne pramene kyselky), rastlinstvo a živočíšstvo. V katastri obce sa nachádza prírodná rezervácia Bindárka a Ostrý vrch. Obec má 2 388 obyvateľov.
Ak hľadáte dom v krásnom a pokojnom prostredí v tesnej blízkosti mesta Trenčín, ktorý si môžete upraviť podľa svojich predstáv, neváhajte a kontaktujte nás pre viac informácií alebo pre dohodnutie obhliadky na tel.č.: 0944 404 329, Ing. arch. Lucia Papierniková, mail: papiernikova@vasereality.sk
V cene je zahrnuté právne poradenstvo, vyhotovenie kúpnych zmlúv, hypotekárne poradenstvo a uhradenie správneho poplatku za návrh na vklad do katastra nehnuteľností.
P
Strešná krytina bola pred pár rokmi vymenená za novú. Rodinný dom je jednopodlažný, v tvare L, nepodpivničený. Dispozíciu RD tvorí 5 priestranných izieb, pričom na prízemí sa nachádza veľká vstupná chodba, 2 izby, kuchyňa, obývacia izba, kúpeľňa, komora a sklad, z ktorého vedie rebrík do podkrovia. Podkrovie je neobytné. Z exteriéru je prístupná ďalšia samostatná obytná izba a dielňa so skladom. Vykurovanie domu zabezpečené aj na tuhé palivo. V dome je zriadené iba tzv. suché wc, dom nie je napojený na obecnú kanalizáciu.
Nehnuteľnosť disponuje s IS: elektrika, plyn, prípojka vody. Kanalizácia v tejto časti obce nie je vybudovaná.
Dopravné možnosti z miesta nehnuteľnosti sú do krajského mesta Trenčín necelých 10 minút autom. Dom je ideálny pre tých, ktorí hľadajú pokoj a tiché prostredie mimo ruchu mesta, no zároveň s dobrou dostupnosťou do blízkeho mesta Trenčín.
Na pozemku sa nachádza aj veľká záhrada, ktorá ponúka možnosti na pestovanie, oddych, prípadne možnú výstavbu novostavby RD. Pozemok je preto vhodný pre 2 rodiny – k rekonštrukcii pôvodnej nehnuteľnosti a k výstavbe novostavby RD v zadnej časti záhrady (návrh v prílohe medzi fotografiami). Z hlavnej prístupovej cesty od ulice je možné na pozemku vybudovať prístupovú cestu pre možnosť budúcej výstavby v zadnej časti záhrady (pri dodržaní podmienok miestneho stavebného úradu Soblahov). Pozemok s nehnuteľnosťou poskytuje prípadnú možnosť viacgeneračného bývania či bývanie spojené s podnikaním.
Lokalita: V obci sa nachádza kompletná občianska vybavenosť ako obchod, reštaurácia, obecný úrad, kultúrny dom, futbalové ihrisko, pošta, základná škola s materskou školou. V okolí obce sa nachádza krásna príroda vhodná na turistiku a cykloturistiku.
Zaujímavosti o obci: obec je bohatá na vodné zdroje (v blízkosti vyvierajú minerálne pramene kyselky), rastlinstvo a živočíšstvo. V katastri obce sa nachádza prírodná rezervácia Bindárka a Ostrý vrch. Obec má 2 388 obyvateľov.
Ak hľadáte dom v krásnom a pokojnom prostredí v tesnej blízkosti mesta Trenčín, ktorý si môžete upraviť podľa svojich predstáv, neváhajte a kontaktujte nás pre viac informácií alebo pre dohodnutie obhliadky na tel.č.: 0944 404 329, Ing. arch. Lucia Papierniková, mail: papiernikova@vasereality.sk
V cene je zahrnuté právne poradenstvo, vyhotovenie kúpnych zmlúv, hypotekárne poradenstvo a uhradenie správneho poplatku za návrh na vklad do katastra nehnuteľností.
P
|
| |||||||||||||||||||||||||||||||
Kontaktovať inzerenta e-mailom
Kontaktovať e-mailom môže iba overený užívateľ.
Overenie je zadarmo.
Vaše telefónne číslo *
Kontaktovať e-mailom môže iba overený užívateľ.
Overenie je zadarmo.
Vaše telefónne číslo *









