APEX reality investičný stavebný pozemok na byty v Hlohovci
- [3.11. 2025]Zmazať/ Upraviť/ Topovať
















Pozemok v meste. Developerský projekt schválený. Stavbené povolenie vydané a právoplatné. Príležitosť pripravená.
Predstavte si, že nemusíte čakať. Nemusíte vybavovať žiadne papiere. Nemusíte strácať týždne a mesiace na úradoch.
Pretože všetko už je pripravené. A vy môžete ZAČAŤ STAVAŤ ZAJTRA.
Lokalita:
Ponúkame na predaj výnimočný rovinatý pozemok v intraviláne okresného mesta Hlohovec, konkrétne v pokojnej a žiadanej časti Svätý Peter, len pár minút od centra mesta. Skvelá dostupnosť, kompletná občianska vybavenosť a tiché prostredie vytvárajú ideálne podmienky pre pohodlné bývanie alebo úspešný developerský projekt.
Parametre nehnuteľnosti:
* Parcely: č. 4335 a 4336
* Celková výmera: 1 919 m²
* Rozmery: cca 12 m šírka x 153 m dĺžka
* Rovinatý terén
* Územie: intravilán (zastavané územie obce)
Cena: 161 900 € bez DPH (možnosť odpočtu DPH pre platcov)
ČO ROBÍ TENTO POZEMOK SKUTOČNE JEDINEČNÝM?
TOTO NIE JE LEN POZEMOK. TOTO JE ROZBEHNUTÝ BIZNIS.
Okamžitá možnosť výstavby
Zabudnite na mesiace vybavovania papierov. Stavebné povolenie je právoplatné. Pozemok čaká len na vás.
V cene kompletný developerský projekt
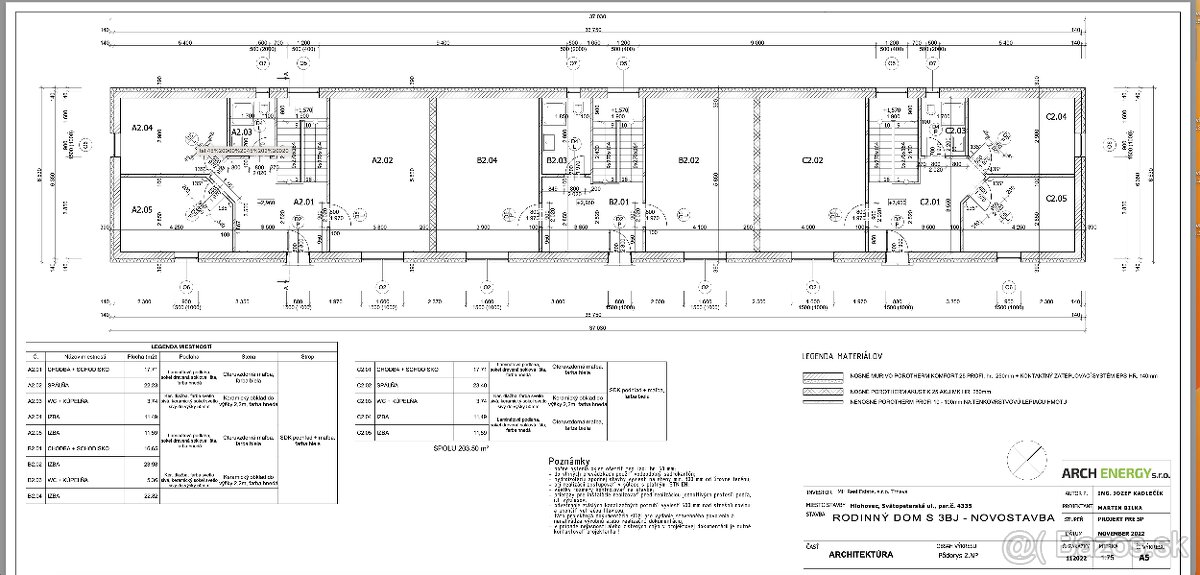
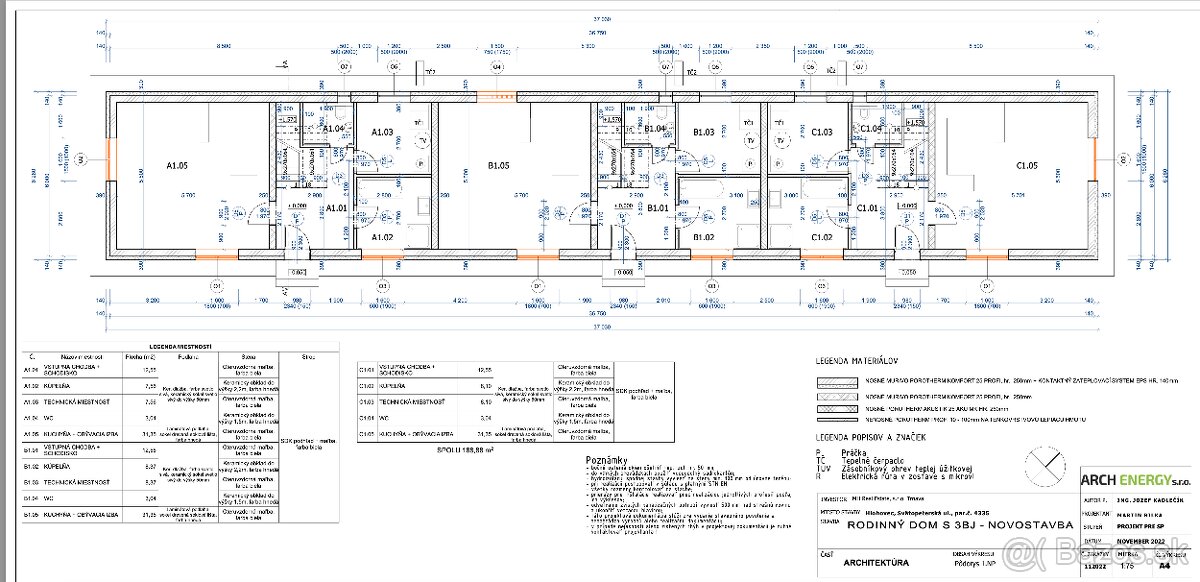
Projekt na výstavbu zahŕňa:
* 3 moderné bytové jednotky
* 6 parkovacích miest
* súkromné záhrady pre každý byt s možnosťou indivuduálneho využitia (altánok, bazén, záhradka, atď.)
* kompletné inžinierske siete (elektro, voda, kanalizácia)
Rovinatý, ideálne orientovaný pozemok
Rozmery cca 12 m x 153 m v zastavanom území mesta (intravilán) zaručujú vysoký komfort pri výstavbe a bezproblémové napojenie na infraštruktúru.
Lokalita s potenciálom rastu
Svätý Peter – pokojná a žiadaná časť okresného mesta Hlohovec. Výborná občianska vybavenosť, tiché prostredie a skvelá dostupnosť do centra. Táto lokalita si pýta kvalitné bývanie – presne to, čo tu môžete priniesť vy.
Flexibilné využitie
Projekt výstavby môžete realizovať ihneď, alebo pozemok využiť podľa vlastnej vízie. Developerský projekt nie je záväzný, ale je schválený stavbeným úradom a pripravený na štart.
Okamžitá možnosť výstavby bez čakania na stavebné povolenia. Ideálny projekt pre menšieho developera alebo investora, ktorý hľadá hotové riešenie bez starostí.
Ekonomická návratnosť a potenciál
Na vyžiadanie poskytneme:
* detailné informácie o projekte
* výkresovú dokumentáciu
* modelový výpočet ekonomickej výnosnosti developerského projektu
Vizualizácie a dokumentácia:
* Katastrálna mapa s vyznačením parciel
* Letecký pohľad z Google Maps – pre lepšiu orientáciu
* Projektová dokumentácia – situačný nákres, prípadová štúdia
Flexibilné možnosti využitia:
Hoci je developerský projekt t už schválený, nový vlastník nie je povinný realizovať výstavbu podľa súčasnej projektovej dokumentácie. Má teda voľnú ruku v úprave alebo využití pozemku podľa vlastného zámeru.
Okamžitá možnosť výstavby bez čakania na stavebné p
Predstavte si, že nemusíte čakať. Nemusíte vybavovať žiadne papiere. Nemusíte strácať týždne a mesiace na úradoch.
Pretože všetko už je pripravené. A vy môžete ZAČAŤ STAVAŤ ZAJTRA.
Lokalita:
Ponúkame na predaj výnimočný rovinatý pozemok v intraviláne okresného mesta Hlohovec, konkrétne v pokojnej a žiadanej časti Svätý Peter, len pár minút od centra mesta. Skvelá dostupnosť, kompletná občianska vybavenosť a tiché prostredie vytvárajú ideálne podmienky pre pohodlné bývanie alebo úspešný developerský projekt.
Parametre nehnuteľnosti:
* Parcely: č. 4335 a 4336
* Celková výmera: 1 919 m²
* Rozmery: cca 12 m šírka x 153 m dĺžka
* Rovinatý terén
* Územie: intravilán (zastavané územie obce)
Cena: 161 900 € bez DPH (možnosť odpočtu DPH pre platcov)
ČO ROBÍ TENTO POZEMOK SKUTOČNE JEDINEČNÝM?
TOTO NIE JE LEN POZEMOK. TOTO JE ROZBEHNUTÝ BIZNIS.
Okamžitá možnosť výstavby
Zabudnite na mesiace vybavovania papierov. Stavebné povolenie je právoplatné. Pozemok čaká len na vás.
V cene kompletný developerský projekt
Projekt na výstavbu zahŕňa:
* 3 moderné bytové jednotky
* 6 parkovacích miest
* súkromné záhrady pre každý byt s možnosťou indivuduálneho využitia (altánok, bazén, záhradka, atď.)
* kompletné inžinierske siete (elektro, voda, kanalizácia)
Rovinatý, ideálne orientovaný pozemok
Rozmery cca 12 m x 153 m v zastavanom území mesta (intravilán) zaručujú vysoký komfort pri výstavbe a bezproblémové napojenie na infraštruktúru.
Lokalita s potenciálom rastu
Svätý Peter – pokojná a žiadaná časť okresného mesta Hlohovec. Výborná občianska vybavenosť, tiché prostredie a skvelá dostupnosť do centra. Táto lokalita si pýta kvalitné bývanie – presne to, čo tu môžete priniesť vy.
Flexibilné využitie
Projekt výstavby môžete realizovať ihneď, alebo pozemok využiť podľa vlastnej vízie. Developerský projekt nie je záväzný, ale je schválený stavbeným úradom a pripravený na štart.
Okamžitá možnosť výstavby bez čakania na stavebné povolenia. Ideálny projekt pre menšieho developera alebo investora, ktorý hľadá hotové riešenie bez starostí.
Ekonomická návratnosť a potenciál
Na vyžiadanie poskytneme:
* detailné informácie o projekte
* výkresovú dokumentáciu
* modelový výpočet ekonomickej výnosnosti developerského projektu
Vizualizácie a dokumentácia:
* Katastrálna mapa s vyznačením parciel
* Letecký pohľad z Google Maps – pre lepšiu orientáciu
* Projektová dokumentácia – situačný nákres, prípadová štúdia
Flexibilné možnosti využitia:
Hoci je developerský projekt t už schválený, nový vlastník nie je povinný realizovať výstavbu podľa súčasnej projektovej dokumentácie. Má teda voľnú ruku v úprave alebo využití pozemku podľa vlastného zámeru.
Okamžitá možnosť výstavby bez čakania na stavebné p
|
| |||||||||||||||||||||||||||||||
Kontaktovať inzerenta e-mailom
Kontaktovať e-mailom môže iba overený užívateľ.
Overenie je zadarmo.
Vaše telefónne číslo *
Kontaktovať e-mailom môže iba overený užívateľ.
Overenie je zadarmo.
Vaše telefónne číslo *