Rodinný dom Malý Lapáš - Nitra
- [2.11. 2025]Zmazať/ Upraviť/ Topovať












ARCHEUS reality Nitra
Ponúkame na predaj murovaný 4-izbový rodinný dom typu Bungalov v štádiu holodom, ktorý sa nachádza v pokojnej lokalite obce Malý Lapáš, okres Nitra.
Základné informácie:
• Začiatok výstavby: prebieha.
• Plánované dokončenie: do konca roka 2025.
• IS: pripojenie na elektrinu a obecný vodovod, odpad riešený vlastnou žumpou. Kanalizácia je plánovaná v budúcnosti.
Výhody:
• Možnosť individuálnych zmien: Pri rýchlej reakcii si môžete prispôsobiť dispozíciu a vybrať technológie podľa vlastných požiadaviek (v rámci aktuálnych možností výstavby).
• Pozemok: o výmere 608 m² (rozmery: 33 x 18 m).
• Podiel na prístupovej ceste zahrnutý v cene.
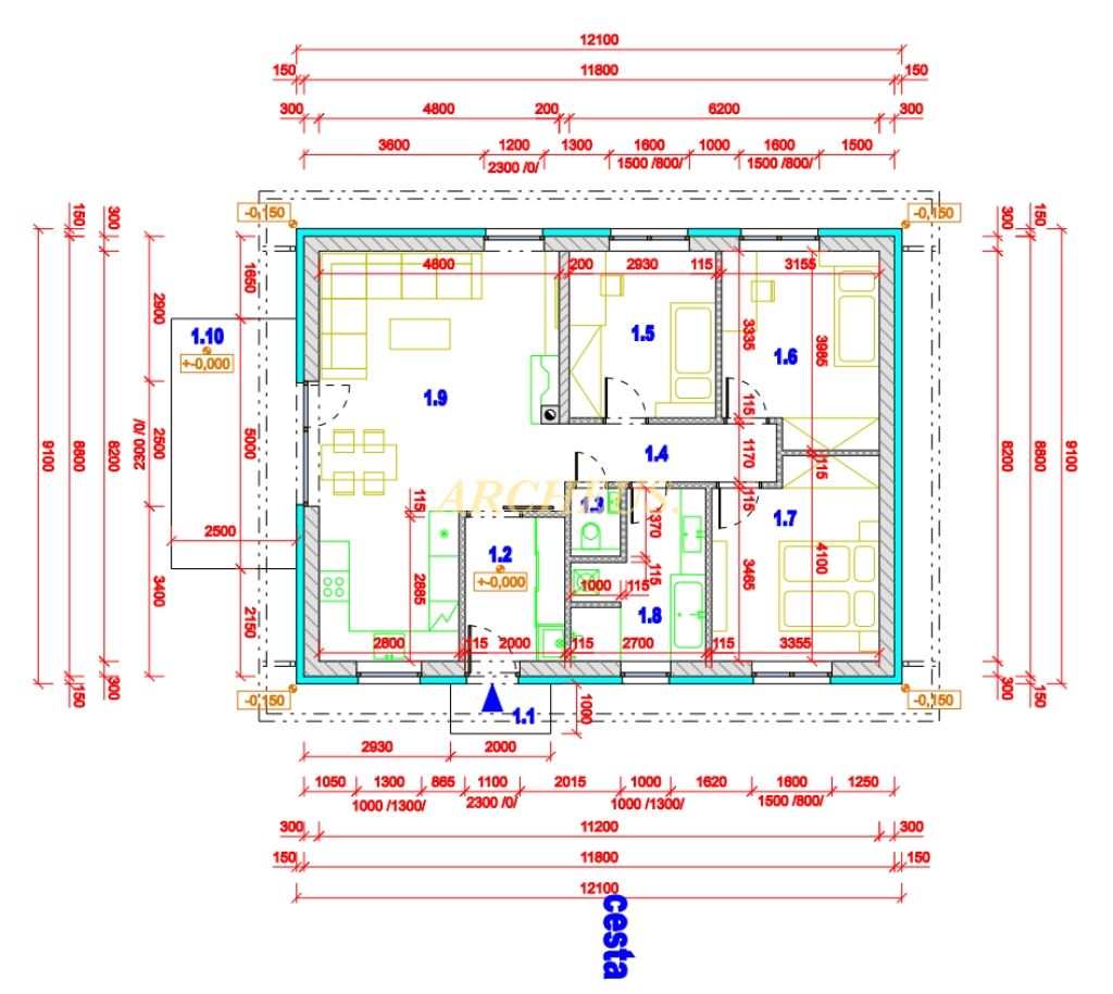
Dispozícia:
• Viď priložený pôdorys (foto).
Použité materiály a technológie:
• Obvodové murivo: tehla HELUZ.
• Strecha: väzníkový krov + krytina TERAN.
• Zateplenie: EPS 200 mm.
• Okná: plastové okná.
• Podlahy: anhydritové potery + elektrické infra podlahové kúrenie.
• Príprava na: rekuperáciu, fotovoltaiku, nabíjačku na elektromobil, optické pripojenie, bezpečnostný systém, kamery, protizáplavové senzory a ďalšie moderné technológie.
• Komín: s prípravou na krb.
Kontakt:
Ing. Roman Sedláček
0905 222 095
sedlacek@archeus.sk
Splňte si sen o vlastnom modernom bývaní!
Ak by ste mali záujem alebo ďalšie otázky, neváhajte ma kontaktovať.
Ponúkame na predaj murovaný 4-izbový rodinný dom typu Bungalov v štádiu holodom, ktorý sa nachádza v pokojnej lokalite obce Malý Lapáš, okres Nitra.
Základné informácie:
• Začiatok výstavby: prebieha.
• Plánované dokončenie: do konca roka 2025.
• IS: pripojenie na elektrinu a obecný vodovod, odpad riešený vlastnou žumpou. Kanalizácia je plánovaná v budúcnosti.
Výhody:
• Možnosť individuálnych zmien: Pri rýchlej reakcii si môžete prispôsobiť dispozíciu a vybrať technológie podľa vlastných požiadaviek (v rámci aktuálnych možností výstavby).
• Pozemok: o výmere 608 m² (rozmery: 33 x 18 m).
• Podiel na prístupovej ceste zahrnutý v cene.
Dispozícia:
• Viď priložený pôdorys (foto).
Použité materiály a technológie:
• Obvodové murivo: tehla HELUZ.
• Strecha: väzníkový krov + krytina TERAN.
• Zateplenie: EPS 200 mm.
• Okná: plastové okná.
• Podlahy: anhydritové potery + elektrické infra podlahové kúrenie.
• Príprava na: rekuperáciu, fotovoltaiku, nabíjačku na elektromobil, optické pripojenie, bezpečnostný systém, kamery, protizáplavové senzory a ďalšie moderné technológie.
• Komín: s prípravou na krb.
Kontakt:
Ing. Roman Sedláček
0905 222 095
sedlacek@archeus.sk
Splňte si sen o vlastnom modernom bývaní!
Ak by ste mali záujem alebo ďalšie otázky, neváhajte ma kontaktovať.
|
| |||||||||||||||||||||||||||||||
Kontaktovať inzerenta e-mailom
Kontaktovať e-mailom môže iba overený užívateľ.
Overenie je zadarmo.
Vaše telefónne číslo *
Kontaktovať e-mailom môže iba overený užívateľ.
Overenie je zadarmo.
Vaše telefónne číslo *