Chorvatsko-Dom s bazénom v Živogošče
- [2.11. 2025]Zmazať/ Upraviť/ Topovať




























LaHoREAL.eu ponúka na predaj dom s bazénom v Živogošće.
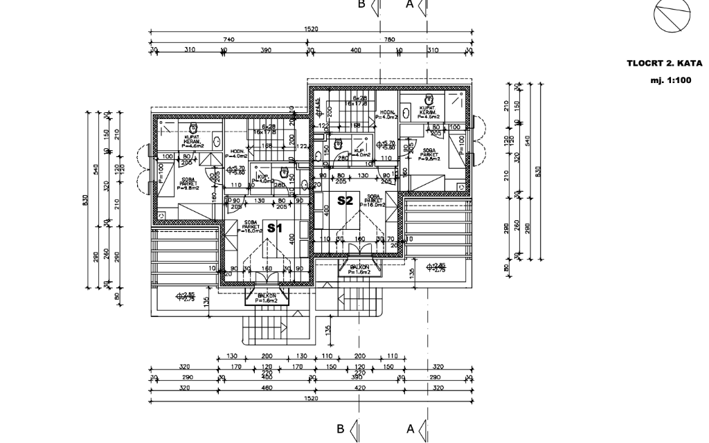
Predmetom predaja je pravá časť (S2 viď foto), skladajúca sa z prízemia a dvoch poschodí. Rok výstavby 2023.
Celková plocha domu je 180 m2, plne vybavená, a nachádza sa na pozemku o rozlohe 290 m2.
Dom je navrhnutý tak, aby mohol slúžiť buď ako samostatná jednotka, alebo ako dve oddelené jednotky. Prízemie zahŕňa kuchyňu, obývaciu izbu, kúpeľňu a spálňu. Interným schodiskom sa dostanete na prvé poschodie, kde nájdete ďalšiu pohodlnú obývaciu izbu s kuchyňou, zatiaľ čo v podkroví sú dve spálne s kúpeľňami a balkónom.
Kompletne zariadený, klimatizácia, bazén, gril, …
Dom ponúka krásny výhľad na more a je asi 2 km vzdialený od pobrežia!
V rámci našich služieb ponúkame aj hypotekárne a finančné poradenstvo na Slovensku.
V spolupráci s naším špecialistom na financie a hypotéky vám pomôžeme zabezpečiť financovanie alebo dofinancovanie kúpy nehnuteľnosti v Chorvátsku – jednoducho a spoľahlivo.
Zabezpečíme osobnú obhliadku v Chorvátsku.
Zvažujete kúpu nehnuteľnosti pri mori? Radi vám budeme osobne k dispozícii priamo v Chorvátsku. Za primeraný poplatok vieme s vami vycestovať na obhliadky nehnuteľností a poskytnúť vám kompletný servis na mieste.
Viac informácií o podmienkach vám radi vysvetlíme osobne.
lahoreal.eu (sleduj stránku). Pozri aj moje ostatné inzeráty.
Predmetom predaja je pravá časť (S2 viď foto), skladajúca sa z prízemia a dvoch poschodí. Rok výstavby 2023.
Celková plocha domu je 180 m2, plne vybavená, a nachádza sa na pozemku o rozlohe 290 m2.
Dom je navrhnutý tak, aby mohol slúžiť buď ako samostatná jednotka, alebo ako dve oddelené jednotky. Prízemie zahŕňa kuchyňu, obývaciu izbu, kúpeľňu a spálňu. Interným schodiskom sa dostanete na prvé poschodie, kde nájdete ďalšiu pohodlnú obývaciu izbu s kuchyňou, zatiaľ čo v podkroví sú dve spálne s kúpeľňami a balkónom.
Kompletne zariadený, klimatizácia, bazén, gril, …
Dom ponúka krásny výhľad na more a je asi 2 km vzdialený od pobrežia!
V rámci našich služieb ponúkame aj hypotekárne a finančné poradenstvo na Slovensku.
V spolupráci s naším špecialistom na financie a hypotéky vám pomôžeme zabezpečiť financovanie alebo dofinancovanie kúpy nehnuteľnosti v Chorvátsku – jednoducho a spoľahlivo.
Zabezpečíme osobnú obhliadku v Chorvátsku.
Zvažujete kúpu nehnuteľnosti pri mori? Radi vám budeme osobne k dispozícii priamo v Chorvátsku. Za primeraný poplatok vieme s vami vycestovať na obhliadky nehnuteľností a poskytnúť vám kompletný servis na mieste.
Viac informácií o podmienkach vám radi vysvetlíme osobne.
lahoreal.eu (sleduj stránku). Pozri aj moje ostatné inzeráty.
|
| |||||||||||||||||||||||||||||||
Kontaktovať inzerenta e-mailom
Kontaktovať e-mailom môže iba overený užívateľ.
Overenie je zadarmo.
Vaše telefónne číslo *
Kontaktovať e-mailom môže iba overený užívateľ.
Overenie je zadarmo.
Vaše telefónne číslo *







