Predaj rodinný dom Handlová, pozemok 1544 m2
- [1.11. 2025]Zmazať/ Upraviť/ Topovať






























Butterfly reality vám s radosťou ponúka na predaj rodinný dom, hospodársku budovu a garáž v Handlovej na ulici Pekárska, situovaný na priestrannom pozemku o rozlohe 1544 m². Tento dom je ideálny pre rodiny, ktoré hľadajú komfortné a praktické bývanie v pokojnej lokalite.
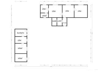
Dispozícia rodinného domu je premyslená a funkčná. Po vstupe do domu sa ocitnete v chodbe, ktorá vedie do kúpeľne vybavenej kotlom na pevné palivo, sprchovým kútom, vaňou a WC. Z obývacej izby máte priamy prechod do spálne a ďalšej izby, z ktorej sa dostanete do menšej izby, ktorej je prechod do skladu. Tento usporiadaný priestor ponúka dostatok súkromia a pohodlia pre celú rodinu.
Hospodárska budova je rovnako praktická, s kuchyňou, ktorá má prechod do menšej izby a skladu. Z vonkajšej strany sa nachádza ďalší sklad, čo poskytuje dostatok úložného priestoru pre vaše potreby. Dom aj hospodárska budova sú vybavené novými dverami a plastovými oknami, pričom podlahy sú pokryté dlažbou a linoleom, čo zaručuje jednoduchú údržbu.
Na pozemku sa nachádza garáž a studňa, čo je veľkým prínosom pre tých, ktorí majú radi záhradníčenie alebo potrebujú priestor na parkovanie. Inžinierske siete, vrátane elektriny a vody, sú na pozemku k dispozícii. Pozemok je rovinatý, čo uľahčuje jeho využitie a údržbu. Nezmeškajte túto jedinečnú príležitosť a kontaktujte nás ešte dnes, aby ste si dohodli obhliadku tejto nehnuteľnosti, ktorá môže byť vaším novým domovom.
3D dom:https://my.matterport.com/show/?m=n6hDyJyBZkh
3D hospodárska budova:https://my.matterport.com/show/?m=bU7kBcUUtPg
Cena tejto nehnuteľnosti je 135 000 € a zahŕňa kompletný realitný a právny servis, takže sa nemusíte obávať žiadnych skrytých nákladov.
Financovanie je možné prostredníctvom hypotekárneho úveru, s ktorým vám radi pomôžu naši skúsení finanční poradcovia.
Walter Breuer
walter.breuer@butterfly-reality.sk
+421-907 577 643
www.butterfly-reality.sk
© COPYRIGHT Butterfly-reality, s.r.o. – Obrázky a texty sú autorským dielom a majetkom realitnej kancelárie Butterfly-reality, s.r.o.
Dispozícia rodinného domu je premyslená a funkčná. Po vstupe do domu sa ocitnete v chodbe, ktorá vedie do kúpeľne vybavenej kotlom na pevné palivo, sprchovým kútom, vaňou a WC. Z obývacej izby máte priamy prechod do spálne a ďalšej izby, z ktorej sa dostanete do menšej izby, ktorej je prechod do skladu. Tento usporiadaný priestor ponúka dostatok súkromia a pohodlia pre celú rodinu.
Hospodárska budova je rovnako praktická, s kuchyňou, ktorá má prechod do menšej izby a skladu. Z vonkajšej strany sa nachádza ďalší sklad, čo poskytuje dostatok úložného priestoru pre vaše potreby. Dom aj hospodárska budova sú vybavené novými dverami a plastovými oknami, pričom podlahy sú pokryté dlažbou a linoleom, čo zaručuje jednoduchú údržbu.
Na pozemku sa nachádza garáž a studňa, čo je veľkým prínosom pre tých, ktorí majú radi záhradníčenie alebo potrebujú priestor na parkovanie. Inžinierske siete, vrátane elektriny a vody, sú na pozemku k dispozícii. Pozemok je rovinatý, čo uľahčuje jeho využitie a údržbu. Nezmeškajte túto jedinečnú príležitosť a kontaktujte nás ešte dnes, aby ste si dohodli obhliadku tejto nehnuteľnosti, ktorá môže byť vaším novým domovom.
3D dom:https://my.matterport.com/show/?m=n6hDyJyBZkh
3D hospodárska budova:https://my.matterport.com/show/?m=bU7kBcUUtPg
Cena tejto nehnuteľnosti je 135 000 € a zahŕňa kompletný realitný a právny servis, takže sa nemusíte obávať žiadnych skrytých nákladov.
Financovanie je možné prostredníctvom hypotekárneho úveru, s ktorým vám radi pomôžu naši skúsení finanční poradcovia.
Walter Breuer
walter.breuer@butterfly-reality.sk
+421-907 577 643
www.butterfly-reality.sk
© COPYRIGHT Butterfly-reality, s.r.o. – Obrázky a texty sú autorským dielom a majetkom realitnej kancelárie Butterfly-reality, s.r.o.
|
| |||||||||||||||||||||||||||||||
Kontaktovať inzerenta e-mailom
Kontaktovať e-mailom môže iba overený užívateľ.
Overenie je zadarmo.
Vaše telefónne číslo *
Kontaktovať e-mailom môže iba overený užívateľ.
Overenie je zadarmo.
Vaše telefónne číslo *
Podobné inzeráty
RK EXPRES - na predaj rodinný dom v Handlovej, ul.Pekárska. - [3.11. 2025]Realitná kancelária EXPRES Vám EXKLUZÍVNE ponúka na predaj rodinný dom, ktorý tvorí časť dvojdomu a nachádza sa v zastavanom území mesta Handlová, v tichej lokalite, na ulici Pekárska. Rodinný dom je nepodpivničený a má dve nadzemné podlažia. Napojený je na rozvod plynu, elektrickej energie, verejný ...
105 000 €
Prievidza
972 51
972 51
120 x
Označiť zlý inzerát Chybnú kategóriu Ohodnotiť užívateľa Zmazať/Upraviť/Topovať
Ponúkame Vám na predaj rodinný dom v meste Handlová - [3.11. 2025]Ponúkame na predaj priestranný 5-izbový rodinný dom v meste Handlová. Dom sa nachádza na rovinatom pozemku s rozlohou 301 m², na ktorom sú situované dve hospodárske budovy.
Charakteristika nehnuteľnosti:
✔ Dvojpodlažný rodinný dom s čiastočným podpivničením
✔ Priestranné izby, terasa a garáž ...
150 000 €
Prievidza
972 51
972 51
125 x
Označiť zlý inzerát Chybnú kategóriu Ohodnotiť užívateľa Zmazať/Upraviť/Topovať
RK EXPRES - predaj rodinný dom v Handlovej, ul. Dimitrovova. - [3.11. 2025]Realitná kancelária EXPRES Vám EXKLUZÍVNE ponúka na predaj rodinný dom, ktorý tvorí časť dvojdomu a nachádza sa v zastavanom území mesta Handlová, vo vyhľadávanej, tichej lokalite, na ulici Dimitrovova. Rodinný dom je čiastočne podpivničený, zateplený a má dve nadzemné podlažia. Napojený je na rozvo ...
88 000 €
Prievidza
972 51
972 51
151 x
Označiť zlý inzerát Chybnú kategóriu Ohodnotiť užívateľa Zmazať/Upraviť/Topovať
RK EXPRES - na predaj rodinný dom v Handlovej, ul. Údernícka - [3.11. 2025]Realitná kancelária EXPRES Vám EXKLUZÍVNE ponúka na predaj rodinný dom, ktorý tvorí časť dvojdomu a nachádza sa v zastavanom území mesta Handlová, vo vyhľadávanej lokalite, na ulici Údernícka. Rodinný dom je čiastočne podpivničený a má dve nadzemné podlažia. Napojený je na rozvod plynu, elektrickej ...
175 000 €
Prievidza
972 51
972 51
139 x
Označiť zlý inzerát Chybnú kategóriu Ohodnotiť užívateľa Zmazať/Upraviť/Topovať
Predám RD v tichej lokalite mesta Handlová - [1.11. 2025]
Na hranici okresov Prievidza a Žiar n. Hronom v baníckom meste Handlová ponúkam na predaj poschodový rodinný dom kolaudovaný v r. 2021 aj s prislúchajúcou prístavbou. Nehnuteľnosť je postavená na rovinatom, oplotenom pozemku o celkovej výmere 357 m2 v tichej jednosmernej ulici. Stavebné povoleni ...
239 000 €
Prievidza
972 51
972 51
419 x
Označiť zlý inzerát Chybnú kategóriu Ohodnotiť užívateľa Zmazať/Upraviť/Topovať
RK EXPRES - predaj rodinný dom v Handlovej, ul. Krasku - [28.10. 2025]Realitná kancelária EXPRES Vám EXKLUZÍVNE ponúka na predaj rodinný dom, ktorý tvorí časť dvojdomu a nachádza sa v zastavanom území mesta Handlová. V roku 2012 bola ukončená rekonštrukcia okrem vonkajšej omietky. Rodinný dom je nepodpivničený a má dve nadzemné podlažia. Napojený na rozvod elektrickej ...
88 000 €
Prievidza
972 51
972 51
262 x
Označiť zlý inzerát Chybnú kategóriu Ohodnotiť užívateľa Zmazať/Upraviť/Topovať
Priestranný 5-izbový rodinný dom s garážou v tichej lokalite - [24.10. 2025]Ponúkame na predaj dvojpodlažný 5-izbový rodinný dom v Handlovej s praktickým riešením, vhodný aj pre viacgeneračné bývanie. Dom je čiastočne podpivničený, má obdĺžnikový pôdorys a modernú rovnú strechu. Priestranná terasa a menší balkón poskytujú ideálne miesto na oddych alebo rodinné posedenia.
...
140 000 €
Prievidza
972 51
972 51
565 x
Označiť zlý inzerát Chybnú kategóriu Ohodnotiť užívateľa Zmazať/Upraviť/Topovať
5 izbový RD v Handlovej - tichá lokalita - [24.10. 2025]TICHÁ LOKALITA S VÝBORNOU DOSTUPNOSŤOU DO CENTRA
TUreality ponúka na predaj priestranný 5-izbový rodinný dom situovaný v tichej časti mesta Handlová, ktorý predstavuje skvelú príležitosť pre komfortné a funkčné bývanie.
HLAVNÉ VÝHODY NEHNUTEĽNOSTI:
* Tichá lokalita len pár minút od centra
* ...
144 900 €
Prievidza
972 51
972 51
415 x
Označiť zlý inzerát Chybnú kategóriu Ohodnotiť užívateľa Zmazať/Upraviť/Topovať
RK EXPRES- na predaj rodinný dom v Handlovej. - TOP - [29.10. 2025]Realitná kancelária EXPRES Vám EXKLUZÍVNE ponúka na predaj krásny, udržiavaný rodinný dom – časť dvojdomu vo vyhľadávanej lokalite mesta Handlová, na Úderníckej ulici.
Dom je čiastočne podpivničený, má 2 nadzemné podlažia a je napojený na všetky inžinierske siete (plyn, elektrina, voda, kanalizác ...
175 000 €
Prievidza
972 51
972 51
797 x
Označiť zlý inzerát Chybnú kategóriu Ohodnotiť užívateľa Zmazať/Upraviť/Topovať
Rodinný dom - ul.Pionierov Handlová - [22.10. 2025]Ak hľadáte rodinný dom s dostatkom priestoru a súkromia, táto ponuka vás určite zaujme.
Ponúkame Vám na predaj rodinný dom v pokojnej časti mesta Handlová ( ul.Pionierov), v ulici s minimálnou premávkou, čo zaručuje ticho a príjemné prostredie pre rodinu.
Dom bol postavený v roku 1983 z tehly, a v ...
130 000 €
Prievidza
972 51
972 51
520 x
Označiť zlý inzerát Chybnú kategóriu Ohodnotiť užívateľa Zmazať/Upraviť/Topovať









