Prevázdkový priestor na prenájom 168m2
- TOP - [8.11. 2025]Zmazať/ Upraviť/ Topovať

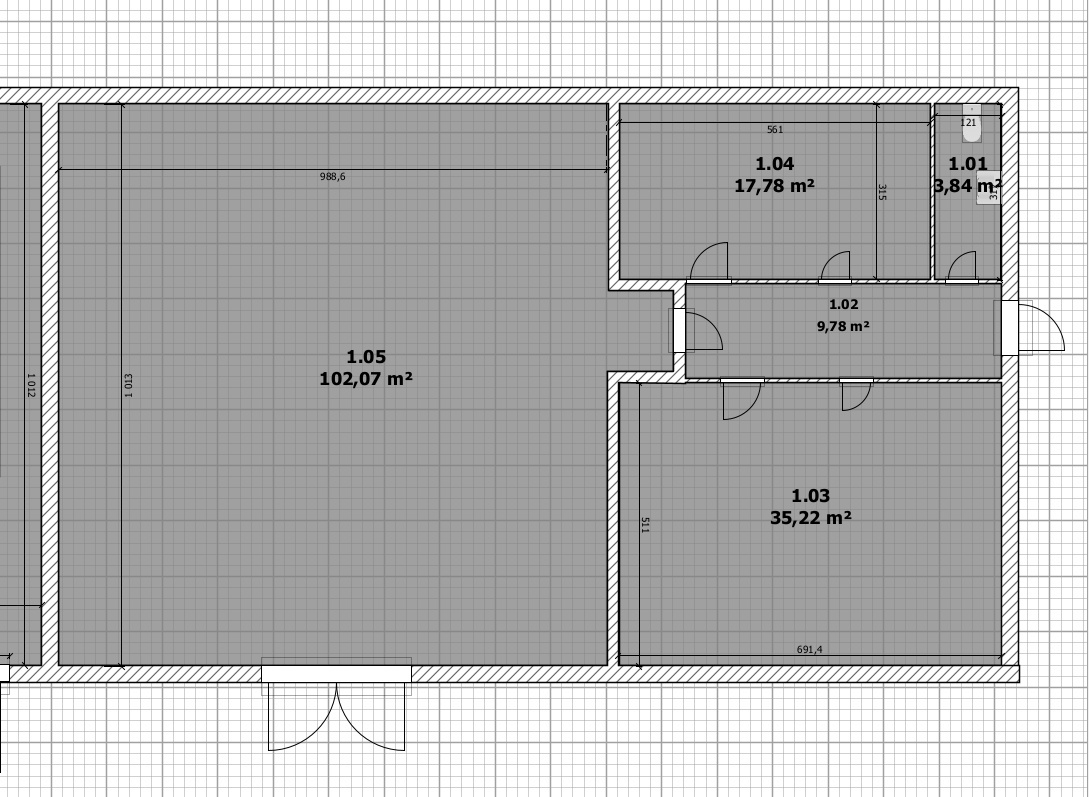
Dáme do prenájmu prevádzkový priestor spolu 168 m2
pozostávajúcich z miestností ako je v prílohe na fotke.
Priestor sa nachádza v na ulici nádražný rad / pár metrov od vlakovej a autobusovej stanici/
je v uzavretom a oplotenom areáli.
Súčasťou priestoru je ja WC
Daný priestor sa momentálne rekonštruuje,
hotový bude za cca mesiac.
súčasťou budú nové plastové okná, nové dvere, komplet nové omietky, nové podlahy...
Osadený bude 400V rozvod +230V + led svetlá
počas rekonštrukcie je možné do istej miery prispôsobiť priestor podľa nového nájomníka
vhodné ako dieľňa pre remeselníkov, priestor pre menšiu výrobu...
nájom 840Eur/mesiac
info: 0905 913 315
k dispozícii máme aj viac skladových priestorov 10m2 - 2000 m2
pozostávajúcich z miestností ako je v prílohe na fotke.
Priestor sa nachádza v na ulici nádražný rad / pár metrov od vlakovej a autobusovej stanici/
je v uzavretom a oplotenom areáli.
Súčasťou priestoru je ja WC
Daný priestor sa momentálne rekonštruuje,
hotový bude za cca mesiac.
súčasťou budú nové plastové okná, nové dvere, komplet nové omietky, nové podlahy...
Osadený bude 400V rozvod +230V + led svetlá
počas rekonštrukcie je možné do istej miery prispôsobiť priestor podľa nového nájomníka
vhodné ako dieľňa pre remeselníkov, priestor pre menšiu výrobu...
nájom 840Eur/mesiac
info: 0905 913 315
k dispozícii máme aj viac skladových priestorov 10m2 - 2000 m2
|
| |||||||||||||||||||||||||||||||
Kontaktovať inzerenta e-mailom
Kontaktovať e-mailom môže iba overený užívateľ.
Overenie je zadarmo.
Vaše telefónne číslo *
Kontaktovať e-mailom môže iba overený užívateľ.
Overenie je zadarmo.
Vaše telefónne číslo *