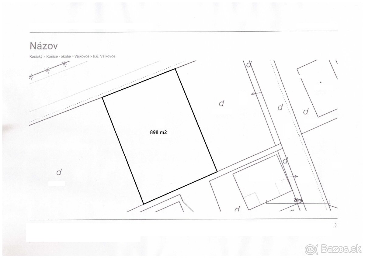
VAJKOVCE - pekný stavebný pozemok o výmere 898 m2
- [1.11. 2025]Zmazať/ Upraviť/ Topovať












Realitná kancelária MH Real Vám ponúka na predaj stavebný pozemok v obci Vajkovce, iba 10 km od Košíc a 3 km od diaľničného privádzača.
Pekný, slnečný, prevažne rovinatý pozemok o výmere 898 m2 a šírke 25 m sa nachádza v zastavanom území obce s prístupom z asfaltovej komunikácie. V okolí sa nachádzajú novostavby rodinných domov.
Inžinierske siete - obecný vodovod, kanalizácia a elektrina na hranici pozemku.
Pozemok je bez tiarch, kúpou voľný.
Obec Vajkovce je rozvíjajúca sa obec s dobrou občianskou vybavenosťou - materská škôlka, 2 x potraviny, reštaurácia, multifunkčné ihrisko, kostoly. Základná škola roč. 1-9 v susednej obci Budimír (školský spoj SAD).
V kúpnej cene sú zahrnuté náklady spojené s kúpou nehnuteľnosti, vrátane vypracovania zmlúv advokátskou kanceláriou. V prípade záujmu, Vám radi pomôžeme s možnosťou financovania prostredníctvom HÚ.
Bližšie informácie na tel. čísle 0918 336 411 M. Hrehorová.
Pekný, slnečný, prevažne rovinatý pozemok o výmere 898 m2 a šírke 25 m sa nachádza v zastavanom území obce s prístupom z asfaltovej komunikácie. V okolí sa nachádzajú novostavby rodinných domov.
Inžinierske siete - obecný vodovod, kanalizácia a elektrina na hranici pozemku.
Pozemok je bez tiarch, kúpou voľný.
Obec Vajkovce je rozvíjajúca sa obec s dobrou občianskou vybavenosťou - materská škôlka, 2 x potraviny, reštaurácia, multifunkčné ihrisko, kostoly. Základná škola roč. 1-9 v susednej obci Budimír (školský spoj SAD).
V kúpnej cene sú zahrnuté náklady spojené s kúpou nehnuteľnosti, vrátane vypracovania zmlúv advokátskou kanceláriou. V prípade záujmu, Vám radi pomôžeme s možnosťou financovania prostredníctvom HÚ.
Bližšie informácie na tel. čísle 0918 336 411 M. Hrehorová.
|
| |||||||||||||||||||||||||||||||
Kontaktovať inzerenta e-mailom
Kontaktovať e-mailom môže iba overený užívateľ.
Overenie je zadarmo.
Vaše telefónne číslo *
Kontaktovať e-mailom môže iba overený užívateľ.
Overenie je zadarmo.
Vaše telefónne číslo *