Predám rodinný dom v centre Kysuckeho Nového Mesta
- [31.10. 2025]Zmazať/ Upraviť/ Topovať























Predám zrekonštruovaný rodinný dom v centre Kysuckého Nového Mesta
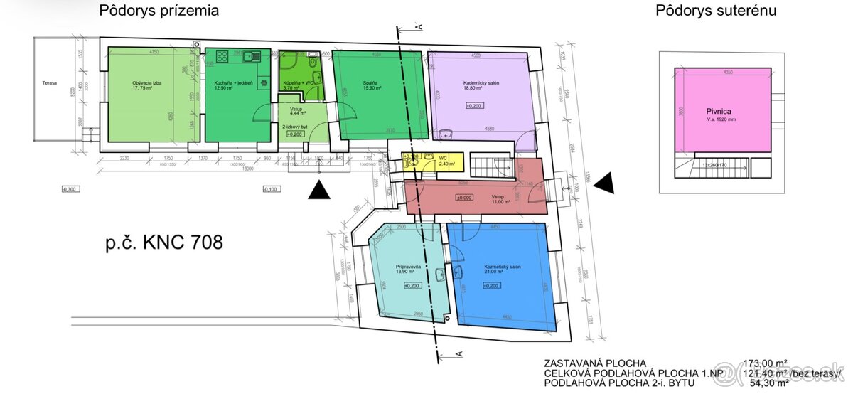
Predám kompletne zrekonštruovaný rodinný dom v centre Kysuckého Nového Mesta, vhodný na bývanie aj podnikanie.
Dom sa v súčasnosti využíva ako nájomná nehnuteľnosť – tvorí ho 2 samostatné bytové jednotky, každá so svojím vchodom:
• 3-izbový byt s 2 súkromnými parkovacími miestami,
• 2-izbový byt so vstupom cez záhradu a terasou, s možnosťou parkovania vo dvore.
✅ Možnosť nadstavby ďalšieho poschodia (cca 160 m²) – pripravené všetky siete.
✅ Možnosť vybudovať 3 ďalšie bytové jednotky po cca 50 m².
✅ Ideálne aj ako rodinný dom so záhradou a jednou samostatnou nájomnou jednotkou alebo obchodnými priestormi.
📐 Zastavaná plocha: 170 m²
🏡 Úžitková plocha: cca 120 m² + terasa
📍 Lokalita: centrum mesta, tichá ulica, výborná dostupnosť
Cena: dohodou / pri rýchlom jednaní možná zľava
Predám kompletne zrekonštruovaný rodinný dom v centre Kysuckého Nového Mesta, vhodný na bývanie aj podnikanie.
Dom sa v súčasnosti využíva ako nájomná nehnuteľnosť – tvorí ho 2 samostatné bytové jednotky, každá so svojím vchodom:
• 3-izbový byt s 2 súkromnými parkovacími miestami,
• 2-izbový byt so vstupom cez záhradu a terasou, s možnosťou parkovania vo dvore.
✅ Možnosť nadstavby ďalšieho poschodia (cca 160 m²) – pripravené všetky siete.
✅ Možnosť vybudovať 3 ďalšie bytové jednotky po cca 50 m².
✅ Ideálne aj ako rodinný dom so záhradou a jednou samostatnou nájomnou jednotkou alebo obchodnými priestormi.
📐 Zastavaná plocha: 170 m²
🏡 Úžitková plocha: cca 120 m² + terasa
📍 Lokalita: centrum mesta, tichá ulica, výborná dostupnosť
Cena: dohodou / pri rýchlom jednaní možná zľava
|
| |||||||||||||||||||||||||||||||
Kontaktovať inzerenta e-mailom
Kontaktovať e-mailom môže iba overený užívateľ.
Overenie je zadarmo.
Vaše telefónne číslo *
Kontaktovať e-mailom môže iba overený užívateľ.
Overenie je zadarmo.
Vaše telefónne číslo *


