NA PREDAJ: Reprezentatívny komerčný priestor pod hlavnou st
- [31.10. 2025]Zmazať/ Upraviť/ Topovať





















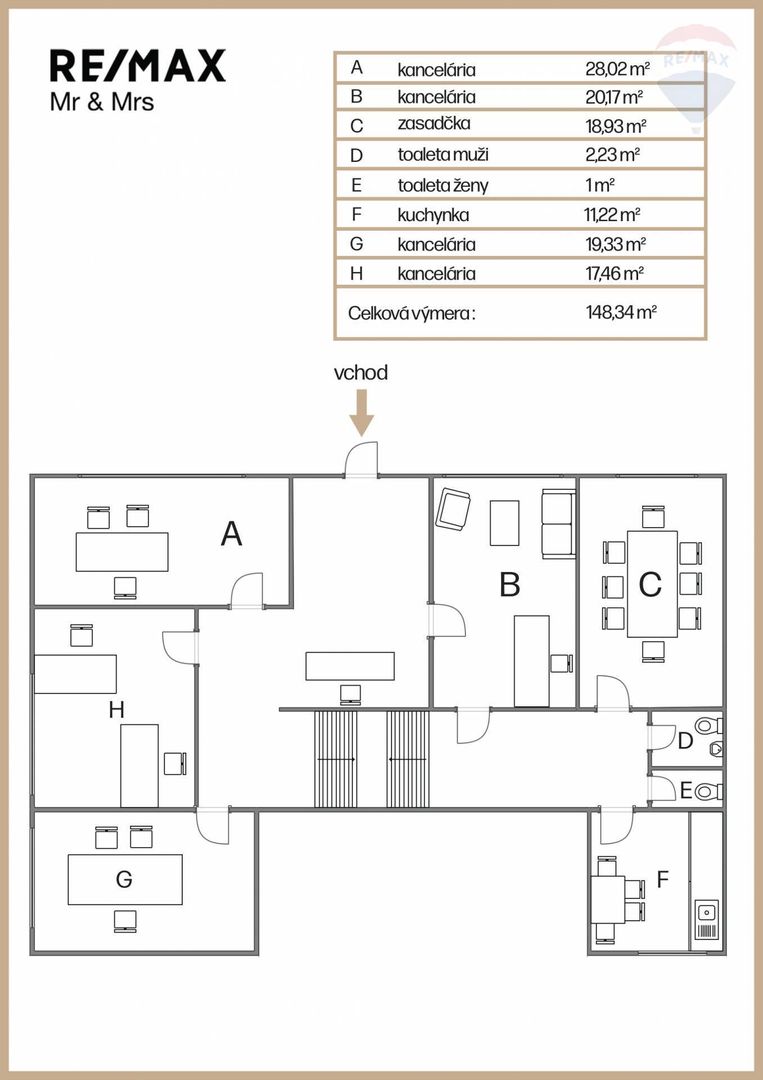
Realitná kancelária RE/MAX Mr & Mrs Vám v exkluzívnom zastúpení ponúka na predaj kompletne zrekonštruovaný komerčný priestor nachádzajúci sa v prestížnej lokalite starého mesta - pod Hlavnou železničnou stanicou v Bratislave.
Základné informácie:
• Lokalita: Bratislava - Staré mesto
• Výmera kancelárie: 148m²
• Podiel na spoločných častiach domu - 38m²
• Podiel i na priľahlom pozemku - spoločnom dvore
• Prízemie s veľkými výkladovými oknami
• Bezbariérový prístup
_________________________________
️ Dispozícia a vybavenie:
• 4 samostatné kancelárie s veľkými oknami
• reprezentatívna recepcia
• elegantná zasadacia miestnosť
• plne vybavená kuchynka /mikrovlnka, chladnička/
• 2 samostatné WC /pánske s pisoárom + dámske/
• chodba s úložným priestorom
• elektrické kúrenie
• kompletná rekonštrukcia
_________________________________
Strategická poloha a dostupnosť:
✔️ bezprostredná blízkosť Hlavnej železničnej stanice - ideálne pre zamestnancov a klientov cestujúcich vlakom
✔️ dostupnosť MHD - zastávky autobusov a trolejbusov v tesnej blízkosti
✔️ reprezentatívna adresa pre vašu spoločnosť
✔️ rozvinutá infraštruktúra
✔️ rastúca atraktivita lokality, potenciál zhodnotenia nehnuteľnosti
_________________________________
Služby realitnej kancelárie RE/MAX:
✅ Kompletná právna analýza nehnuteľnosti - kontrola listu vlastníctva, katastrálnej mapy
✅ Právny servis - vyhotovenie kúpnej zmluvy a kompletné právne poradenstvo
✅ Vklad do katastra nehnuteľností - vybavíme za vás všetky formality
✅ Finančné poradenstvo - pomoc pri zabezpečení financovania pre komerčné nehnuteľnosti, spolupráca so všetkými bankami
✅ Administratívny servis - prepis energií a médií na nového vlastníka
Daný priestor je k dispozícii aj na dlhodobý prenájom:
https://remax-slovakia.sk/reality/detail/128787?ref=4791
Zaujal Vás tento inzerát?
Pokojne mi zavolajte alebo napíšte správu.
Mgr. Veronika Zaicová, RE/MAX Mr&Mrs
Tel. 0911 911 187
Váš spoľahlivý partner vo svete nehnuteľností.
Základné informácie:
• Lokalita: Bratislava - Staré mesto
• Výmera kancelárie: 148m²
• Podiel na spoločných častiach domu - 38m²
• Podiel i na priľahlom pozemku - spoločnom dvore
• Prízemie s veľkými výkladovými oknami
• Bezbariérový prístup
_________________________________
️ Dispozícia a vybavenie:
• 4 samostatné kancelárie s veľkými oknami
• reprezentatívna recepcia
• elegantná zasadacia miestnosť
• plne vybavená kuchynka /mikrovlnka, chladnička/
• 2 samostatné WC /pánske s pisoárom + dámske/
• chodba s úložným priestorom
• elektrické kúrenie
• kompletná rekonštrukcia
_________________________________
Strategická poloha a dostupnosť:
✔️ bezprostredná blízkosť Hlavnej železničnej stanice - ideálne pre zamestnancov a klientov cestujúcich vlakom
✔️ dostupnosť MHD - zastávky autobusov a trolejbusov v tesnej blízkosti
✔️ reprezentatívna adresa pre vašu spoločnosť
✔️ rozvinutá infraštruktúra
✔️ rastúca atraktivita lokality, potenciál zhodnotenia nehnuteľnosti
_________________________________
Služby realitnej kancelárie RE/MAX:
✅ Kompletná právna analýza nehnuteľnosti - kontrola listu vlastníctva, katastrálnej mapy
✅ Právny servis - vyhotovenie kúpnej zmluvy a kompletné právne poradenstvo
✅ Vklad do katastra nehnuteľností - vybavíme za vás všetky formality
✅ Finančné poradenstvo - pomoc pri zabezpečení financovania pre komerčné nehnuteľnosti, spolupráca so všetkými bankami
✅ Administratívny servis - prepis energií a médií na nového vlastníka
Daný priestor je k dispozícii aj na dlhodobý prenájom:
https://remax-slovakia.sk/reality/detail/128787?ref=4791
Zaujal Vás tento inzerát?
Pokojne mi zavolajte alebo napíšte správu.
Mgr. Veronika Zaicová, RE/MAX Mr&Mrs
Tel. 0911 911 187
Váš spoľahlivý partner vo svete nehnuteľností.
|
| |||||||||||||||||||||||||||||||
Kontaktovať inzerenta e-mailom
Kontaktovať e-mailom môže iba overený užívateľ.
Overenie je zadarmo.
Vaše telefónne číslo *
Kontaktovať e-mailom môže iba overený užívateľ.
Overenie je zadarmo.
Vaše telefónne číslo *
