Prenájom spevnenej oplotenej plochy pri Považskej Bystrici
- [30.10. 2025]Zmazať/ Upraviť/ Topovať
















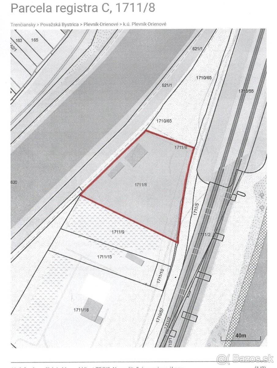
Ponúkam na prenájom pozemok za mostom pri obci Podvažie – smer Bytča, v katastri obce Plevník- Drienové.
Pozemok je oplotený a chránený fotopascami s okamžitým odosielaním MMS, druh pozemku: zastavaná plocha a nádvorie s výmerou 6 969 m2. Jedná sa o voľnú plochu, ktorá je vyasfaltovaná s odvodnením a kanalizáciou a na 20% po krajoch zatrávnená.
Na pozemku je možné parkovať osobné a nákladné vozidlá, kamióny, príp. stavebné mechanizmy, uskladniť materiál alebo kontajnery, príp. zriadiť priemyselnú prevádzku. Príjazdová cesta k pozemku je asfaltová s výbornou dostupnosťou, vchod je cez bránu. V bezprostrednej blízkosti sa nachádza diaľnica. V najbližšom období bude na pozemku zriadená prípojka el. energie.
Možnosť prenajatia aj menšej časti pozemku. Cena nájmu – dohodou.
Pozemok je oplotený a chránený fotopascami s okamžitým odosielaním MMS, druh pozemku: zastavaná plocha a nádvorie s výmerou 6 969 m2. Jedná sa o voľnú plochu, ktorá je vyasfaltovaná s odvodnením a kanalizáciou a na 20% po krajoch zatrávnená.
Na pozemku je možné parkovať osobné a nákladné vozidlá, kamióny, príp. stavebné mechanizmy, uskladniť materiál alebo kontajnery, príp. zriadiť priemyselnú prevádzku. Príjazdová cesta k pozemku je asfaltová s výbornou dostupnosťou, vchod je cez bránu. V bezprostrednej blízkosti sa nachádza diaľnica. V najbližšom období bude na pozemku zriadená prípojka el. energie.
Možnosť prenajatia aj menšej časti pozemku. Cena nájmu – dohodou.
|
| |||||||||||||||||||||||||||||||
Kontaktovať inzerenta e-mailom
Kontaktovať e-mailom môže iba overený užívateľ.
Overenie je zadarmo.
Vaše telefónne číslo *
Kontaktovať e-mailom môže iba overený užívateľ.
Overenie je zadarmo.
Vaše telefónne číslo *